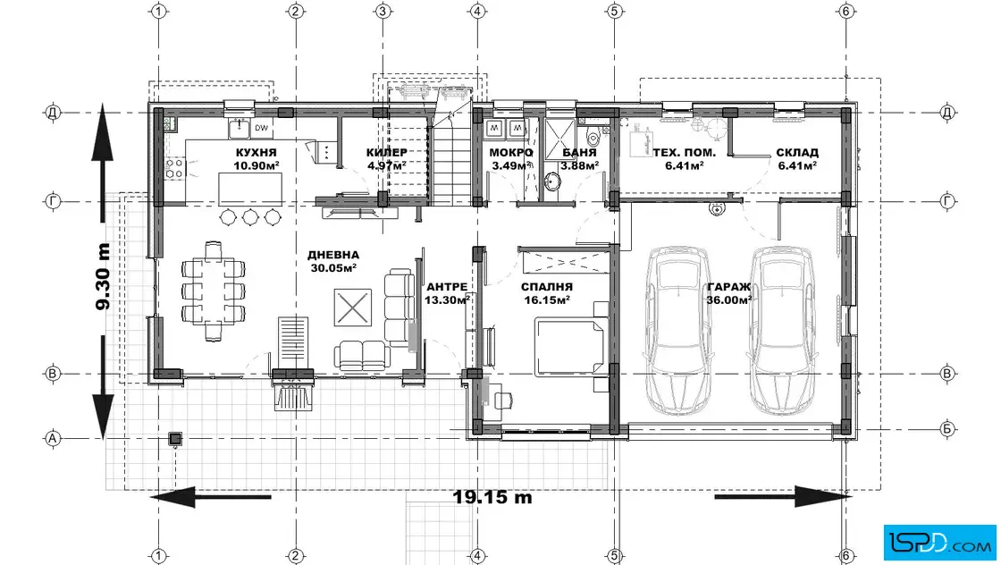
План на първи етаж

Проект на къща в с. Хераково
| Етажи | Нето | Бруто |
|---|---|---|
| Първи етаж | 131.55 кв.м. | 159.22 кв.м. |
| Покрит вход/веранда | 13.57 кв.м. | |
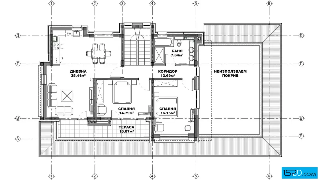
| Втори етаж | 98.01 кв.м. | 123.36 кв.м. |
| Общо: | 229.56 кв.м. | 296.15 кв.м. |









Хасиенда - нима не мечтаем всички за извънградското имение с каменни стени, много светлина и сенчести веранди, в които да прекарваме на прохлада горещите дни. Хасиендата е символ на стил и лукс, на фамилни вечери и приятелски срещи. Виждали сме я в толкова много филми...
Сега обаче е добре много внимателно да разгледате това предложение, защото то може да сбъдне мечтата ви да живеете като латиноамерикански аристократ. Проектът представлява изключително атрактивно архитектурно решение за извънградска къща. Два етажа, гараж за два автомобила, открита веранда на втория етаж, тераса и три спални. Всичко това на здравата и надеждна стоманобетонна основа, тухлени стени и дву или трикамерна дограма. Ефектът от плоския покрив се допълва от декоративните HPL панели и облицовката от камък.
И ако това не е достатъчно, каним ви в една от двете дневни, удобно разположени на двата етажа. Разбира се, верандата, полускрита от покрива е този акцент, който ще ви заинтригува най-много. Следобедните часове там са наистина неповторими и ще се наслаждавате на чистия селски въздух и природните гледки.
Еднофамилната къща разполага с 5 стаи, три спални, тераса и веранда. Разполага и с онова неповторимо излъчване, което я прави подходяща и за целогодишно обитаване, и за място за почивка през уикенда. Дон Хуан, Доня Мария, не се колебайте – това е най-добрият избор.
Предложението е за големи равнинни парцели.
Подробен 3D модел на сградата, който изяснява формата и функцията в пълнота още в етапа на проектиране
Бързина на проектирането без компромис с качеството
Анализ на различни варианти и опции и визуализирането им още в начален етап
Функционални планове
Модерен архитектурен софтуер, който минимизира възможните грешки

Визуализациите са илюстративни
Представените изображения са компютърно генерирани фотореалистични образи на сградата, които показват идеята на архитекта. Те визуализират една от многото възможности за завършване на фасадата на сградата. Тяхната основна цел е да изобразят къщата в околната среда по възможно най-реалистичния начин, за да може обитателите да възприемат сградата още преди тя да бъде построена. Цветовете и текстурите на реално изпълнената сграда може да се различават от компютърните изображения.
Фасадните материали могат да бъдат променяни
Визуализациите изобразяват идеята на архитекта и неговото желание да постигане завършен и естетичен образ използвайки конкретни материали по фасадата. Въпреки това, красотата на сградата е строго субективна и затова външната визия може да бъде редактирана според желанията и предпочитанията на възложителите. Всички цветове и материали могат да бъдат променяни, заменяни или премахнати според конкретните нужди.
Всички планове и изображения са предмет на авторско право
Представените визуализации и планове са авторски продукт и плод на архитектурния труд на екипа проектанти на “Ай ЕС Пи Дигитален Дизайн” ООД. Те са изключителна интелектуална собственост на фирмата. На основание член 35 от Закона за авторското право и сродните му права използването на което и да е изображение за търговски, маркетингови и други цели, без изричното писмено съгласие на фирма “Ай ЕС Пи Дигитален Дизайн” ООД е строго забранено.
Коментари и Въпроси