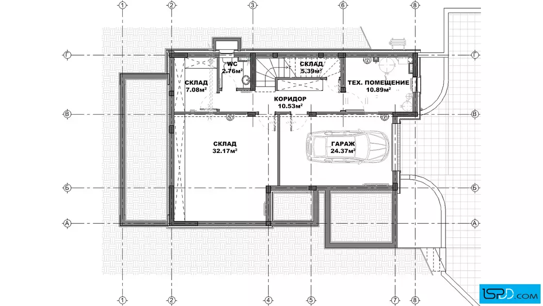
План на подземен етаж

Проект на къща в гр. София
| Етажи | Нето | Бруто |
|---|---|---|
| Подземен етаж | 93.19 кв.м. | 110.09 кв.м. |
| Първи етаж | 92.21 кв.м. | 114.65 кв.м. |
| Покрит вход/веранда | 26.08 кв.м. | |
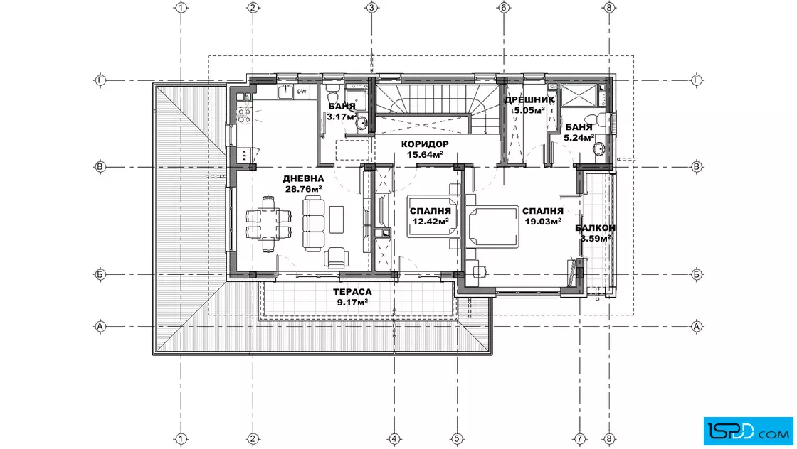
| Втори етаж | 102.07 кв.м. | 127.78 кв.м. |
| Общо: | 287.47 кв.м. | 378.6 кв.м. |









Еднофамилните домове в близост до големия град имат някои съществени различия с типично селските вили или къщи. Имат, разбира се и идентични функционалности – създадени са като алтернатива на живота в мегаполисите. Те стават все по- предпочитани по много причини: на крачка са от възможностите за бизнес и развлечение в града, предлагат същите удобства на жилищата в кварталите и центъра, имат и огромно предимство – пространството. Този проект е на двуетажна къща, със сутерен за техническите и складови помещения, и за гараж за един автомобил.
Разположението на помещенията е „класическо“- на първия етаж са дневна и спалня. На втория помещенията са идентични и отново има дневна, две спални и две тераси. Това разпределение позволява значителна автономност в ежедневието или казано иначе – можете да поканите свои гости без притеснения от комунално естество. А за да изпреварим и другите въпроси: предложението визуализира проект от монолитен стоманобетон, с тухлени стени и четирискатен покрив, дограма от PVC или алуминий. Фасадата е с минерална мазилка, каменна облицовка и декоративни HPL панели. Ако все още не познавате последния материал, сега е моментът да го включите в екстериора на своя бъдещ дом. Той ще промени изцяло облика на къщата.
Проектът е подходящ за терени със слаб наклон.
Подробен 3D модел на сградата, който изяснява формата и функцията в пълнота още в етапа на проектиране
Бързина на проектирането без компромис с качеството
Анализ на различни варианти и опции и визуализирането им още в начален етап
Функционални планове
Модерен архитектурен софтуер, който минимизира възможните грешки

Визуализациите са илюстративни
Представените изображения са компютърно генерирани фотореалистични образи на сградата, които показват идеята на архитекта. Те визуализират една от многото възможности за завършване на фасадата на сградата. Тяхната основна цел е да изобразят къщата в околната среда по възможно най-реалистичния начин, за да може обитателите да възприемат сградата още преди тя да бъде построена. Цветовете и текстурите на реално изпълнената сграда може да се различават от компютърните изображения.
Фасадните материали могат да бъдат променяни
Визуализациите изобразяват идеята на архитекта и неговото желание да постигане завършен и естетичен образ използвайки конкретни материали по фасадата. Въпреки това, красотата на сградата е строго субективна и затова външната визия може да бъде редактирана според желанията и предпочитанията на възложителите. Всички цветове и материали могат да бъдат променяни, заменяни или премахнати според конкретните нужди.
Всички планове и изображения са предмет на авторско право
Представените визуализации и планове са авторски продукт и плод на архитектурния труд на екипа проектанти на “Ай ЕС Пи Дигитален Дизайн” ООД. Те са изключителна интелектуална собственост на фирмата. На основание член 35 от Закона за авторското право и сродните му права използването на което и да е изображение за търговски, маркетингови и други цели, без изричното писмено съгласие на фирма “Ай ЕС Пи Дигитален Дизайн” ООД е строго забранено.
Коментари и Въпроси