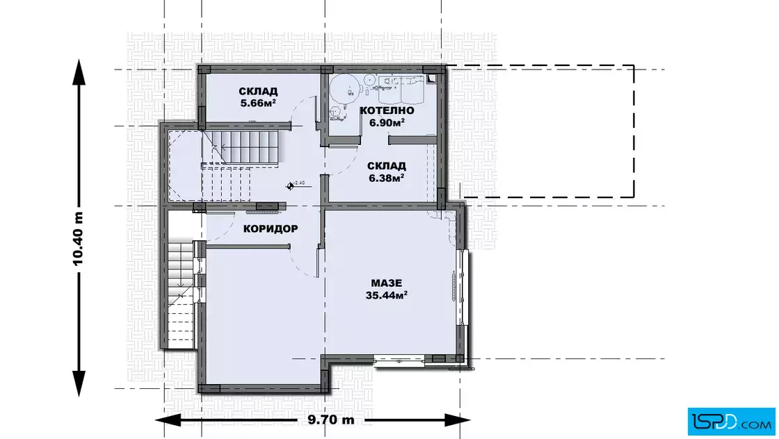
План на подземен етаж

Готов проект на къща 54








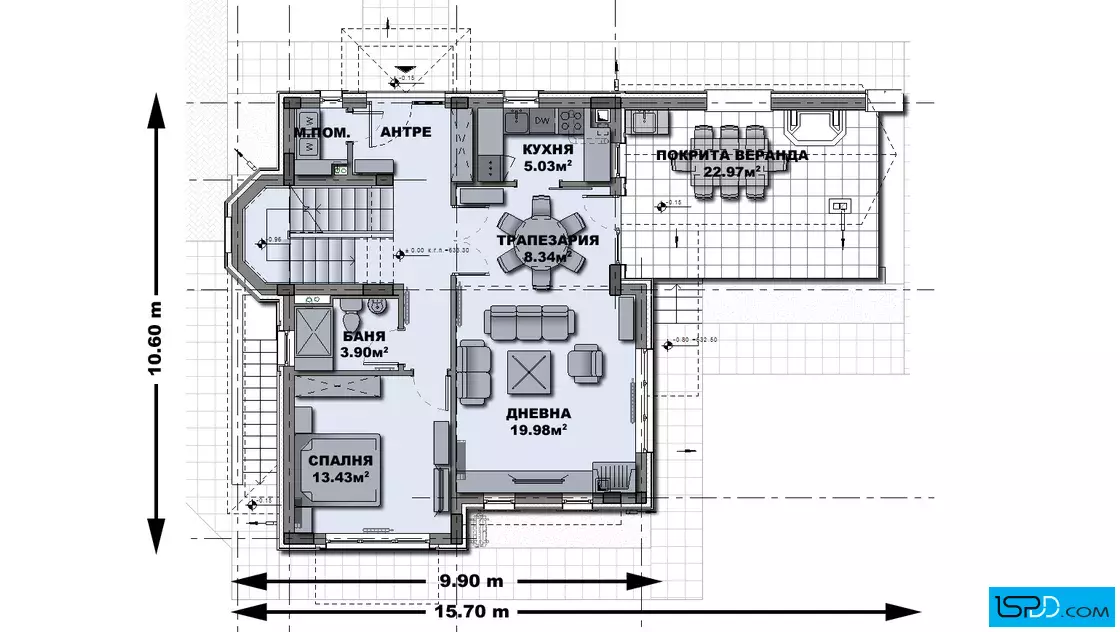
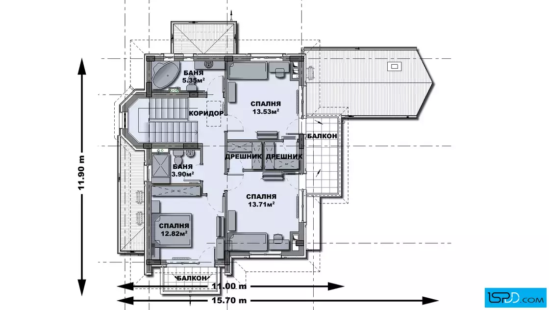
Това е проект на еднофамилна градска къща с модерно излъчване. Обемите са проектирани пластично, а варовиковите кантове около прозорците допринасят за елегантната визия на къщата. Каменната облицовка по фасадата е от рязани плочи гнайс, които са разделени от хоризонтални кантове тъмен гранит. Идеята е фино обработените детайли да подсилят усещането за градска къща. Негативни кантове в топлоизолацията подчертават прозорците. Къщата е на три нива, едно подземно и две надземни. Подземното ниво съдържа обслужващи помещения: мазе, складове и котелно. Проектирано е и външно стълбище за по-лесно обслужване на нивото. Приземният етаж съдържа входно антре, просторна дневна, трапезария, кухня, спалня, баня и мокро помещение. Дневната и трапезарията са решени еднопространствено, а кухнята е отделена в самостоятелно помещение, което посредством плъзгаща се врата може да се приобщи към дневната зона. В дневната е проектиран кът за камина. Всички помещения имат големи прозорци или витрини, като по този начин обитателите ще могат да се възползват максимално от естествената дневна светлина. Проектирана е покрита веранда в югоизточната част на къщата. Развит е кът с барбекю и маса за хранене с поглед към двора. Трето ниво съдържа три спални, две бани общи за етажа и два дрешника, индивидуални за две от спалните. Пред трите спални са проектирани балкони, които са покрити от козирки.
Конструкцията е монолитна стоманобетонна. Ограждащите стени са тухлени с външна топлоизолация. Фасадното оформление включва каменна облицовка от плочи гнайс и бяла и цветна минерална мазилка „Baumit”. Хоризонтални ивици от гранит членят формования гнайс и създават усещането за легнала къща. Дограмата е PVC със стъклопакет от нискоемисионно стъкло. Покривът е четирискатен покрит с бетонни керемиди “Bramac”.
Минималното лице на парцела към улицата е:
за жилищно строителство – 17м
за вилно строителство –19м
ПРОМЕНИ /МОДИФИКАЦИИ/ ПО ПРОЕКТА:
Важно: Ние сме преди всичко архитекти, а не търговци и проектите, които предлагаме не са „готов артикул”, разпечатан и подреден на рафт, чакащ купувачи. Всеки един „готов проект” е отправна точка към Вашия бъдещ дом. Така подготвени проектите позволяват да се променя вида и начина на отопление, да се добавят допълнителни инсталации и системи като СОТ, видео наблюдение и др.
ВЪЗМОЖНИ СА ВСЯКАКВИ ПРОМЕНИ ПО ПРОЕКТИТЕ (от най-минималните като смяна на материалите по фасадата) до основни модификации като промяна на габаритите на къщата, добавяне или премахване на помещения и дори етажи.
Подробен 3D модел на сградата, който изяснява формата и функцията в пълнота още в етапа на проектиране
Бързина на проектирането без компромис с качеството
Анализ на различни варианти и опции и визуализирането им още в начален етап
Функционални планове
Модерен архитектурен софтуер, който минимизира възможните грешки

Визуализациите са илюстративни
Представените изображения са компютърно генерирани фотореалистични образи на сградата, които показват идеята на архитекта. Те визуализират една от многото възможности за завършване на фасадата на сградата. Тяхната основна цел е да изобразят къщата в околната среда по възможно най-реалистичния начин, за да може обитателите да възприемат сградата още преди тя да бъде построена. Цветовете и текстурите на реално изпълнената сграда може да се различават от компютърните изображения.
Фасадните материали могат да бъдат променяни
Визуализациите изобразяват идеята на архитекта и неговото желание да постигане завършен и естетичен образ използвайки конкретни материали по фасадата. Въпреки това, красотата на сградата е строго субективна и затова външната визия може да бъде редактирана според желанията и предпочитанията на възложителите. Всички цветове и материали могат да бъдат променяни, заменяни или премахнати според конкретните нужди.
Всички планове и изображения са предмет на авторско право
Представените визуализации и планове са авторски продукт и плод на архитектурния труд на екипа проектанти на “Ай ЕС Пи Дигитален Дизайн” ООД. Те са изключителна интелектуална собственост на фирмата. На основание член 35 от Закона за авторското право и сродните му права използването на което и да е изображение за търговски, маркетингови и други цели, без изричното писмено съгласие на фирма “Ай ЕС Пи Дигитален Дизайн” ООД е строго забранено.
Коментари и Въпроси