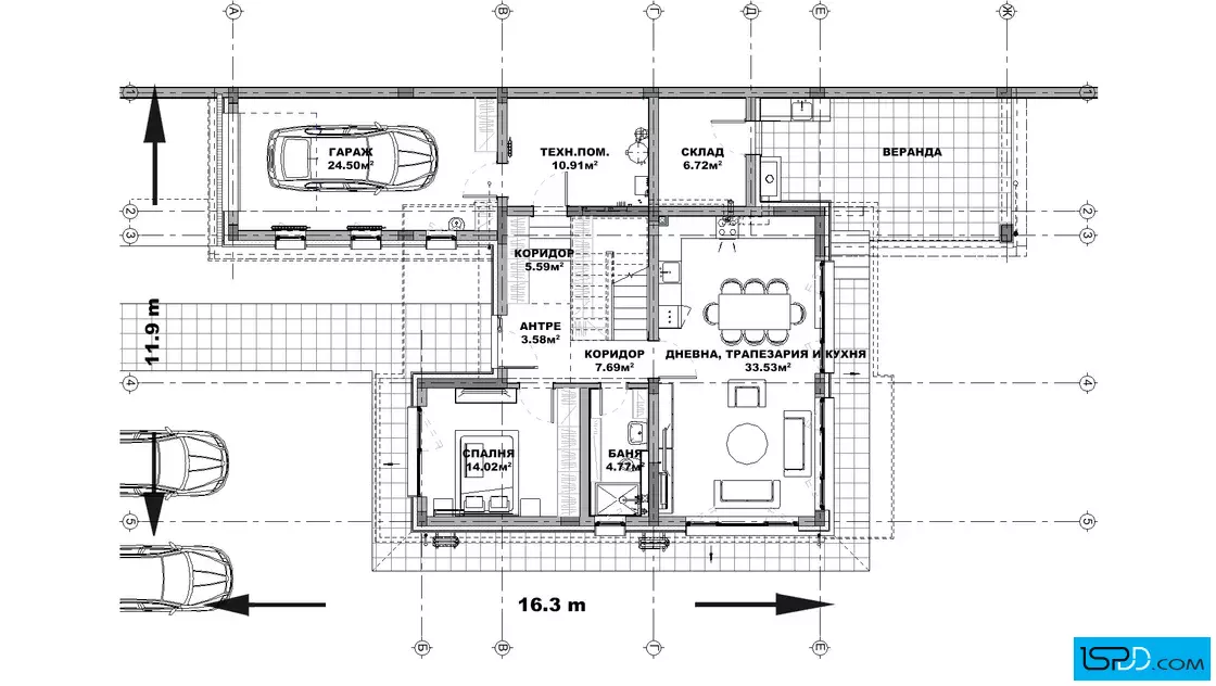
План на първи етаж

Проект на къща в м. Толева Махала
| Етажи | Нето | Бруто |
|---|---|---|
| Първи етаж | 111.32 кв.м. | 140.16 кв.м. |
| Покрит вход/веранда | 26.03 кв.м. | |
| Втори етаж | 94.33 кв.м. | 120.67 кв.м. |
| Общо: | 205.65 кв.м. | 286.86 кв.м. |








Този проект представя съвременна двуетажна къща, проектирана да предложи простор и функционалност за голямо семейство в спокойна среда. На първото ниво е разположена дневната зона, която обединява кухня, трапезария и хол в общо, изпълнено със светлина пространство за семейни моменти. Директният излаз към голямата покрита веранда превръща външното пространство в естествено продължение на дома за отдих на открито. На този етаж е предвидена и една самостоятелна спалня, осигуряваща удобство за гости или за обитатели, които предпочитат живот без стълби. Първото ниво включва още практично антре, баня и обслужващи площи като техническо помещение и склад, които помагат за лесната организация на дома. Вграденият гараж осигурява топла връзка с интериора и сигурно място за автомобила.
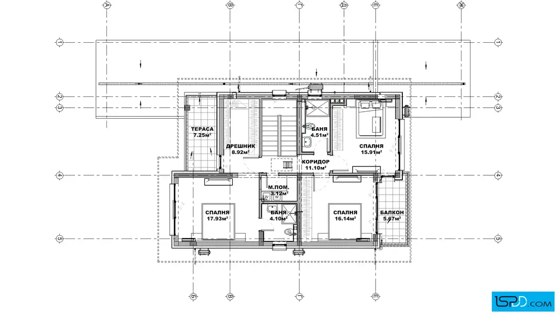
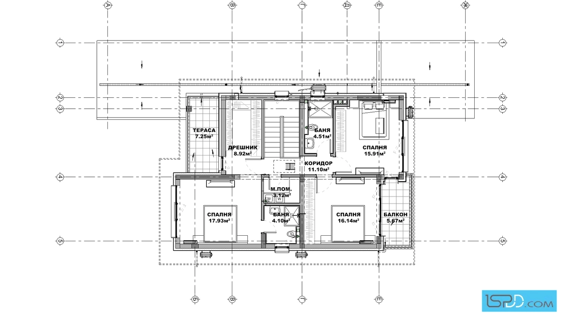
Вторият етаж е изцяло посветен на уединението, като разполага с три големи спални, разпределени около централен коридор. За пълния комфорт на семейството са предвидени две самостоятелни бани на етажа, обслужващи нощната зона. Лайфстайл удобствата се допълват от просторен дрешник към една от спалните и отделно мокро помещение, което улеснява ежедневните домакински задачи. Излазите към терасата и балкона на горното ниво внасят допълнителна светлина и предлагат кът за уединение с гледка към околността.
С обща площ от 261 кв.м., къщата предлага отличен баланс между мащаб и логично вътрешно разпределение. Това е дом, в който пространството е организирано с мисъл за личния комфорт и пълноценния ритъм на всеки член от семейството.
Подробен 3D модел на сградата, който изяснява формата и функцията в пълнота още в етапа на проектиране
Бързина на проектирането без компромис с качеството
Анализ на различни варианти и опции и визуализирането им още в начален етап
Функционални планове
Модерен архитектурен софтуер, който минимизира възможните грешки

Визуализациите са илюстративни
Представените изображения са компютърно генерирани фотореалистични образи на сградата, които показват идеята на архитекта. Те визуализират една от многото възможности за завършване на фасадата на сградата. Тяхната основна цел е да изобразят къщата в околната среда по възможно най-реалистичния начин, за да може обитателите да възприемат сградата още преди тя да бъде построена. Цветовете и текстурите на реално изпълнената сграда може да се различават от компютърните изображения.
Фасадните материали могат да бъдат променяни
Визуализациите изобразяват идеята на архитекта и неговото желание да постигане завършен и естетичен образ използвайки конкретни материали по фасадата. Въпреки това, красотата на сградата е строго субективна и затова външната визия може да бъде редактирана според желанията и предпочитанията на възложителите. Всички цветове и материали могат да бъдат променяни, заменяни или премахнати според конкретните нужди.
Всички планове и изображения са предмет на авторско право
Представените визуализации и планове са авторски продукт и плод на архитектурния труд на екипа проектанти на “Ай ЕС Пи Дигитален Дизайн” ООД. Те са изключителна интелектуална собственост на фирмата. На основание член 35 от Закона за авторското право и сродните му права използването на което и да е изображение за търговски, маркетингови и други цели, без изричното писмено съгласие на фирма “Ай ЕС Пи Дигитален Дизайн” ООД е строго забранено.
Коментари и Въпроси