План на първи етаж

Проект на къща в с. Алино
| Етажи | Нето | Бруто |
|---|---|---|
| Първи етаж | 84.83 кв.м. | 98.63 кв.м. |
| Покрит вход/веранда | 20.53 кв.м. | |
| Втори етаж | 78.99 кв.м. | 92.29 кв.м. |
| Общо: | 163.82 кв.м. | 211.45 кв.м. |








Този проект за модерна двуетажна къща в село Алино е създаден за семейства, които търсят баланс между функционалност и уют в спокойна среда. Първият етаж е организиран около просторна дневна зона, която обединява хол, трапезария и кухня в едно отворено и изпълнено със светлина пространство. Големите витрини осигуряват директна връзка с широката веранда, която кани обитателите да прекарват повече време на открито. На това ниво е разположен и самостоятелен кабинет, идеален за работа от дома или за тихо място за четене и хоби. Обслужващите нужди са предвидени с функционално антре, килер до кухнята, самостоятелна баня и отделно техническо помещение.
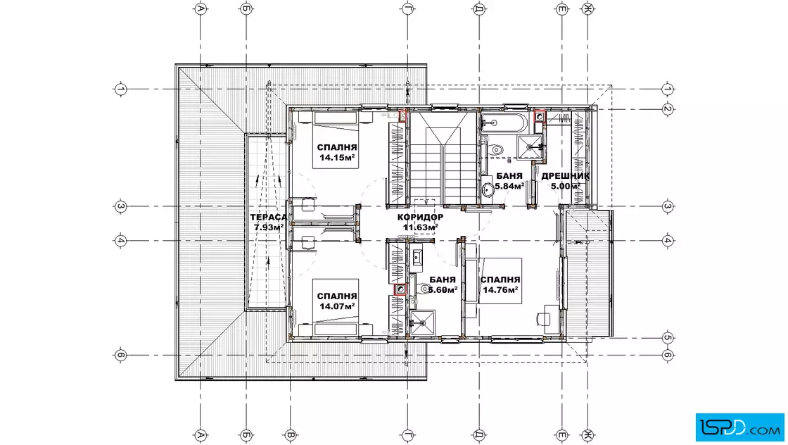
Вторият етаж е изцяло посветен на уединението, като помещава три светли спални, разпределени около централен коридор. Родителската спалня е проектирана като лична зона за комфорт със собствена самостоятелна баня и дрешник. Останалите две спални на етажа споделят втора просторна баня. От горното ниво се излиза на панорамна тераса, която предлага красиви гледки и усещане за простор.
Къщата впечатлява с чисти линии, осигуряваща място за всичко необходимо. Това е дом, който съчетава модерната архитектура с практичността, създавайки хармонична среда за пълноценен семеен живот.
Подробен 3D модел на сградата, който изяснява формата и функцията в пълнота още в етапа на проектиране
Бързина на проектирането без компромис с качеството
Анализ на различни варианти и опции и визуализирането им още в начален етап
Функционални планове
Модерен архитектурен софтуер, който минимизира възможните грешки

Визуализациите са илюстративни
Представените изображения са компютърно генерирани фотореалистични образи на сградата, които показват идеята на архитекта. Те визуализират една от многото възможности за завършване на фасадата на сградата. Тяхната основна цел е да изобразят къщата в околната среда по възможно най-реалистичния начин, за да може обитателите да възприемат сградата още преди тя да бъде построена. Цветовете и текстурите на реално изпълнената сграда може да се различават от компютърните изображения.
Фасадните материали могат да бъдат променяни
Визуализациите изобразяват идеята на архитекта и неговото желание да постигане завършен и естетичен образ използвайки конкретни материали по фасадата. Въпреки това, красотата на сградата е строго субективна и затова външната визия може да бъде редактирана според желанията и предпочитанията на възложителите. Всички цветове и материали могат да бъдат променяни, заменяни или премахнати според конкретните нужди.
Всички планове и изображения са предмет на авторско право
Представените визуализации и планове са авторски продукт и плод на архитектурния труд на екипа проектанти на “Ай ЕС Пи Дигитален Дизайн” ООД. Те са изключителна интелектуална собственост на фирмата. На основание член 35 от Закона за авторското право и сродните му права използването на което и да е изображение за търговски, маркетингови и други цели, без изричното писмено съгласие на фирма “Ай ЕС Пи Дигитален Дизайн” ООД е строго забранено.
Коментари и Въпроси