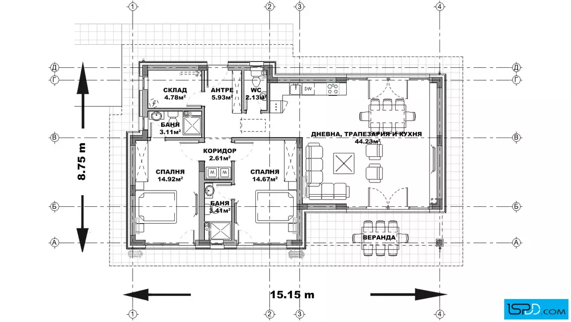
План на първи етаж

Проект на къща в гр. Хисаря
| Етажи | Нето | Бруто |
|---|---|---|
| Първи етаж | 95.79 кв.м. | 119.96 кв.м. |
| Покрит вход/веранда | 10.81 кв.м. | |
| Общо: | 95.79 кв.м. | 130.77 кв.м. |







Едноетажният дом е замислен като удобна, ясна за живеене къща, в която всичко важно е на една крачка разстояние и денят тече спокойно. Дневната зона обединява кухня, трапезария и хол в отворено, светло пространство, което събира семейството естествено около общата маса. Оттук излизате директно към покритата веранда – място за сутрешно кафе, обяд на сянка и дълги вечери навън, близо до двора. Входът е организиран с антре и кратък коридор, а към тях са добавени склад и санитарни помещения, за да има ред и практичност в ежедневието.
На първия етаж има две спални, разположени в по-тихата част на къщата. Домът работи еднакво добре и за млада двойка, и за семейство с дете. Към нощната зона са предвидени две бани, които правят сутрините по-лесни и дават комфорт, когато има гости. Допълнително има отделно WC, удобно позиционирано спрямо дневната част.
Фасадата е предвидена с минерална мазилка и каменна облицовка, а покривът е четирискатен с керамични керемиди. Това е дом, който дава усещане за подреденост, близост и свобода да прекарвате повече време заедно – вътре и на верандата.
Подробен 3D модел на сградата, който изяснява формата и функцията в пълнота още в етапа на проектиране
Бързина на проектирането без компромис с качеството
Анализ на различни варианти и опции и визуализирането им още в начален етап
Функционални планове
Модерен архитектурен софтуер, който минимизира възможните грешки

Визуализациите са илюстративни
Представените изображения са компютърно генерирани фотореалистични образи на сградата, които показват идеята на архитекта. Те визуализират една от многото възможности за завършване на фасадата на сградата. Тяхната основна цел е да изобразят къщата в околната среда по възможно най-реалистичния начин, за да може обитателите да възприемат сградата още преди тя да бъде построена. Цветовете и текстурите на реално изпълнената сграда може да се различават от компютърните изображения.
Фасадните материали могат да бъдат променяни
Визуализациите изобразяват идеята на архитекта и неговото желание да постигане завършен и естетичен образ използвайки конкретни материали по фасадата. Въпреки това, красотата на сградата е строго субективна и затова външната визия може да бъде редактирана според желанията и предпочитанията на възложителите. Всички цветове и материали могат да бъдат променяни, заменяни или премахнати според конкретните нужди.
Всички планове и изображения са предмет на авторско право
Представените визуализации и планове са авторски продукт и плод на архитектурния труд на екипа проектанти на “Ай ЕС Пи Дигитален Дизайн” ООД. Те са изключителна интелектуална собственост на фирмата. На основание член 35 от Закона за авторското право и сродните му права използването на което и да е изображение за търговски, маркетингови и други цели, без изричното писмено съгласие на фирма “Ай ЕС Пи Дигитален Дизайн” ООД е строго забранено.
Коментари и Въпроси