План на първи етаж

Проект на къща в с. Лесново
| Етажи | Нето | Бруто |
|---|---|---|
| Първи етаж | 67.04 кв.м. | 86.32 кв.м. |
| Покрит вход/веранда | 34.87 кв.м. | |
| Втори етаж | 72.83 кв.м. | 93 кв.м. |
| Общо: | 139.87 кв.м. | 214.19 кв.м. |








Този проект в село Лесново представлява модерна двуетажна къща, създадена за пълноценен и подреден семеен живот. Първият етаж е изцяло посветен на споделените моменти, като обединява дневната, трапезарията и кухнята в едно светло и просторно пространство. Големите витрини осигуряват директен достъп до обширна покрита веранда, която се превръща в естествено място за семейни вечери на открито. Обслужващата част на първия етаж включва удобно антре, две тоалетни, склад и отделно техническо помещение за всички домашни инсталации.
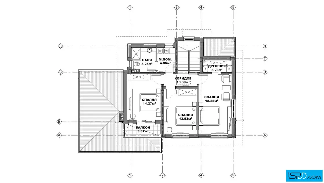
Вторият етаж е оформен като тиха зона за почивка с три самостоятелни спални. Родителската спалня предлага допълнителен комфорт със собствен дрешник, осигуряващ отлично място за организация на личните вещи. Другите две спални са разположени в непосредствена близост и са идеални за детски стаи или пространство за гости. За удобство на цялото семейство на етажа са проектирани голяма баня и отделно мокро помещение за пералня и сушилня. Една от стаите разполага и със собствен балкон, който внася още светлина и свеж въздух в нощната зона.
Със своите 179 кв.м. площ, домът предлага перфектен баланс между социален живот и лично уединение. Това е къща, в която пространството работи за нуждите на семейството, създавайки усещане за уют и модерна практичност всеки ден.
Подробен 3D модел на сградата, който изяснява формата и функцията в пълнота още в етапа на проектиране
Бързина на проектирането без компромис с качеството
Анализ на различни варианти и опции и визуализирането им още в начален етап
Функционални планове
Модерен архитектурен софтуер, който минимизира възможните грешки

Визуализациите са илюстративни
Представените изображения са компютърно генерирани фотореалистични образи на сградата, които показват идеята на архитекта. Те визуализират една от многото възможности за завършване на фасадата на сградата. Тяхната основна цел е да изобразят къщата в околната среда по възможно най-реалистичния начин, за да може обитателите да възприемат сградата още преди тя да бъде построена. Цветовете и текстурите на реално изпълнената сграда може да се различават от компютърните изображения.
Фасадните материали могат да бъдат променяни
Визуализациите изобразяват идеята на архитекта и неговото желание да постигане завършен и естетичен образ използвайки конкретни материали по фасадата. Въпреки това, красотата на сградата е строго субективна и затова външната визия може да бъде редактирана според желанията и предпочитанията на възложителите. Всички цветове и материали могат да бъдат променяни, заменяни или премахнати според конкретните нужди.
Всички планове и изображения са предмет на авторско право
Представените визуализации и планове са авторски продукт и плод на архитектурния труд на екипа проектанти на “Ай ЕС Пи Дигитален Дизайн” ООД. Те са изключителна интелектуална собственост на фирмата. На основание член 35 от Закона за авторското право и сродните му права използването на което и да е изображение за търговски, маркетингови и други цели, без изричното писмено съгласие на фирма “Ай ЕС Пи Дигитален Дизайн” ООД е строго забранено.
Коментари и Въпроси