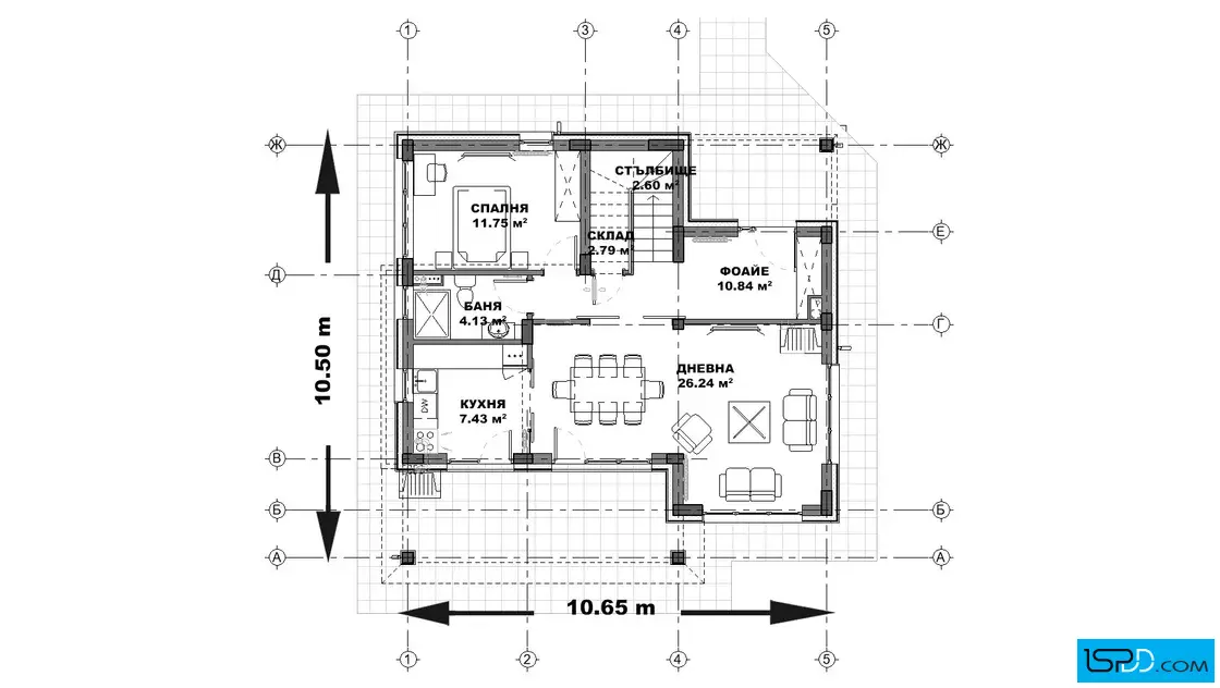
План на първи етаж

Проект на къща в с. Тръстиково
| Етажи | Нето | Бруто |
|---|---|---|
| Първи етаж | 65.78 кв.м. | 83.63 кв.м. |
| Покрит вход/веранда | 21.93 кв.м. | |
| Втори етаж | 72.55 кв.м. | 91.61 кв.м. |
| Трети етаж | 73.34 кв.м. | 60.67 кв.м. |
| Общо: | 211.67 кв.м. | 257.84 кв.м. |









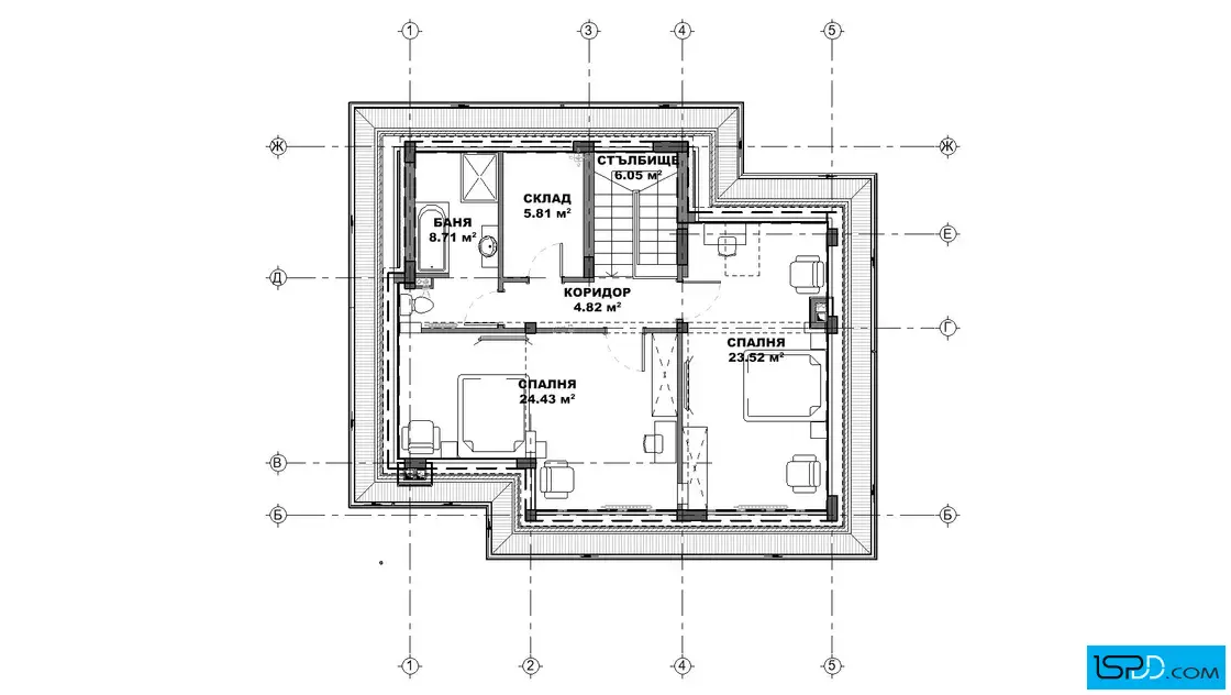
Еднофамилната къща не винаги трябва да изглежда като едно ограничено пространство с няколко малки на площ стаи, задоволяваща само най-основните потребности. Някои от предложенията в сайта дават нужния простор, който търсим в извънградския дом. Тук концепцията за фамилно жилище е „издигната“ на цели три етажа. Въпреки по-компактния си външен вид, проектът има всички характеристики на солидното строителство: стоманобетонна конструкция, тухлени стени, четирискатен покрив, дограма с дву или трикамерен стъклопакет, облицовка от камък. Тук не е допуснат компромис. Също както стила на къщата – раздвижен, но и в класическата традиция на извънградското строителство. Какво да очакваме от интериора на трите етажа - пространството е усвоено по много функционален начин, като дневната и кухнята са на първия етаж, а над тях са спалните.
Покритите вход и веранда са препратка към вилата, а и предполагат приятно прекарване на времето. Независимо дали очаквате роднини или приятели, можете да ги посрещенете без притеснения. И да ги настаните по най-добрия начин. Решите ли пък да използвате къщата са целогодишно обитаване, удобствата, които са на разположение ще ви убедят бързо в чара на селския живот.
Проектът е подходящ за по-малки парцели и стръмен терен.
Подробен 3D модел на сградата, който изяснява формата и функцията в пълнота още в етапа на проектиране
Бързина на проектирането без компромис с качеството
Анализ на различни варианти и опции и визуализирането им още в начален етап
Функционални планове
Модерен архитектурен софтуер, който минимизира възможните грешки

Визуализациите са илюстративни
Представените изображения са компютърно генерирани фотореалистични образи на сградата, които показват идеята на архитекта. Те визуализират една от многото възможности за завършване на фасадата на сградата. Тяхната основна цел е да изобразят къщата в околната среда по възможно най-реалистичния начин, за да може обитателите да възприемат сградата още преди тя да бъде построена. Цветовете и текстурите на реално изпълнената сграда може да се различават от компютърните изображения.
Фасадните материали могат да бъдат променяни
Визуализациите изобразяват идеята на архитекта и неговото желание да постигане завършен и естетичен образ използвайки конкретни материали по фасадата. Въпреки това, красотата на сградата е строго субективна и затова външната визия може да бъде редактирана според желанията и предпочитанията на възложителите. Всички цветове и материали могат да бъдат променяни, заменяни или премахнати според конкретните нужди.
Всички планове и изображения са предмет на авторско право
Представените визуализации и планове са авторски продукт и плод на архитектурния труд на екипа проектанти на “Ай ЕС Пи Дигитален Дизайн” ООД. Те са изключителна интелектуална собственост на фирмата. На основание член 35 от Закона за авторското право и сродните му права използването на което и да е изображение за търговски, маркетингови и други цели, без изричното писмено съгласие на фирма “Ай ЕС Пи Дигитален Дизайн” ООД е строго забранено.
Коментари и Въпроси