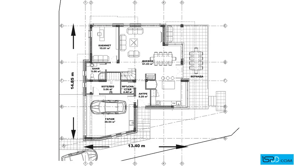
План на първи етаж

Проект на къща в с. Кокаляне
| Етажи | Нето | Бруто |
|---|---|---|
| Първи етаж | 127.55 кв.м. | 154.43 кв.м. |
| Покрит вход/веранда | 5.2 кв.м. | |
| Втори етаж | 105.5 кв.м. | 131.19 кв.м. |
| Общо: | 233.05 кв.м. | 290.82 кв.м. |








Проектите на еднофамилни къщи в сайта са съобразени по няколко критерия, но външния вид и стила са най-важни. Това е съвсем естествено и не бива да ви учудва – извънградския дом се избира по-трудно от жилището в мегаполиса. Фокусираме се върху функционалността и интериора, но също така и визията на фасадата и връзката на къщата с дворното пространство. Затова, когато става дума за правилното решение за вашите търсения, то трябва да бъде със следните параметри: четирискатен покрив и стоманобетонна конструкция, гараж, покрита веранда и разбира се – достатъчно място за приятно прекарване на семейството. На първия етаж са разположени кабинет, просторен дневен тракт и кухня. Ако сте решили да прекарате приятни часове на чист въздух, още по-близо до природата, просто е нужно да се преместите на уютната веранда. Сами или с компания – тук ще откриете онова спокойствие, което дава селския въздух. Спалните ви очакват на етаж две.
Ако можем да обобщим: пет стаи, три спални, два балкона, веранда и... безкрайни възможности да превърнете този проект в мечтания дом извън града. Но извън квадратните метри, материалите и облицовките на екстериора – ако вече си представяте как това е част от живота ви, значи е въпрос на време да реализирате една мечта.
Проектът е подходящ за голям парцел с наклон.
Подробен 3D модел на сградата, който изяснява формата и функцията в пълнота още в етапа на проектиране
Бързина на проектирането без компромис с качеството
Анализ на различни варианти и опции и визуализирането им още в начален етап
Функционални планове
Модерен архитектурен софтуер, който минимизира възможните грешки

Визуализациите са илюстративни
Представените изображения са компютърно генерирани фотореалистични образи на сградата, които показват идеята на архитекта. Те визуализират една от многото възможности за завършване на фасадата на сградата. Тяхната основна цел е да изобразят къщата в околната среда по възможно най-реалистичния начин, за да може обитателите да възприемат сградата още преди тя да бъде построена. Цветовете и текстурите на реално изпълнената сграда може да се различават от компютърните изображения.
Фасадните материали могат да бъдат променяни
Визуализациите изобразяват идеята на архитекта и неговото желание да постигане завършен и естетичен образ използвайки конкретни материали по фасадата. Въпреки това, красотата на сградата е строго субективна и затова външната визия може да бъде редактирана според желанията и предпочитанията на възложителите. Всички цветове и материали могат да бъдат променяни, заменяни или премахнати според конкретните нужди.
Всички планове и изображения са предмет на авторско право
Представените визуализации и планове са авторски продукт и плод на архитектурния труд на екипа проектанти на “Ай ЕС Пи Дигитален Дизайн” ООД. Те са изключителна интелектуална собственост на фирмата. На основание член 35 от Закона за авторското право и сродните му права използването на което и да е изображение за търговски, маркетингови и други цели, без изричното писмено съгласие на фирма “Ай ЕС Пи Дигитален Дизайн” ООД е строго забранено.
Коментари и Въпроси