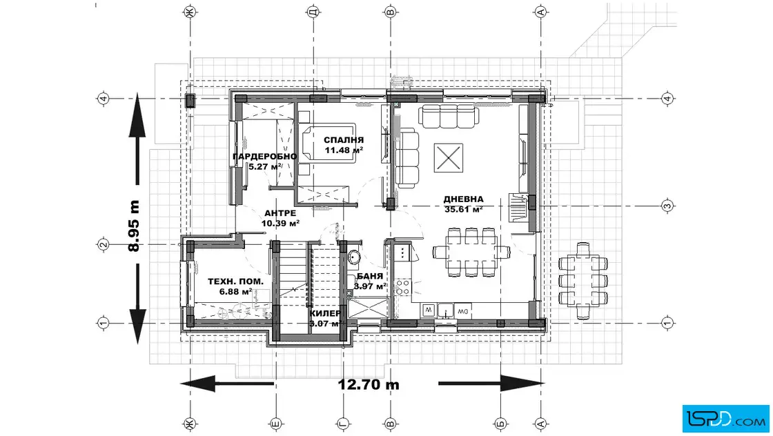
План на първи етаж

Проект на къща в с. Нови хан
| Етажи | Нето | Бруто |
|---|---|---|
| Първи етаж | 76.67 кв.м. | 96.5 кв.м. |
| Покрит вход/веранда | 8.2 кв.м. | |
| Втори етаж | 89.99 кв.м. | 113.56 кв.м. |
| Общо: | 166.66 кв.м. | 218.26 кв.м. |








Търсите своя втори дом сред спокойствието на българското село. Но и не бихте се отказали от удобствата на градския живот, нали? Това предложение съчетава по перфектен начин и двете. От една страна стила на извънградската вила, с нейната архитектура, силно наподобяваща познатите ни къщи от Възраждането. И от друга – модерните елементи като PVC или алуминиева дограма с двоен /троен стъклопакет и декоративни HPL панели. Двуетажната постройка е с монолитна стоманенобетонна конструкция, тухлени стени и класически четирискатен покрив. Покритите вход и веранда затвърждават визията на удобно еднофамилно жилище, залагащо както на надеждната основа, така и на стилно място за почивка.
Интериорът е организиран максимално ефикасно, като на първия етаж е мястото на дневния бокс – кухня и трапезария. Това превръща пространството в естествен център за обитание през деня. Тъй като верандата е отделена само с една стъклена врата, имате чудесен избор къде да посрещнете своите гости. Които няма да закъснеят да се възползват от възможността да прекарат приятни часове в толкова приятна обстановка. На втория етаж са спалните и кабинет, защото за работа и почивка е нужно спокойствие.
Въпреки компактните си размери, настоящото предложение ще се хареса на всички. Близостта до природата, селският идиличен живот, прекрасен провинциален дон – това няма как да не привлича внимание.
Проектът е подходящ за по-малки и равнинни парцели.
Подробен 3D модел на сградата, който изяснява формата и функцията в пълнота още в етапа на проектиране
Бързина на проектирането без компромис с качеството
Анализ на различни варианти и опции и визуализирането им още в начален етап
Функционални планове
Модерен архитектурен софтуер, който минимизира възможните грешки

Визуализациите са илюстративни
Представените изображения са компютърно генерирани фотореалистични образи на сградата, които показват идеята на архитекта. Те визуализират една от многото възможности за завършване на фасадата на сградата. Тяхната основна цел е да изобразят къщата в околната среда по възможно най-реалистичния начин, за да може обитателите да възприемат сградата още преди тя да бъде построена. Цветовете и текстурите на реално изпълнената сграда може да се различават от компютърните изображения.
Фасадните материали могат да бъдат променяни
Визуализациите изобразяват идеята на архитекта и неговото желание да постигане завършен и естетичен образ използвайки конкретни материали по фасадата. Въпреки това, красотата на сградата е строго субективна и затова външната визия може да бъде редактирана според желанията и предпочитанията на възложителите. Всички цветове и материали могат да бъдат променяни, заменяни или премахнати според конкретните нужди.
Всички планове и изображения са предмет на авторско право
Представените визуализации и планове са авторски продукт и плод на архитектурния труд на екипа проектанти на “Ай ЕС Пи Дигитален Дизайн” ООД. Те са изключителна интелектуална собственост на фирмата. На основание член 35 от Закона за авторското право и сродните му права използването на което и да е изображение за търговски, маркетингови и други цели, без изричното писмено съгласие на фирма “Ай ЕС Пи Дигитален Дизайн” ООД е строго забранено.
Коментари и Въпроси