План на приземен етаж

Проект на къща в гр. София
| Етажи | Нето | Бруто |
|---|---|---|
| Подземен етаж | 31.05 кв.м. | 39.13 кв.м. |
| Първи етаж | 207.78 кв.м. | 254.7 кв.м. |
| Покрит вход/веранда | 23.53 кв.м. | |
| Втори етаж | 69.63 кв.м. | 87.97 кв.м. |
| Общо: | 308.46 кв.м. | 405.33 кв.м. |












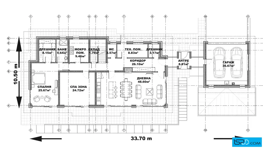
Този проект представя модерна и мащабна еднофамилна къща в град София, създадена за висок стандарт на обитаване с акцент върху простора. Основното ниво впечатлява с голяма дневна зона, в която холът, трапезарията и кухнята са обединени в общо светло пространство за споделени семейни моменти. Големите панорамни витрини осигуряват плавен преход към двора и зоната около басейна, превръщайки екстериора в естествено продължение на интериора. На първия етаж е разположена главната спалня, която функционира като лично убежище със собствен дрешник и самостоятелна баня. Обслужващите функции на това ниво са практично организирани в антре, мокро помещение, техническа стая и допълнителни складове. Проектът предвижда и голям гараж за два автомобила, който има директна вътрешна връзка с жилищната част.
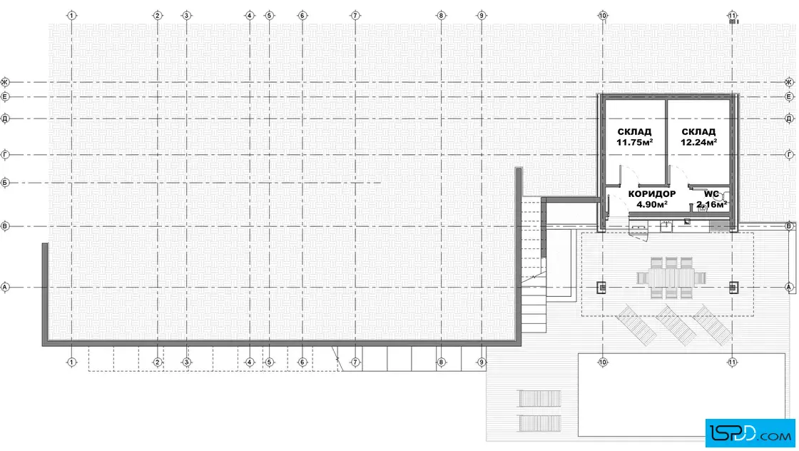
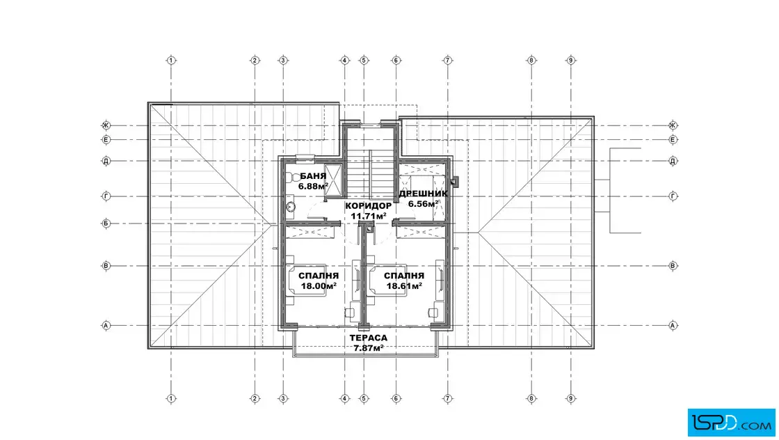
Вторият етаж е посветен на спокойствието и включва две допълнителни слънчеви спални, идеални за деца или гости. Тези помещения споделят голяма баня и общ дрешник, а достъпът до етажната тераса внася още светлина и усещане за свобода. Изключително допълнение към лайфстайла е специално обособената СПА зона на първия етаж, предназначена за здраве и пълноценен релакс у дома. Подземното ниво добавя висока практична стойност с две големи складови помещения и тоалетна, удобни за обслужване на нуждите на домакинството.
Архитектурата на сградата залага на изчистен функционализъм и логично разпределение на зоните. Това е дом, в който луксозните удобства и ежедневният комфорт се срещат, за да осигурят хармонична среда за всяко семейство.
Подробен 3D модел на сградата, който изяснява формата и функцията в пълнота още в етапа на проектиране
Бързина на проектирането без компромис с качеството
Анализ на различни варианти и опции и визуализирането им още в начален етап
Функционални планове
Модерен архитектурен софтуер, който минимизира възможните грешки

Визуализациите са илюстративни
Представените изображения са компютърно генерирани фотореалистични образи на сградата, които показват идеята на архитекта. Те визуализират една от многото възможности за завършване на фасадата на сградата. Тяхната основна цел е да изобразят къщата в околната среда по възможно най-реалистичния начин, за да може обитателите да възприемат сградата още преди тя да бъде построена. Цветовете и текстурите на реално изпълнената сграда може да се различават от компютърните изображения.
Фасадните материали могат да бъдат променяни
Визуализациите изобразяват идеята на архитекта и неговото желание да постигане завършен и естетичен образ използвайки конкретни материали по фасадата. Въпреки това, красотата на сградата е строго субективна и затова външната визия може да бъде редактирана според желанията и предпочитанията на възложителите. Всички цветове и материали могат да бъдат променяни, заменяни или премахнати според конкретните нужди.
Всички планове и изображения са предмет на авторско право
Представените визуализации и планове са авторски продукт и плод на архитектурния труд на екипа проектанти на “Ай ЕС Пи Дигитален Дизайн” ООД. Те са изключителна интелектуална собственост на фирмата. На основание член 35 от Закона за авторското право и сродните му права използването на което и да е изображение за търговски, маркетингови и други цели, без изричното писмено съгласие на фирма “Ай ЕС Пи Дигитален Дизайн” ООД е строго забранено.
Коментари и Въпроси