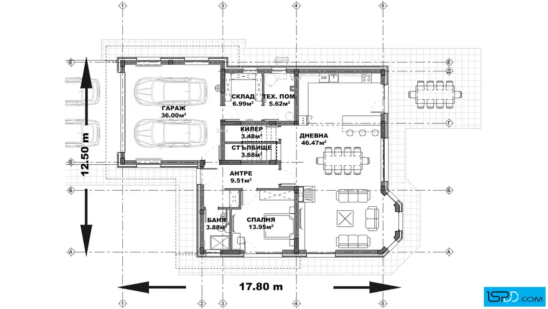
План на първи етаж

Проект на къща в гр. София
| Етажи | Нето | Бруто |
|---|---|---|
| Първи етаж | 146.32 кв.м. | 175.98 кв.м. |
| Втори етаж | 102.05 кв.м. | 126.28 кв.м. |
| Общо: | 248.37 кв.м. | 302.26 кв.м. |








Този проект в София представя просторен и модерен двуетажен дом, създаден да осигури висок стандарт на обитаване за всяко съвременно семейство. Първият етаж е развит около впечатляваща дневна зона, която обединява кухня, трапезария и хол в едно светло и отворено пространство. Големите витрини свързват интериора с обширна веранда, превръщайки двора в естествено продължение на дома за летните вечери. На това ниво е разположена самостоятелна спалня, която е отлично решение за стая за гости или за обитатели, избягващи стълбите. Функционалността на етажа се допълва от практичен килер към кухнята, техническо помещение и склад, които поддържат реда в къщата. Вграденият гараж за два автомобила осигурява топла и сигурна връзка директно към антрето на дома.
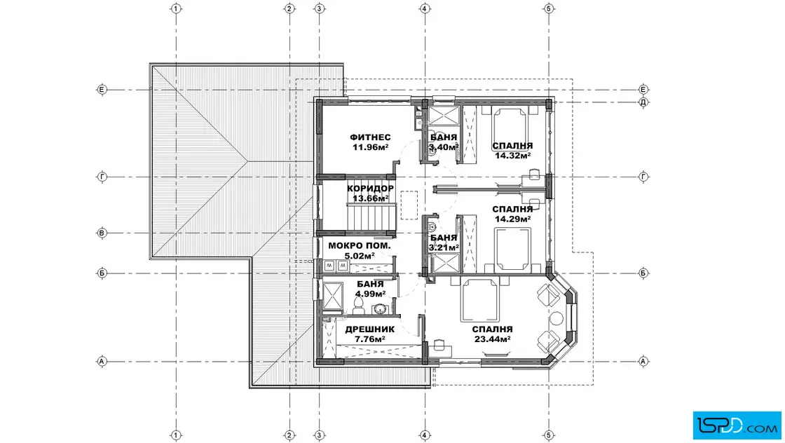
Вторият етаж е посветен на пълноценната почивка и включва три просторни спални, разпределени около централен коридор. Родителската спалня е проектирана като истинско лично убежище със собствен голям дрешник и самостоятелна баня. Другите две спални на нивото са изключително удобни, като всяка от тях разполага със своя индивидуална баня за пълна независимост. Специален акцент в проекта е отделната фитнес зала на втория етаж, която позволява ежедневната грижа за тонуса да се случва в уединението на дома. На същото ниво е предвидено и отделно мокро помещение, което прави организирането на домакинството лесно и подредено. Това е дом, в който архитектурата и практичното зониране се срещат, за да предложат спокойствие, светлина и комфорт във всеки детайл.
Подробен 3D модел на сградата, който изяснява формата и функцията в пълнота още в етапа на проектиране
Бързина на проектирането без компромис с качеството
Анализ на различни варианти и опции и визуализирането им още в начален етап
Функционални планове
Модерен архитектурен софтуер, който минимизира възможните грешки

Визуализациите са илюстративни
Представените изображения са компютърно генерирани фотореалистични образи на сградата, които показват идеята на архитекта. Те визуализират една от многото възможности за завършване на фасадата на сградата. Тяхната основна цел е да изобразят къщата в околната среда по възможно най-реалистичния начин, за да може обитателите да възприемат сградата още преди тя да бъде построена. Цветовете и текстурите на реално изпълнената сграда може да се различават от компютърните изображения.
Фасадните материали могат да бъдат променяни
Визуализациите изобразяват идеята на архитекта и неговото желание да постигане завършен и естетичен образ използвайки конкретни материали по фасадата. Въпреки това, красотата на сградата е строго субективна и затова външната визия може да бъде редактирана според желанията и предпочитанията на възложителите. Всички цветове и материали могат да бъдат променяни, заменяни или премахнати според конкретните нужди.
Всички планове и изображения са предмет на авторско право
Представените визуализации и планове са авторски продукт и плод на архитектурния труд на екипа проектанти на “Ай ЕС Пи Дигитален Дизайн” ООД. Те са изключителна интелектуална собственост на фирмата. На основание член 35 от Закона за авторското право и сродните му права използването на което и да е изображение за търговски, маркетингови и други цели, без изричното писмено съгласие на фирма “Ай ЕС Пи Дигитален Дизайн” ООД е строго забранено.
Коментари и Въпроси