План на подземен етаж

Еднофамилна къща в общ. Несебър







Специфичното при проектирането на тази къща е преодоляването на голямата денивелация на терена, както и създаването на модерен облик чрез преплитането на обеми и умелото съчетаване на материалите. Търсено е максимално остъкляване към улицата, защото натам се открива прекрасна гледка към целия залив и Черно море.
Къщата се състои от сутерен, партер, един жилищен етаж и покривна тераса. Сутеренът съдържа гараж за два автомобила и мазе.
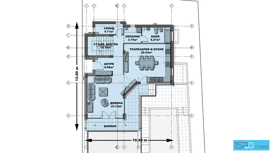
Партерният етаж е проектиран полувкопан в ската, като в предната част се намират дневна с камина, кухня с трапезария и входно антре, а отзад са склада, пералното помещение и банята. Стълбищната клетка е решена от северозапад в непосредствена близост до главния вход за сградата. Дневната и трапезарията са ориентирани към двора и са в директна връзка с него.
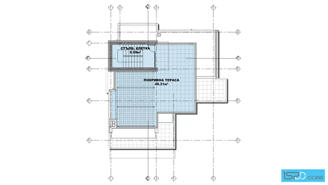
На първия жилищен етаж са проектирани три спални и два бани. От всяка спалня се излиза на тераса, като две от спалните споделят обща тераса. От покривната тераса се открива гледка към целия залив. Проектирана е метална слънцезащитна пергола и зона за барбекю. Носещата конструкция на къщата е монолитна, стоманобетонна. Всички стени са от тухли, като външните стени са проектирани с необходимата топлоизолация, монтирана външно съгласно проекта по енергийна ефективност. Фасадната обработка на къщата включва полимерна мазилка, каменна облицовка, както и облицовка от композитни панели в дървесни шарки.
Площ на сутерен: 82 кв.м.
Площ на партерен етаж: 94 кв.м.
Площ на първи жилищен етаж: 110 кв.м.
Площ на покрита част от покривна тераса (стълбище): 13 кв.м.
Подробен 3D модел на сградата, който изяснява формата и функцията в пълнота още в етапа на проектиране
Бързина на проектирането без компромис с качеството
Анализ на различни варианти и опции и визуализирането им още в начален етап
Функционални планове
Модерен архитектурен софтуер, който минимизира възможните грешки

Визуализациите са илюстративни
Представените изображения са компютърно генерирани фотореалистични образи на сградата, които показват идеята на архитекта. Те визуализират една от многото възможности за завършване на фасадата на сградата. Тяхната основна цел е да изобразят къщата в околната среда по възможно най-реалистичния начин, за да може обитателите да възприемат сградата още преди тя да бъде построена. Цветовете и текстурите на реално изпълнената сграда може да се различават от компютърните изображения.
Фасадните материали могат да бъдат променяни
Визуализациите изобразяват идеята на архитекта и неговото желание да постигане завършен и естетичен образ използвайки конкретни материали по фасадата. Въпреки това, красотата на сградата е строго субективна и затова външната визия може да бъде редактирана според желанията и предпочитанията на възложителите. Всички цветове и материали могат да бъдат променяни, заменяни или премахнати според конкретните нужди.
Всички планове и изображения са предмет на авторско право
Представените визуализации и планове са авторски продукт и плод на архитектурния труд на екипа проектанти на “Ай ЕС Пи Дигитален Дизайн” ООД. Те са изключителна интелектуална собственост на фирмата. На основание член 35 от Закона за авторското право и сродните му права използването на което и да е изображение за търговски, маркетингови и други цели, без изричното писмено съгласие на фирма “Ай ЕС Пи Дигитален Дизайн” ООД е строго забранено.
Коментари и Въпроси