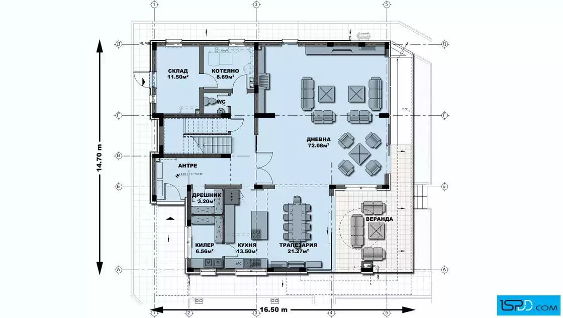
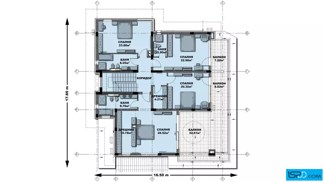
План на първи етаж

Готов проект на къща 53













Това е проект на луксозна градска къща или къща за гости с модерна визия и пластични обеми. Контрастът между плътни и прозрачни материали, тъмни и светли повърхнини, както и скосените плоскости на козирката допринасят за съвременното звучене на къщата. Просторни витрини приобщават помещенията към двора и верандата. Идеята е дневната светлина да проникне дълбоко в интериора. Проектното решение залага на големи подпорни разстояния, които създават усещане за простор и лукс. Къщата е на два етажа като на първо ниво са разположени входно антре, голяма дневна с кът за камина, трапезария, кухня с островна част, килер, дрешник, тоалетна, склад и котелно. Проектирана е голяма покрита веранда, от която се разкрива целия двор. Дървена пергола с увивна растителност засенчва кухненския прозорец. На второ ниво са проектирани главна спалня със самостоятелен дрешник и баня, три просторни спални, още две бани и дрешник. Голяма полу-покрита тераса е разположена пред три от спалните към двора. Проектирано е универсално подпокривно пространство, което е осветено от четири покривни прозореца.
Конструкцията е монолитна стоманобетонна. Ограждащите стени са тухлени с външна топлоизолация. Фасадното оформление включва каменна облицовка от варовикови плочи, бяла и цветна минерална мазилка „Baumit” и дървена облицовка. Дограмата е PVC със стъклопакет от нискоемисионно стъкло. Покривът е четирискатен покрит с бетонни керемиди “Bramac”.
Минималното лице на парцела към улицата е:
за жилищно строителство – 21м
за вилно строителство – 23м
Интериорното оформление е разработено от арх. Камелия Георгиева
ПРОМЕНИ /МОДИФИКАЦИИ/ ПО ПРОЕКТА:
Важно: Ние сме преди всичко архитекти, а не търговци и проектите, които предлагаме не са „готов артикул”, разпечатан и подреден на рафт, чакащ купувачи. Всеки един „готов проект” е отправна точка към Вашия бъдещ дом. Така подготвени проектите позволяват да се променя вида и начина на отопление, да се добавят допълнителни инсталации и системи като СОТ, видео наблюдение и др.
ВЪЗМОЖНИ СА ВСЯКАКВИ ПРОМЕНИ ПО ПРОЕКТИТЕ (от най-минималните като смяна на материалите по фасадата) до основни модификации като промяна на габаритите на къщата, добавяне или премахване на помещения и дори етажи.
Подробен 3D модел на сградата, който изяснява формата и функцията в пълнота още в етапа на проектиране
Бързина на проектирането без компромис с качеството
Анализ на различни варианти и опции и визуализирането им още в начален етап
Функционални планове
Модерен архитектурен софтуер, който минимизира възможните грешки

Визуализациите са илюстративни
Представените изображения са компютърно генерирани фотореалистични образи на сградата, които показват идеята на архитекта. Те визуализират една от многото възможности за завършване на фасадата на сградата. Тяхната основна цел е да изобразят къщата в околната среда по възможно най-реалистичния начин, за да може обитателите да възприемат сградата още преди тя да бъде построена. Цветовете и текстурите на реално изпълнената сграда може да се различават от компютърните изображения.
Фасадните материали могат да бъдат променяни
Визуализациите изобразяват идеята на архитекта и неговото желание да постигане завършен и естетичен образ използвайки конкретни материали по фасадата. Въпреки това, красотата на сградата е строго субективна и затова външната визия може да бъде редактирана според желанията и предпочитанията на възложителите. Всички цветове и материали могат да бъдат променяни, заменяни или премахнати според конкретните нужди.
Всички планове и изображения са предмет на авторско право
Представените визуализации и планове са авторски продукт и плод на архитектурния труд на екипа проектанти на “Ай ЕС Пи Дигитален Дизайн” ООД. Те са изключителна интелектуална собственост на фирмата. На основание член 35 от Закона за авторското право и сродните му права използването на което и да е изображение за търговски, маркетингови и други цели, без изричното писмено съгласие на фирма “Ай ЕС Пи Дигитален Дизайн” ООД е строго забранено.
Коментари и Въпроси