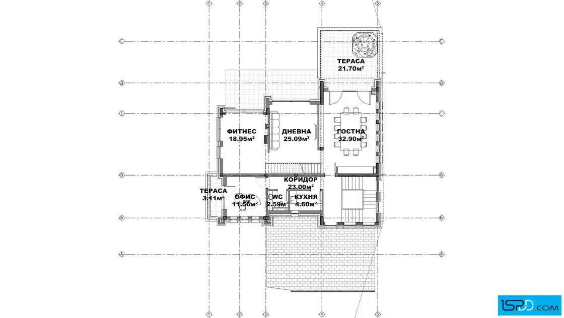
План на приземен етаж

Проект на къща в гр. София
| Етажи | Нето | Бруто |
|---|---|---|
| Първи етаж | 177.24 кв.м. | 201.54 кв.м. |
| Покрит вход/веранда | 33.91 кв.м. | |
| Втори етаж | 143.5 кв.м. | 170.26 кв.м. |
| Общо: | 320.74 кв.м. | 405.71 кв.м. |










Обикновено неравните терени означават компромис с площта на постройките върху тях. В този случай обаче на вашето внимание са четири етажа, девет стаи, шест спални, веранда, фитнес и офис кабинет, гараж. И всичко това, зад атрактивна тухлена фасада, превръщайки проекта в едно оригинално предложение за мнозина. Удобство, стил и лукс – това са характеристиките на този еднофамилен дом. Оказва се, че ограниченото място не е проблем, напротив. Предизвикателството е решено с едно нетипично разпределение на помещенията: дневният тракт е над спалните и се намира на първия етаж. Има дори втора дневна, която е свързана с гостната стая. А това навежда на асоциацията, че предназначението на вилата е да посреща със съответната доза изисканост гости, които могат да обитават сезонно или целогодишно този провинциален дом.
Проектът залага на монолитната стоманобетонна конструкция и тухлени стени. Гаранция за здрава и надеждна визия. Която привлича погледа с тухления външен вид. Верандата, вече задължителен архитектурен елемент, съвсем естествено присъства и тук, което за вас е опция да предложите на гостите си отмора сред чистия въздух извън големия град. Ако търсите вариант за второ семейно жилище, условията напълно задоволяват изискванията, които бихте имали. И в добавка ще сте собственик на жилище, което ще се вижда и запомни. А това е важно за всеки.
Проектът е подходящ за стръмен голям терен.
Подробен 3D модел на сградата, който изяснява формата и функцията в пълнота още в етапа на проектиране
Бързина на проектирането без компромис с качеството
Анализ на различни варианти и опции и визуализирането им още в начален етап
Функционални планове
Модерен архитектурен софтуер, който минимизира възможните грешки

Визуализациите са илюстративни
Представените изображения са компютърно генерирани фотореалистични образи на сградата, които показват идеята на архитекта. Те визуализират една от многото възможности за завършване на фасадата на сградата. Тяхната основна цел е да изобразят къщата в околната среда по възможно най-реалистичния начин, за да може обитателите да възприемат сградата още преди тя да бъде построена. Цветовете и текстурите на реално изпълнената сграда може да се различават от компютърните изображения.
Фасадните материали могат да бъдат променяни
Визуализациите изобразяват идеята на архитекта и неговото желание да постигане завършен и естетичен образ използвайки конкретни материали по фасадата. Въпреки това, красотата на сградата е строго субективна и затова външната визия може да бъде редактирана според желанията и предпочитанията на възложителите. Всички цветове и материали могат да бъдат променяни, заменяни или премахнати според конкретните нужди.
Всички планове и изображения са предмет на авторско право
Представените визуализации и планове са авторски продукт и плод на архитектурния труд на екипа проектанти на “Ай ЕС Пи Дигитален Дизайн” ООД. Те са изключителна интелектуална собственост на фирмата. На основание член 35 от Закона за авторското право и сродните му права използването на което и да е изображение за търговски, маркетингови и други цели, без изричното писмено съгласие на фирма “Ай ЕС Пи Дигитален Дизайн” ООД е строго забранено.
Коментари и Въпроси