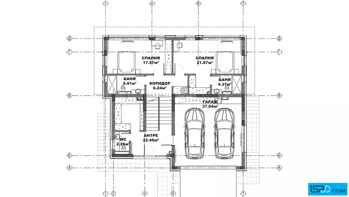
План на първи етаж

Проект на къща в гр. София
| Етажи | Нето | Бруто |
|---|---|---|
| Първи етаж | 114.82 кв.м. | 138.83 кв.м. |
| Втори етаж | 117.27 кв.м. | 143.59 кв.м. |
| Трети етаж | 98.46 кв.м. | 118.81 кв.м. |
| Общо: | 330.55 кв.м. | 401.23 кв.м. |










Този проект представлява модерна и просторна триетажна къща в град София, проектирана да осигури максимален комфорт на голямо семейство. Основната дневна зона е разположена на първото ниво и предлага огромно отворено пространство, обединяващо кухня, трапезария и хол. Големите витрини на това ниво осигуряват изобилие от светлина и директен достъп до обширна тераса, идеална за вечери на открито в двора. На същия етаж е разположена допълнителна много голяма стая, която може да служи като удобен кабинет за работа от дома или просторна гостна. Функционалността на това ниво се допълва от техническо помещение и самостоятелна тоалетна.
Главният вход на дома и гаражът за два автомобила са разположени на второто ниво, което осигурява удобен достъп директно от улицата. Тук се намират две самостоятелни спални, всяка от които разполага със собствена баня за пълно уединение на обитателите. Третият етаж разширява жилищната площ с още две спални и допълнително помещение, подходящо за хоби зона или второ място за почивка. Всяка от стаите на последното ниво има достъп до балкон или панорамна тераса, откриващи гледки към околността. Комуникацията между етажите е организирана чрез централно стълбище и светли коридори, които свързват всички зони без излишни преходи.
Домът съчетава по уникален начин зоните за споделени моменти на партерно ниво с тишината и спокойствието на горните етажи. Това е къща, създадена за активен градски живот, която предлага лично пространство и висок стандарт на обитаване за всеки член на семейството.
Подробен 3D модел на сградата, който изяснява формата и функцията в пълнота още в етапа на проектиране
Бързина на проектирането без компромис с качеството
Анализ на различни варианти и опции и визуализирането им още в начален етап
Функционални планове
Модерен архитектурен софтуер, който минимизира възможните грешки

Визуализациите са илюстративни
Представените изображения са компютърно генерирани фотореалистични образи на сградата, които показват идеята на архитекта. Те визуализират една от многото възможности за завършване на фасадата на сградата. Тяхната основна цел е да изобразят къщата в околната среда по възможно най-реалистичния начин, за да може обитателите да възприемат сградата още преди тя да бъде построена. Цветовете и текстурите на реално изпълнената сграда може да се различават от компютърните изображения.
Фасадните материали могат да бъдат променяни
Визуализациите изобразяват идеята на архитекта и неговото желание да постигане завършен и естетичен образ използвайки конкретни материали по фасадата. Въпреки това, красотата на сградата е строго субективна и затова външната визия може да бъде редактирана според желанията и предпочитанията на възложителите. Всички цветове и материали могат да бъдат променяни, заменяни или премахнати според конкретните нужди.
Всички планове и изображения са предмет на авторско право
Представените визуализации и планове са авторски продукт и плод на архитектурния труд на екипа проектанти на “Ай ЕС Пи Дигитален Дизайн” ООД. Те са изключителна интелектуална собственост на фирмата. На основание член 35 от Закона за авторското право и сродните му права използването на което и да е изображение за търговски, маркетингови и други цели, без изричното писмено съгласие на фирма “Ай ЕС Пи Дигитален Дизайн” ООД е строго забранено.
Коментари и Въпроси