План на подземен етаж

Проект на къща в гр. София
| Етажи | Нето | Бруто |
|---|---|---|
| Подземен етаж | 58.35 кв.м. | 70.23 кв.м. |
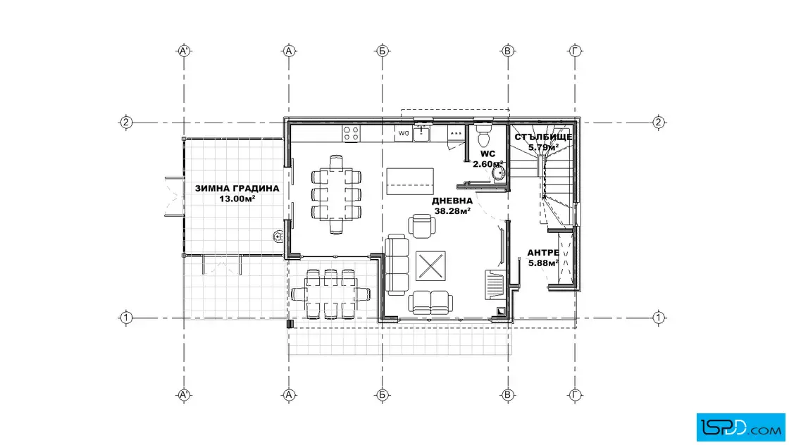
| Първи етаж | 52.23 кв.м. | 61.01 кв.м. |
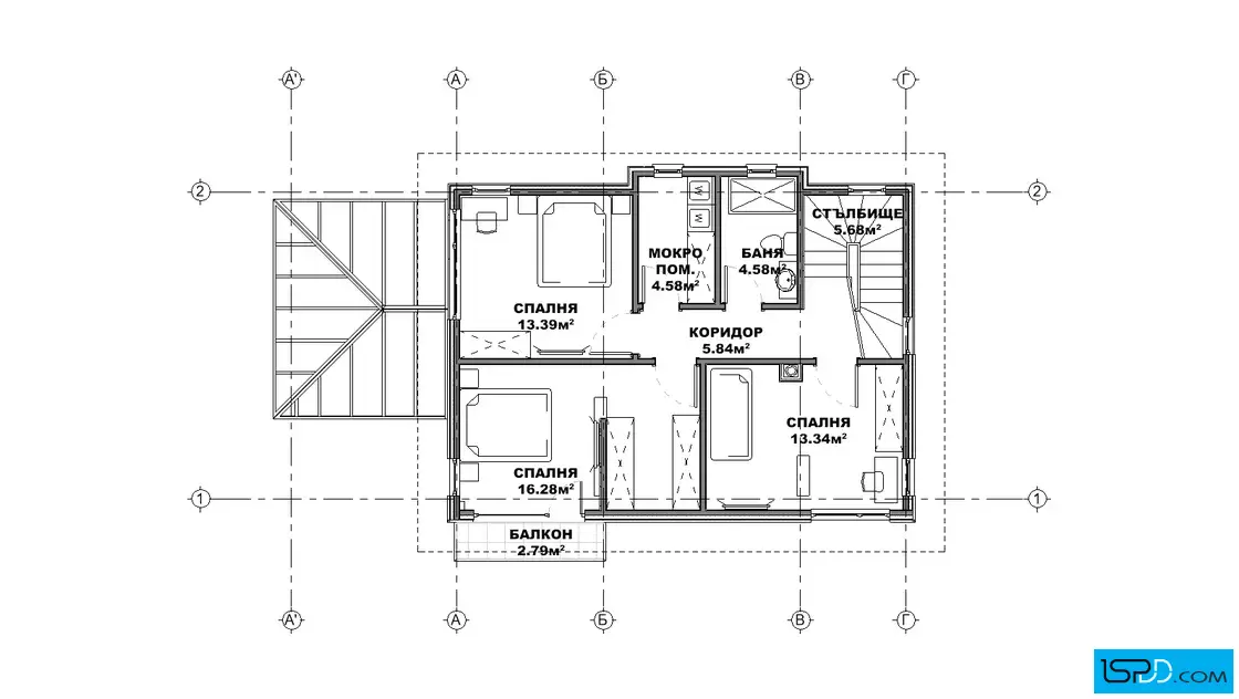
| Втори етаж | 66.68 кв.м. | 75.19 кв.м. |
| Общо: | 177.26 кв.м. | 206.43 кв.м. |











Когато говорим за проект на еднофамилно жилище в столицата си представяме старите аристократични домове в централната част. Ето обаче едно не по-малко стилно предложение, което въпреки, че е в непосредствена близост до София, може да компенсира напълно носталгията по жълтите павета. Тази еднофамилна къща е отлично решение за всеки, който търси удобство, модерна визия, възможност за съжителство с природата и предпочита компактните, но по-уютни параметри на постройката. Разбира се, последното се компенсира напълно от приземния и двата последващи етажа, трите спални, верандата и гаража за две коли. Както и от масивната стоманенобетонна конструкция. В съчетание с тухлените стени и дограмата с двоен или троен стъклопакет и изключително атрактивните декоративни HPL панели на фасадата.
Зимната градина е едно все още доста рядко явление в извънградската архитектура и определено заслужава да се спомене. Особено ако отглеждането на цветя е ваша страст. Тъй като този проект се реализира в парцели в голям наклон, решението верандата да е на нивото на етаж едно, над гаража е особено удачно. Още повече, че дневният тракт е отделен само с една врата. Спалните са разположени на втория етаж – отлична възможност да прекарате спокойни часове на почивка. Или да се насладите на чистия въздух, излизайки на терасите. Не търсете повече причини да превърнете този проект в съвсем реален свой дом.
Подробен 3D модел на сградата, който изяснява формата и функцията в пълнота още в етапа на проектиране
Бързина на проектирането без компромис с качеството
Анализ на различни варианти и опции и визуализирането им още в начален етап
Функционални планове
Модерен архитектурен софтуер, който минимизира възможните грешки

Визуализациите са илюстративни
Представените изображения са компютърно генерирани фотореалистични образи на сградата, които показват идеята на архитекта. Те визуализират една от многото възможности за завършване на фасадата на сградата. Тяхната основна цел е да изобразят къщата в околната среда по възможно най-реалистичния начин, за да може обитателите да възприемат сградата още преди тя да бъде построена. Цветовете и текстурите на реално изпълнената сграда може да се различават от компютърните изображения.
Фасадните материали могат да бъдат променяни
Визуализациите изобразяват идеята на архитекта и неговото желание да постигане завършен и естетичен образ използвайки конкретни материали по фасадата. Въпреки това, красотата на сградата е строго субективна и затова външната визия може да бъде редактирана според желанията и предпочитанията на възложителите. Всички цветове и материали могат да бъдат променяни, заменяни или премахнати според конкретните нужди.
Всички планове и изображения са предмет на авторско право
Представените визуализации и планове са авторски продукт и плод на архитектурния труд на екипа проектанти на “Ай ЕС Пи Дигитален Дизайн” ООД. Те са изключителна интелектуална собственост на фирмата. На основание член 35 от Закона за авторското право и сродните му права използването на което и да е изображение за търговски, маркетингови и други цели, без изричното писмено съгласие на фирма “Ай ЕС Пи Дигитален Дизайн” ООД е строго забранено.
Коментари и Въпроси