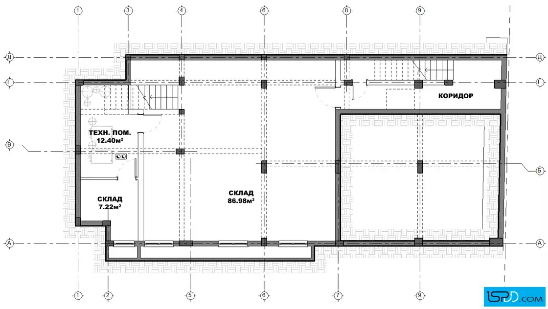
План на подземен етаж

Жилищна сграда с магазин в гр. Мартен
| Етажи | Нето | Бруто |
|---|---|---|
| Подземен етаж | 124.77 кв.м. | 144.78 кв.м. |
| Първи етаж | 129.73 кв.м. | 155.91 кв.м. |
| Покрит вход/веранда | 48.72 кв.м. | |
| Втори етаж | 169.75 кв.м. | 216.15 кв.м. |
| Трети етаж | 152.63 кв.м. | 185.5 кв.м. |
| Четвърти етаж | 51.58 кв.м. | 65.85 кв.м. |
| Общо: | 628.46 кв.м. | 816.91 кв.м. |









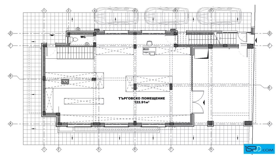
Това е проект на изтънчена жилищна сграда с търговска част в приземния етаж. Варовикови елементи по фасадата създават елегантност на визията и имат класическо излъчване. Използвана е бежова мазилка и каменна облицовка от мушелкалк. Жилищната сграда е решена на един подземен, три надземни и един терасовиден етажа. Стълбищната клетка към жилищата е в североизточната част на къщата. Магазинът за негорими строителни материали е отделен от останалата част на сградата и няма директна връзка между него и жилищата.
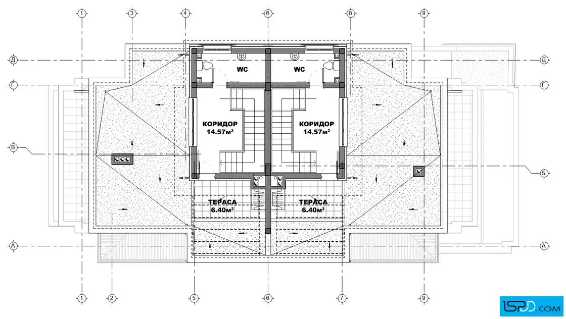
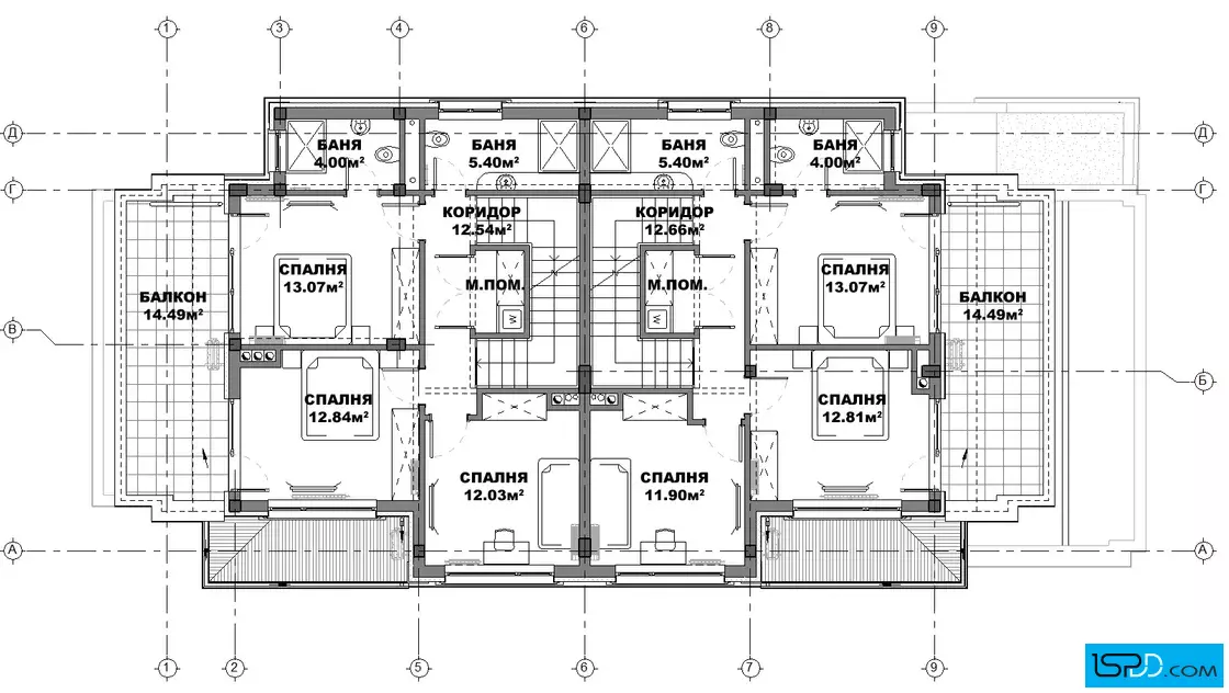
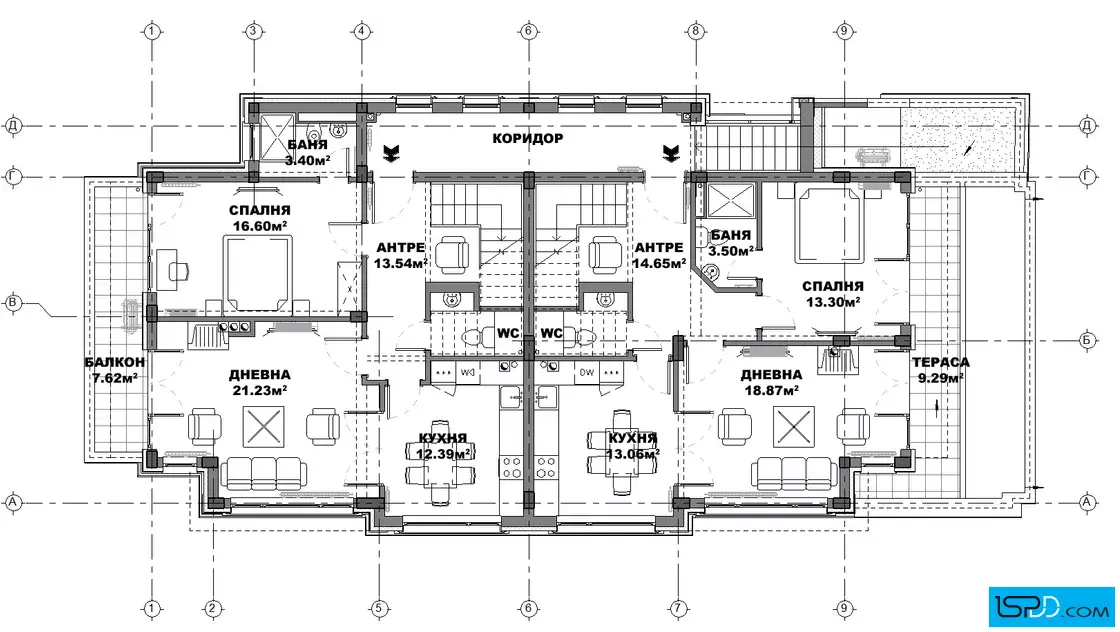
Подземното ниво съдържа склад за магазина, техническо помещение и два склада. Първо ниво съдържа входно антре със стълбищна клетка към жилищата и еднопространствен магазин за негорими строителни материали. Към магазина е проектиран санитарен възел. Второ стълбище е ситуирано в северозападната част на магазина за директна връзка към склада в сутерена. Пред магазина е проектирана покрита бетонова площадка. На второ ниво са разработени две жилища, всяко от които е решено на две нива и терасовиден етаж. На това ниво за всяко от жилищата са проектирани входно антре, дневна, кухня и трапезария, спалня с баня и отделна тоалетна за етажа. От дневните и спалните се излиза на полу-покрити тераси. В дневните са проектирани кътове за камини. Всички помещения имат големи прозорци или витрини за използване на естествената дневна светлина. Трето ниво съдържа вторите нива на двете жилища, а именно по три спални, едната от които с индивидуална баня, баня за етажа и мокро помещение. От две от спалните се излиза на полу-покрити тераси (по една за всяко жилище). Терасовидния етаж съдържа по един санитарен възел и тераса за всяко от жилищата.
Конструкцията е монолитна стоманобетонна. Ограждащите стени са тухлени с външна топлоизолация. Дограмата е PVC със стъклопакет от нискоемисионно стъкло. Покривът е плосък.
Подробен 3D модел на сградата, който изяснява формата и функцията в пълнота още в етапа на проектиране
Бързина на проектирането без компромис с качеството
Анализ на различни варианти и опции и визуализирането им още в начален етап
Функционални планове
Модерен архитектурен софтуер, който минимизира възможните грешки

Визуализациите са илюстративни
Представените изображения са компютърно генерирани фотореалистични образи на сградата, които показват идеята на архитекта. Те визуализират една от многото възможности за завършване на фасадата на сградата. Тяхната основна цел е да изобразят къщата в околната среда по възможно най-реалистичния начин, за да може обитателите да възприемат сградата още преди тя да бъде построена. Цветовете и текстурите на реално изпълнената сграда може да се различават от компютърните изображения.
Фасадните материали могат да бъдат променяни
Визуализациите изобразяват идеята на архитекта и неговото желание да постигане завършен и естетичен образ използвайки конкретни материали по фасадата. Въпреки това, красотата на сградата е строго субективна и затова външната визия може да бъде редактирана според желанията и предпочитанията на възложителите. Всички цветове и материали могат да бъдат променяни, заменяни или премахнати според конкретните нужди.
Всички планове и изображения са предмет на авторско право
Представените визуализации и планове са авторски продукт и плод на архитектурния труд на екипа проектанти на “Ай ЕС Пи Дигитален Дизайн” ООД. Те са изключителна интелектуална собственост на фирмата. На основание член 35 от Закона за авторското право и сродните му права използването на което и да е изображение за търговски, маркетингови и други цели, без изричното писмено съгласие на фирма “Ай ЕС Пи Дигитален Дизайн” ООД е строго забранено.
Коментари и Въпроси