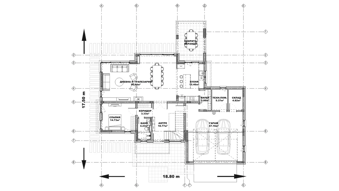
План на първи етаж

Проект на къща в гр. Костинброд
| Етажи | Нето | Бруто |
|---|---|---|
| Първи етаж | 167.76 кв.м. | 202.1 кв.м. |
| Покрит вход/веранда | 15.31 кв.м. | |
| Втори етаж | 133.01 кв.м. | 162.88 кв.м. |
| Общо: | 300.77 кв.м. | 380.29 кв.м. |












Този проект представя съвременна двуетажна къща в гр. Костинброд, отличаваща се с елегантна геометрия и модерна визия. Компактната, но функционална форма съчетава монолитна стоманобетонна конструкция с фасадни материали като HPL панели, гранитогрес и метални елементи – комбинация, която придава на сградата изискан и устойчив характер. Плоският покрив допълва минималистичния архитектурен език и създава усещане за лекота.
Първият етаж е проектиран с просторна дневна зона, където кухнята, трапезарията и холът се обединяват в едно хармонично пространство с директен излаз към верандата и двора. Тази връзка между интериора и екстериора осигурява естествена светлина и визуална връзка с природата. На втория етаж са разположени четири уютни спални и тераса, осигуряваща лично пространство и гледка към околността.
Къщата разполага с три бани и двоен гараж, което я прави удобна за съвременно семейство. Външната топлоизолация от каменна вата и висококачествената дограма с троен стъклопакет гарантират енергийна ефективност и комфорт през всички сезони.
Този проект е пример за съчетание на естетика, функционалност и модерно мислене – дом, в който всеки ден започва с усещане за простор, светлина и хармония.
Подробен 3D модел на сградата, който изяснява формата и функцията в пълнота още в етапа на проектиране
Бързина на проектирането без компромис с качеството
Анализ на различни варианти и опции и визуализирането им още в начален етап
Функционални планове
Модерен архитектурен софтуер, който минимизира възможните грешки

Визуализациите са илюстративни
Представените изображения са компютърно генерирани фотореалистични образи на сградата, които показват идеята на архитекта. Те визуализират една от многото възможности за завършване на фасадата на сградата. Тяхната основна цел е да изобразят къщата в околната среда по възможно най-реалистичния начин, за да може обитателите да възприемат сградата още преди тя да бъде построена. Цветовете и текстурите на реално изпълнената сграда може да се различават от компютърните изображения.
Фасадните материали могат да бъдат променяни
Визуализациите изобразяват идеята на архитекта и неговото желание да постигане завършен и естетичен образ използвайки конкретни материали по фасадата. Въпреки това, красотата на сградата е строго субективна и затова външната визия може да бъде редактирана според желанията и предпочитанията на възложителите. Всички цветове и материали могат да бъдат променяни, заменяни или премахнати според конкретните нужди.
Всички планове и изображения са предмет на авторско право
Представените визуализации и планове са авторски продукт и плод на архитектурния труд на екипа проектанти на “Ай ЕС Пи Дигитален Дизайн” ООД. Те са изключителна интелектуална собственост на фирмата. На основание член 35 от Закона за авторското право и сродните му права използването на което и да е изображение за търговски, маркетингови и други цели, без изричното писмено съгласие на фирма “Ай ЕС Пи Дигитален Дизайн” ООД е строго забранено.
Коментари и Въпроси