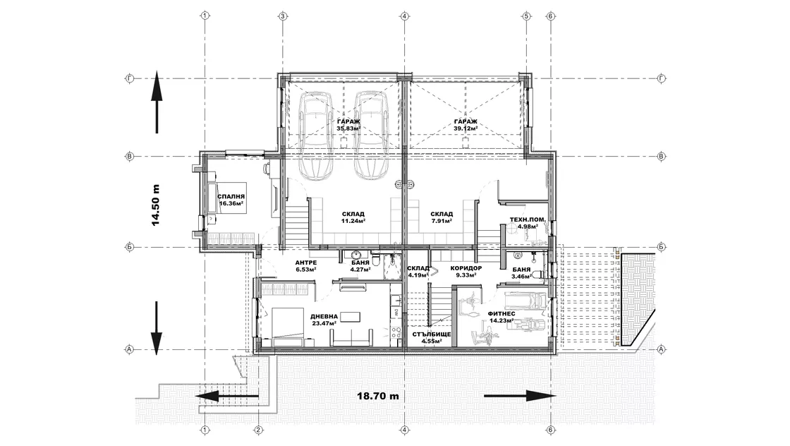
План на първи етаж

Проект на къща в с. Лозен
| Етажи | Нето | Бруто |
|---|---|---|
| Първи етаж | 188.29 кв.м. | 227.04 кв.м. |
| Втори етаж | 142.63 кв.м. | 175.08 кв.м. |
| Общо: | 330.92 кв.м. | 402.12 кв.м. |












Тази къща в с. Лозен е разположена на стръмен терен, където улицата е в ниската част, а дворът – в горната. Денивелацията естествено оформя едноетажна фасада към двора и двуетажна към улицата, придавайки на дома интересна пространствена динамика. Основните жилищни помещения са развити на второто ниво, откъдето се разкрива красива панорама към север и околните хълмове. Архитектурната форма е балансирана – съчетава модерна линия с топло и уютно излъчване.
Фасадата е решена в естествени материали – травертин, дървена облицовка и бяла мазилка, които придават на къщата светъл и земен характер. Многоскатният покрив с керамични керемиди допълва усещането за традиционен, но съвременен дом. Просторната дневна зона и големите прозорци осигуряват плавна връзка между вътрешното пространство и природата отвън.
Със своите четири спални и функционално разпределение на два етажа, домът предлага удобство за семейство, което търси спокойствие и уединение, без да се отказва от гледките и светлината. Гаражът за четири коли и подредените външни зони допълват усещането за завършеност и комфорт.
Това е дом, който се вписва хармонично в терена и природата, съчетавайки традиция, уют и модерна естетика.
Подробен 3D модел на сградата, който изяснява формата и функцията в пълнота още в етапа на проектиране
Бързина на проектирането без компромис с качеството
Анализ на различни варианти и опции и визуализирането им още в начален етап
Функционални планове
Модерен архитектурен софтуер, който минимизира възможните грешки

Визуализациите са илюстративни
Представените изображения са компютърно генерирани фотореалистични образи на сградата, които показват идеята на архитекта. Те визуализират една от многото възможности за завършване на фасадата на сградата. Тяхната основна цел е да изобразят къщата в околната среда по възможно най-реалистичния начин, за да може обитателите да възприемат сградата още преди тя да бъде построена. Цветовете и текстурите на реално изпълнената сграда може да се различават от компютърните изображения.
Фасадните материали могат да бъдат променяни
Визуализациите изобразяват идеята на архитекта и неговото желание да постигане завършен и естетичен образ използвайки конкретни материали по фасадата. Въпреки това, красотата на сградата е строго субективна и затова външната визия може да бъде редактирана според желанията и предпочитанията на възложителите. Всички цветове и материали могат да бъдат променяни, заменяни или премахнати според конкретните нужди.
Всички планове и изображения са предмет на авторско право
Представените визуализации и планове са авторски продукт и плод на архитектурния труд на екипа проектанти на “Ай ЕС Пи Дигитален Дизайн” ООД. Те са изключителна интелектуална собственост на фирмата. На основание член 35 от Закона за авторското право и сродните му права използването на което и да е изображение за търговски, маркетингови и други цели, без изричното писмено съгласие на фирма “Ай ЕС Пи Дигитален Дизайн” ООД е строго забранено.
Коментари и Въпроси