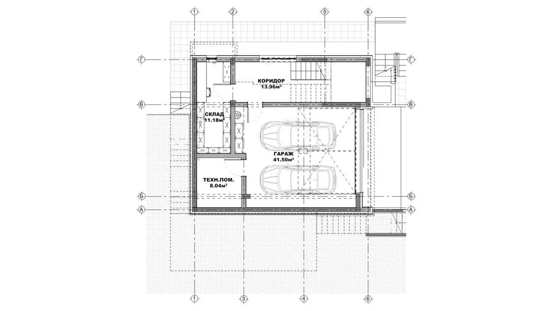
План на подземен етаж

Проект на къща в гр. Перник
| Етажи | Нето | Бруто |
|---|---|---|
| Първи етаж | 79.77 кв.м. | 99.81 кв.м. |
| Втори етаж | 76.09 кв.м. | 93.57 кв.м. |
| Трети етаж | 101.46 кв.м. | 127.87 кв.м. |
| Общо: | 257.32 кв.м. | 321.25 кв.м. |
















Тази модерна къща в гр. Перник впечатлява с кубични обеми и динамична композиция, която естествено следва стръмния терен. От страната на улицата сградата се разкрива като триетажна, докато към двора плавно преминава в двуетажен обем, което подчертава хармонията между архитектура и терен.
Основният акцент е върху просторното остъкляване към двора – големи витрини, които свързват дневната зона с външното пространство и пропускат обилна естествена светлина. Тук се оформя истинската лайфстайл зона – отворена, светла и свободна, създадена за съвременен начин на живот.
Във функционално отношение домът включва дневен етаж с обединени кухня, трапезария и хол, които плавно преминават към верандата и градината. Втория етаж е отделен за три спални и комфортни санитарни помещения, осигуряващи уединение и спокойствие. Подземният етаж позволява удобно паркиране за две коли и допълнителни помощни помещения.
Фасадата е завършена с комбинация от минерална мазилка, HPL панели и широкоформатен гранитогрес, които подчертават модерната линия на къщата и придават усещане за изисканост. Плоският покрив и чистите геометрични линии допълват съвременната визия.
Това е дом, в който светлината, пространството и природата се срещат в перфектен баланс – място, което вдъхновява усещане за свобода и модерен уют.
Подробен 3D модел на сградата, който изяснява формата и функцията в пълнота още в етапа на проектиране
Бързина на проектирането без компромис с качеството
Анализ на различни варианти и опции и визуализирането им още в начален етап
Функционални планове
Модерен архитектурен софтуер, който минимизира възможните грешки

Визуализациите са илюстративни
Представените изображения са компютърно генерирани фотореалистични образи на сградата, които показват идеята на архитекта. Те визуализират една от многото възможности за завършване на фасадата на сградата. Тяхната основна цел е да изобразят къщата в околната среда по възможно най-реалистичния начин, за да може обитателите да възприемат сградата още преди тя да бъде построена. Цветовете и текстурите на реално изпълнената сграда може да се различават от компютърните изображения.
Фасадните материали могат да бъдат променяни
Визуализациите изобразяват идеята на архитекта и неговото желание да постигане завършен и естетичен образ използвайки конкретни материали по фасадата. Въпреки това, красотата на сградата е строго субективна и затова външната визия може да бъде редактирана според желанията и предпочитанията на възложителите. Всички цветове и материали могат да бъдат променяни, заменяни или премахнати според конкретните нужди.
Всички планове и изображения са предмет на авторско право
Представените визуализации и планове са авторски продукт и плод на архитектурния труд на екипа проектанти на “Ай ЕС Пи Дигитален Дизайн” ООД. Те са изключителна интелектуална собственост на фирмата. На основание член 35 от Закона за авторското право и сродните му права използването на което и да е изображение за търговски, маркетингови и други цели, без изричното писмено съгласие на фирма “Ай ЕС Пи Дигитален Дизайн” ООД е строго забранено.
Коментари и Въпроси