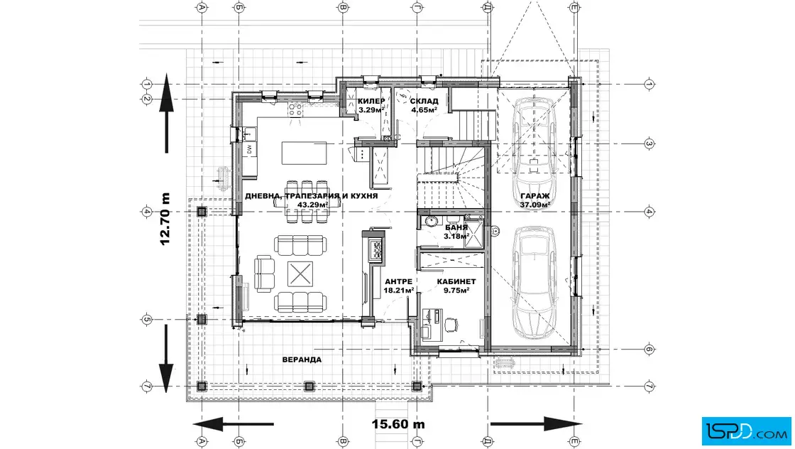
План на първи етаж

Проект на къща в с. Малка Верея
| Етажи | Нето | Бруто |
|---|---|---|
| Първи етаж | 119.45 кв.м. | 145.95 кв.м. |
| Покрит вход/веранда | 29.73 кв.м. | |
| Втори етаж | 89.44 кв.м. | 113.85 кв.м. |
| Общо: | 208.89 кв.м. | 289.53 кв.м. |










Този проект представлява съвременна двуетажна еднофамилна къща с ясна и балансирана архитектурна концепция, съчетаваща простор, функционалност и комфорт за целогодишно обитаване. Първият етаж е организиран около светла и отворена дневна зона с обединени кухня, трапезария и хол, която естествено се разгръща към покритата веранда и двора – място за семейни събирания и живот на открито. Към дневното пространство са предвидени килер и склад, които поддържат реда и удобството в ежедневието. На това ниво се намират още входно антре, самостоятелен кабинет – подходящ за работа от вкъщи, баня и топла връзка към гараж за две коли, осигуряваща комфорт при всякакви условия.
Вторият етаж е изцяло посветен на личната зона на семейството и включва три спални, разпределени така, че да гарантират спокойствие и уединение. Едната спалня разполага със собствен дрешник и директен достъп до самостоятелна баня, което я оформя като пълноценна родителска зона. Останалите две спални са обслужвани от допълнителна баня и имат излаз към тераса, която внася допълнителна светлина и усещане за простор.
Архитектурната визия е завършена с четирискатен покрив и фасади от минерална мазилка с каменен цокъл и декоративни елементи, които придават устойчив и елегантен характер на сградата. Проектът е подходящ както за млади семейства, така и за инвеститори, търсещи функционален дом с ясно разделени зони и високо ниво на комфорт. Това е къща, в която ежедневието протича спокойно, светло и подредено – дом, създаден за пълноценен семеен живот и усещане за сигурност и уют.
Подробен 3D модел на сградата, който изяснява формата и функцията в пълнота още в етапа на проектиране
Бързина на проектирането без компромис с качеството
Анализ на различни варианти и опции и визуализирането им още в начален етап
Функционални планове
Модерен архитектурен софтуер, който минимизира възможните грешки

Визуализациите са илюстративни
Представените изображения са компютърно генерирани фотореалистични образи на сградата, които показват идеята на архитекта. Те визуализират една от многото възможности за завършване на фасадата на сградата. Тяхната основна цел е да изобразят къщата в околната среда по възможно най-реалистичния начин, за да може обитателите да възприемат сградата още преди тя да бъде построена. Цветовете и текстурите на реално изпълнената сграда може да се различават от компютърните изображения.
Фасадните материали могат да бъдат променяни
Визуализациите изобразяват идеята на архитекта и неговото желание да постигане завършен и естетичен образ използвайки конкретни материали по фасадата. Въпреки това, красотата на сградата е строго субективна и затова външната визия може да бъде редактирана според желанията и предпочитанията на възложителите. Всички цветове и материали могат да бъдат променяни, заменяни или премахнати според конкретните нужди.
Всички планове и изображения са предмет на авторско право
Представените визуализации и планове са авторски продукт и плод на архитектурния труд на екипа проектанти на “Ай ЕС Пи Дигитален Дизайн” ООД. Те са изключителна интелектуална собственост на фирмата. На основание член 35 от Закона за авторското право и сродните му права използването на което и да е изображение за търговски, маркетингови и други цели, без изричното писмено съгласие на фирма “Ай ЕС Пи Дигитален Дизайн” ООД е строго забранено.
Коментари и Въпроси