План на подземен етаж

Проект на къща в с. Пчелище
| Етажи | Нето | Бруто |
|---|---|---|
| Подземен етаж | 112.49 кв.м. | 137.62 кв.м. |
| Първи етаж | 106.25 кв.м. | 129.5 кв.м. |
| Покрит вход/веранда | 15.7 кв.м. | |
| Втори етаж | 129.47 кв.м. | 163.19 кв.м. |
| Общо: | 348.21 кв.м. | 446.01 кв.м. |









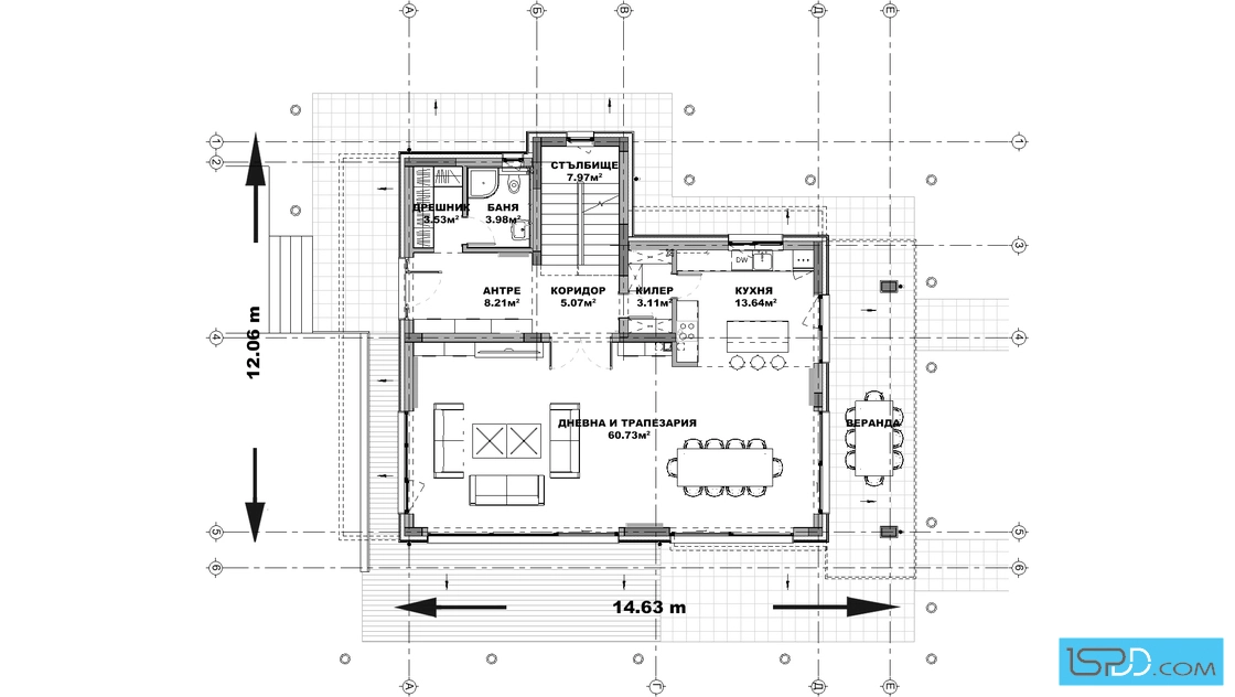
Домът е замислен като просторна еднофамилна къща с ясно разделение между активния дневен живот и тихата зона за сън, допълнена от практично подземно ниво. На първия етаж центърът на ежедневието е голямата обща дневна с трапезария, която естествено се свързва с кухнята. Големите излази към покритата веранда правят храненето и почивката навън лесна част от деня – сутрешно кафе, семейни вечери и срещи с приятели. Входното антре е организирано с удобни обслужващи помещения, включително баня/WC, дрешник и килер към кухнята, така че домът да остава подреден без усилие.
На подземното ниво е разположен гараж за две коли, както и склад и техническо помещение, които поемат „тежката“ функция на дома и освобождават жилищните етажи. На второто ниво са организирани четири спални, разпределени около коридор и стълбище, така че всяка да има спокойствие и собствена зона. Към спалните са предвидени няколко дрешника, които дават място за сезонни дрехи и лични вещи без шкафове по стаите. На същия етаж има две бани, разположени така, че да обслужват удобно всички стаи, а отделно мокро помещение добавя практичност към ежедневния ритъм. Терасата на това ниво е естествено продължение за въздух и кратка пауза навън, без да слизате в двора.
Конструкцията е монолитна стоманобетонна с тухлена зидария, с покрив от керамични керемиди, външна топлоизолация и фасадно решение с минерална мазилка, каменна и дървена облицовка и декоративни елементи. Това е къща, в която животът е подреден ясно: активните моменти остават долу и на верандата, а тишината и личното пространство – горе. Идеята е проста и работеща – дом, който ви дава свобода да живеете удобно всеки ден, с повече време за семейството и по-малко грижи за организацията.
Подробен 3D модел на сградата, който изяснява формата и функцията в пълнота още в етапа на проектиране
Бързина на проектирането без компромис с качеството
Анализ на различни варианти и опции и визуализирането им още в начален етап
Функционални планове
Модерен архитектурен софтуер, който минимизира възможните грешки

Визуализациите са илюстративни
Представените изображения са компютърно генерирани фотореалистични образи на сградата, които показват идеята на архитекта. Те визуализират една от многото възможности за завършване на фасадата на сградата. Тяхната основна цел е да изобразят къщата в околната среда по възможно най-реалистичния начин, за да може обитателите да възприемат сградата още преди тя да бъде построена. Цветовете и текстурите на реално изпълнената сграда може да се различават от компютърните изображения.
Фасадните материали могат да бъдат променяни
Визуализациите изобразяват идеята на архитекта и неговото желание да постигане завършен и естетичен образ използвайки конкретни материали по фасадата. Въпреки това, красотата на сградата е строго субективна и затова външната визия може да бъде редактирана според желанията и предпочитанията на възложителите. Всички цветове и материали могат да бъдат променяни, заменяни или премахнати според конкретните нужди.
Всички планове и изображения са предмет на авторско право
Представените визуализации и планове са авторски продукт и плод на архитектурния труд на екипа проектанти на “Ай ЕС Пи Дигитален Дизайн” ООД. Те са изключителна интелектуална собственост на фирмата. На основание член 35 от Закона за авторското право и сродните му права използването на което и да е изображение за търговски, маркетингови и други цели, без изричното писмено съгласие на фирма “Ай ЕС Пи Дигитален Дизайн” ООД е строго забранено.
Коментари и Въпроси