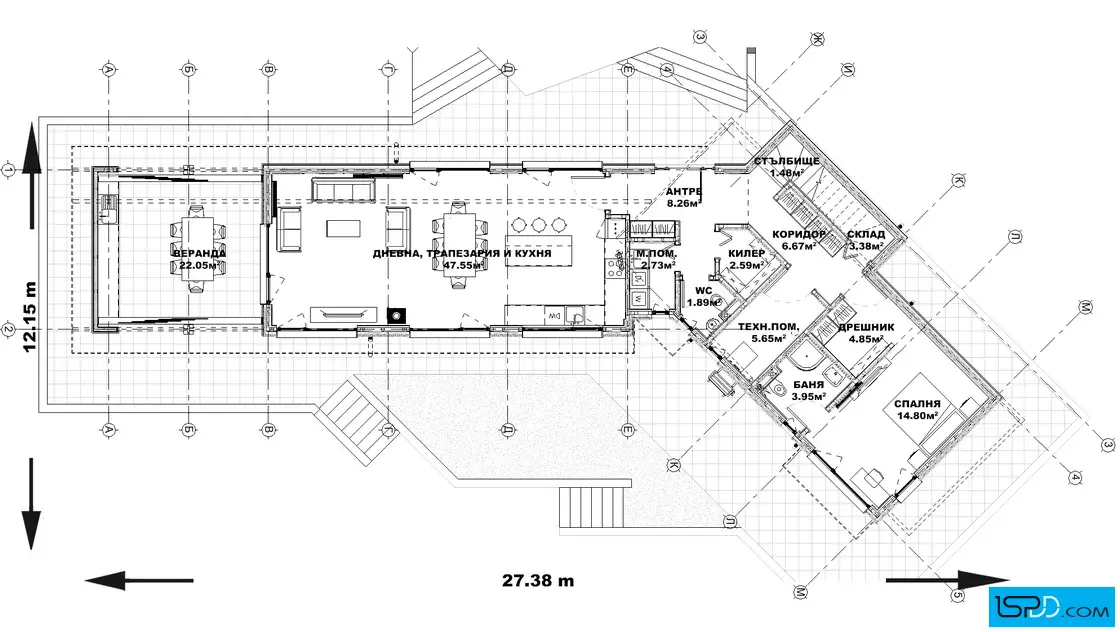
План на първи етаж

Проект на къща в с. Лозеница
| Етажи | Нето | Бруто |
|---|---|---|
| Първи етаж | 103.83 кв.м. | 124.64 кв.м. |
| Покрит вход/веранда | 26.21 кв.м. | |
| Втори етаж | 62.59 кв.м. | 77.48 кв.м. |
| Общо: | 166.42 кв.м. | 228.33 кв.м. |









Този дом е двуетажна къща с ясно разделение между общите семейни моменти и спокойните лични пространства. В центъра на първия етаж е отворената дневна зона с кухня, трапезария и хол, която естествено събира всички у дома. От дневната се излиза към покритата веранда – място за сутрешно кафе, обяд на сянка и дълги вечери навън. До входа са подредени практичните помещения за ежедневието – килер, WC, мокро, склад и техническо помещение, така че домът да остава организиран. На първия етаж има и самостоятелна спалня, разположена в по-тихата част, със собствена баня и дрешник.
Вторият етаж е посветен на почивката и включва още две спални, всяка със собствен дрешник и баня. Двата балкона към спалните добавят още въздух и лично място навън, когато искате тишина и гледка.
Конструкцията е с дървена скелетна система, а фасадата е с минерална мазилка и каменна облицовка, с двускатен метален покрив. Къщата се усеща просторна, но подредена и лесна за живеене всеки ден. Това е дом, който дава едновременно общо пространство за семейство и приятели и ясни, спокойни зони за сън и уединение. Представете си как денят започва на верандата, а вечерта завършва на тихия балкон – с усещане, че всичко си е на мястото.
Подробен 3D модел на сградата, който изяснява формата и функцията в пълнота още в етапа на проектиране
Бързина на проектирането без компромис с качеството
Анализ на различни варианти и опции и визуализирането им още в начален етап
Функционални планове
Модерен архитектурен софтуер, който минимизира възможните грешки

Визуализациите са илюстративни
Представените изображения са компютърно генерирани фотореалистични образи на сградата, които показват идеята на архитекта. Те визуализират една от многото възможности за завършване на фасадата на сградата. Тяхната основна цел е да изобразят къщата в околната среда по възможно най-реалистичния начин, за да може обитателите да възприемат сградата още преди тя да бъде построена. Цветовете и текстурите на реално изпълнената сграда може да се различават от компютърните изображения.
Фасадните материали могат да бъдат променяни
Визуализациите изобразяват идеята на архитекта и неговото желание да постигане завършен и естетичен образ използвайки конкретни материали по фасадата. Въпреки това, красотата на сградата е строго субективна и затова външната визия може да бъде редактирана според желанията и предпочитанията на възложителите. Всички цветове и материали могат да бъдат променяни, заменяни или премахнати според конкретните нужди.
Всички планове и изображения са предмет на авторско право
Представените визуализации и планове са авторски продукт и плод на архитектурния труд на екипа проектанти на “Ай ЕС Пи Дигитален Дизайн” ООД. Те са изключителна интелектуална собственост на фирмата. На основание член 35 от Закона за авторското право и сродните му права използването на което и да е изображение за търговски, маркетингови и други цели, без изричното писмено съгласие на фирма “Ай ЕС Пи Дигитален Дизайн” ООД е строго забранено.
Коментари и Въпроси