План на първи етаж

Проект на къща в гр. Сливница
| Етажи | Нето | Бруто |
|---|---|---|
| Първи етаж | 84.01 кв.м. | 112.63 кв.м. |
| Втори етаж | 111.15 кв.м. | 149.09 кв.м. |
| Общо: | 195.16 кв.м. | 261.72 кв.м. |








Проектът представя модерна двуетажна къща в град Сливница, създадена за просторен и съвременен семеен живот. Първият етаж е организиран около впечатляваща дневна зона, която обединява кухня, трапезария и хол в едно светло пространство. Големите витрини осигуряват директна връзка с двора, превръщайки природата в част от интериора. На това ниво са разположени още функционално преддверие и самостоятелно техническо помещение за обслужване на дома. Удобна тоалетна на първия етаж допълва комфорта на дневната зона при посрещане на гости.
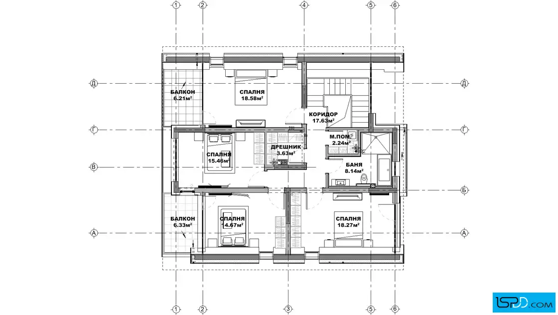
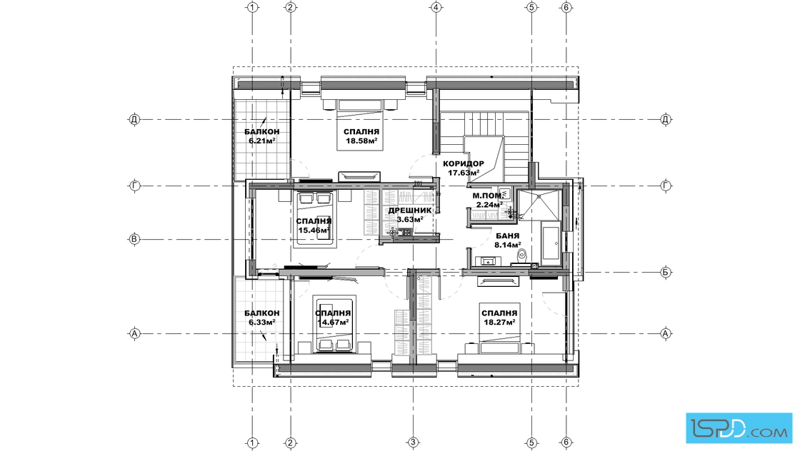
Вторият етаж е изцяло посветен на почивката, като разполага с четири самостоятелни и просторни спални. Три от стаите имат излаз към частни балкони с изглед към околността. Нощната зона е обслужена от голяма баня и отделно мокро помещение за пералня и сушилня.
Архитектурната визия се отличава с разчупени геометрични линии и големи остъклени площи, които внасят изобилие от светлина. Фасадата съчетава топли дървесни текстури с модерни облицовки, които придават на дома уникален и артистичен характер. Разпределението е логично и изчистено, като осигурява необходимия баланс между общите семейни мигове и личното уединение. Това е дом, в който смелата архитектура среща уюта, създавайки идеална среда за развитието на едно модерно семейство.
Подробен 3D модел на сградата, който изяснява формата и функцията в пълнота още в етапа на проектиране
Бързина на проектирането без компромис с качеството
Анализ на различни варианти и опции и визуализирането им още в начален етап
Функционални планове
Модерен архитектурен софтуер, който минимизира възможните грешки

Визуализациите са илюстративни
Представените изображения са компютърно генерирани фотореалистични образи на сградата, които показват идеята на архитекта. Те визуализират една от многото възможности за завършване на фасадата на сградата. Тяхната основна цел е да изобразят къщата в околната среда по възможно най-реалистичния начин, за да може обитателите да възприемат сградата още преди тя да бъде построена. Цветовете и текстурите на реално изпълнената сграда може да се различават от компютърните изображения.
Фасадните материали могат да бъдат променяни
Визуализациите изобразяват идеята на архитекта и неговото желание да постигане завършен и естетичен образ използвайки конкретни материали по фасадата. Въпреки това, красотата на сградата е строго субективна и затова външната визия може да бъде редактирана според желанията и предпочитанията на възложителите. Всички цветове и материали могат да бъдат променяни, заменяни или премахнати според конкретните нужди.
Всички планове и изображения са предмет на авторско право
Представените визуализации и планове са авторски продукт и плод на архитектурния труд на екипа проектанти на “Ай ЕС Пи Дигитален Дизайн” ООД. Те са изключителна интелектуална собственост на фирмата. На основание член 35 от Закона за авторското право и сродните му права използването на което и да е изображение за търговски, маркетингови и други цели, без изричното писмено съгласие на фирма “Ай ЕС Пи Дигитален Дизайн” ООД е строго забранено.
Коментари и Въпроси