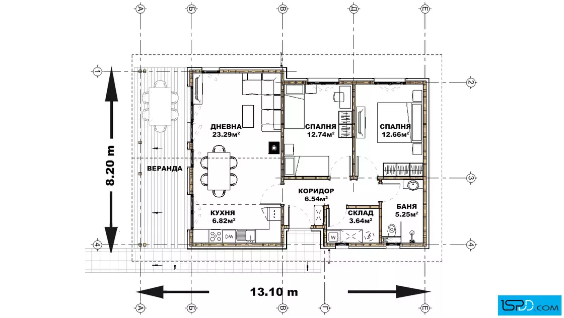
План на първи етаж

Проект на къща в гр. Божурище
| Етажи | Нето | Бруто |
|---|---|---|
| Първи етаж | 70.93 кв.м. | 83.12 кв.м. |
| Покрит вход/веранда | 18.34 кв.м. | |
| Общо: | 70.93 кв.м. | 101.46 кв.м. |







Този проект представя уютна и изключително функционална едноетажна къща, създадена за спокоен семеен живот в гр. Божурище. Дневната зона обединява кухня и хол в едно светло и отворено пространство, където семейството може да прекарва споделени моменти. Голямата покрита веранда служи като естествено разширение на интериора, предлагайки перфектното място за вечери на открито или сутрешно кафе сред природата.
На първия и единствен етаж са разположени две самостоятелни и комфортни спални, ориентирани към тишината на имота. Разпределението е логично и оптимизирано, като всяко помещение е лесно достъпно чрез централния коридор. За поддържане на реда в дома е предвидено отделно складово помещение, което поема техническите и битови нужди. Банята е с удобни размери и е позиционирана така, че да обслужва еднакво добре както обитателите, така и техните гости.
Архитектурата залага на изчистени линии и класически двускатен покрив, които придават на дома стабилност и съвременно излъчване. Къщата е проектирана на едно ниво, което я прави идеална за хора, търсещи достъпност и живот без стълби. Проектът е подходящ за малки семейства, които ценят компактните размери и високата функционалност на жилищната площ. Всяко кътче е изпълнено със светлина и уют, осигурявайки хармонична среда за почивка и ежедневие. Това е дом, в който животът протича спокойно, подредено и в пълна връзка с обкръжаващата среда.
Подробен 3D модел на сградата, който изяснява формата и функцията в пълнота още в етапа на проектиране
Бързина на проектирането без компромис с качеството
Анализ на различни варианти и опции и визуализирането им още в начален етап
Функционални планове
Модерен архитектурен софтуер, който минимизира възможните грешки

Визуализациите са илюстративни
Представените изображения са компютърно генерирани фотореалистични образи на сградата, които показват идеята на архитекта. Те визуализират една от многото възможности за завършване на фасадата на сградата. Тяхната основна цел е да изобразят къщата в околната среда по възможно най-реалистичния начин, за да може обитателите да възприемат сградата още преди тя да бъде построена. Цветовете и текстурите на реално изпълнената сграда може да се различават от компютърните изображения.
Фасадните материали могат да бъдат променяни
Визуализациите изобразяват идеята на архитекта и неговото желание да постигане завършен и естетичен образ използвайки конкретни материали по фасадата. Въпреки това, красотата на сградата е строго субективна и затова външната визия може да бъде редактирана според желанията и предпочитанията на възложителите. Всички цветове и материали могат да бъдат променяни, заменяни или премахнати според конкретните нужди.
Всички планове и изображения са предмет на авторско право
Представените визуализации и планове са авторски продукт и плод на архитектурния труд на екипа проектанти на “Ай ЕС Пи Дигитален Дизайн” ООД. Те са изключителна интелектуална собственост на фирмата. На основание член 35 от Закона за авторското право и сродните му права използването на което и да е изображение за търговски, маркетингови и други цели, без изричното писмено съгласие на фирма “Ай ЕС Пи Дигитален Дизайн” ООД е строго забранено.
Коментари и Въпроси