План на първи етаж

Проект на къща в гр. Банкя
| Етажи | Нето | Бруто |
|---|---|---|
| Първи етаж | 113.2 кв.м. | 143.45 кв.м. |
| Покрит вход/веранда | 43.72 кв.м. | |
| Втори етаж | 125.54 кв.м. | 159.3 кв.м. |
| Общо: | 238.74 кв.м. | 346.47 кв.м. |








Проектът в гр. Банкя представя модерна двуетажна къща, създадена за комфортен и мащабен семеен живот сред спокойствието на крайградската среда. Първият етаж е организиран като просторна зона за споделяне, която обединява хол, трапезария и кухня в едно светло, отворено пространство. Големите витрини осигуряват директен излаз към верандата, която се превръща в естествено продължение на интериора към двора. На това ниво е разположена и голяма родителска спалня, допълнена от собствен дрешник и самостоятелна баня за пълно уединение. Обслужващите функции тук са отлично организирани чрез голямо техническо помещение и два склада, които осигуряват ред в ежедневието.
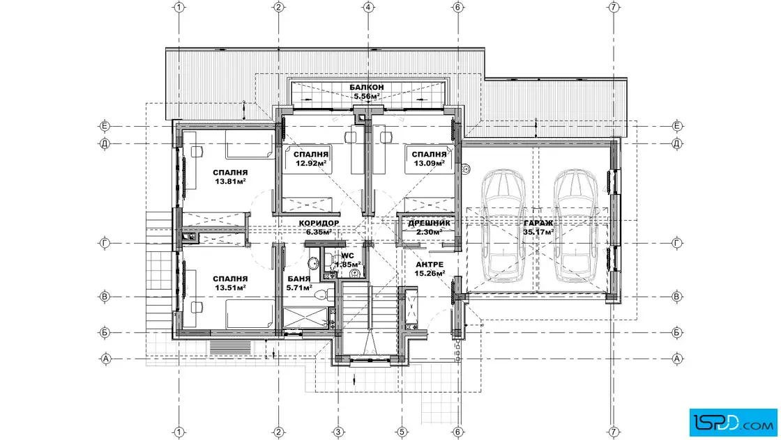
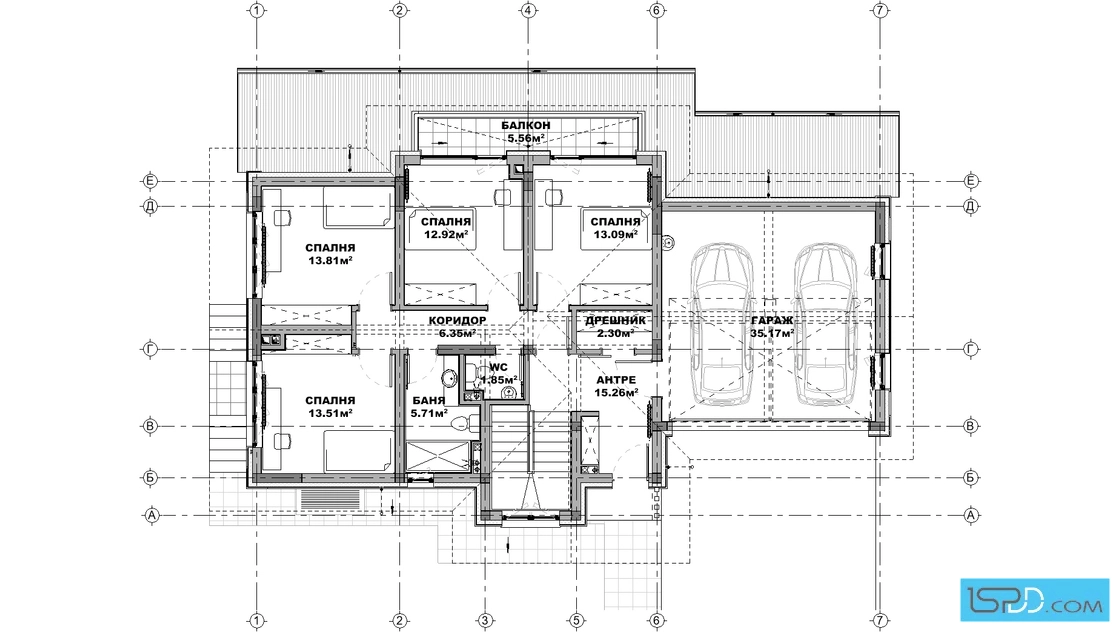
Къщата разполага с интегриран гараж за два автомобила, разположен на входното ниво за максимално удобство при прибиране. Вторият етаж е изцяло посветен на семейството и предлага четири самостоятелни и светли спални. Тези помещения се обслужват от централна баня, отделна тоалетна и допълнителен дрешник, разположени около функционален коридор. Две от спалните на горното ниво разполагат със собствен балкон, който предлага място за тиха почивка на чист въздух.
Архитектурата съчетава чисти линии и съвременни материали, които вписват дома естествено в заобикалящата го природа. С общо пет спални, този проект предлага изключително пространство и гъвкавост, подходящи за нуждите на всяко голямо семейство. Това е дом, в който функционалността и мащабът създават перфектната среда за хармоничен живот и споделени моменти.
Подробен 3D модел на сградата, който изяснява формата и функцията в пълнота още в етапа на проектиране
Бързина на проектирането без компромис с качеството
Анализ на различни варианти и опции и визуализирането им още в начален етап
Функционални планове
Модерен архитектурен софтуер, който минимизира възможните грешки

Визуализациите са илюстративни
Представените изображения са компютърно генерирани фотореалистични образи на сградата, които показват идеята на архитекта. Те визуализират една от многото възможности за завършване на фасадата на сградата. Тяхната основна цел е да изобразят къщата в околната среда по възможно най-реалистичния начин, за да може обитателите да възприемат сградата още преди тя да бъде построена. Цветовете и текстурите на реално изпълнената сграда може да се различават от компютърните изображения.
Фасадните материали могат да бъдат променяни
Визуализациите изобразяват идеята на архитекта и неговото желание да постигане завършен и естетичен образ използвайки конкретни материали по фасадата. Въпреки това, красотата на сградата е строго субективна и затова външната визия може да бъде редактирана според желанията и предпочитанията на възложителите. Всички цветове и материали могат да бъдат променяни, заменяни или премахнати според конкретните нужди.
Всички планове и изображения са предмет на авторско право
Представените визуализации и планове са авторски продукт и плод на архитектурния труд на екипа проектанти на “Ай ЕС Пи Дигитален Дизайн” ООД. Те са изключителна интелектуална собственост на фирмата. На основание член 35 от Закона за авторското право и сродните му права използването на което и да е изображение за търговски, маркетингови и други цели, без изричното писмено съгласие на фирма “Ай ЕС Пи Дигитален Дизайн” ООД е строго забранено.
Коментари и Въпроси