План на подземен етаж

Проект на къща в с. Медово
| Етажи | Нето | Бруто |
|---|---|---|
| Подземен етаж | 44.68 кв.м. | 57.87 кв.м. |
| Първи етаж | 119.9 кв.м. | 150.48 кв.м. |
| Покрит вход/веранда | 86.25 кв.м. | |
| Втори етаж | 118.43 кв.м. | 150.08 кв.м. |
| Общо: | 283.01 кв.м. | 444.68 кв.м. |









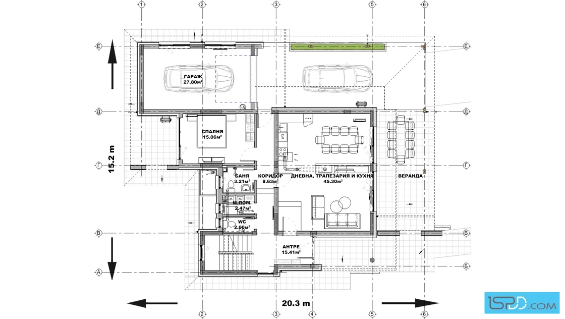
Този проект в село Медово е създаден за голямо семейство, което търси просторен и модерен дом сред спокойствието на природата. Първото ниво посреща с обширна дневна зона, която обединява кухня, трапезария и хол в светло пространство. Голямата покрита веранда е проектирана като естествено продължение на дневната, създавайки перфектното място за вечери на открито. На първия етаж е разположена и една самостоятелна спалня, която осигурява удобство за гости или за по-възрастни членове на семейството. Функционалното разпределение на това ниво включва още антре, баня с тоалетна и практично мокро помещение. За пълно удобство проектът предвижда вграден гараж с директен достъп до вътрешността на къщата.
Вторият етаж е изцяло посветен на личното пространство и разполага с четири допълнителни спални с комфортни размери. Всяка от стаите на това ниво има излаз към собствен балкон, което осигурява изобилие от светлина и красиви гледки към околността. Горното ниво е обезпечено с обща баня и отделна тоалетна, разположени около централен коридор за лесен достъп. Подземното ниво добавя практична стойност към имота с голямо складово помещение, идеално за организиране на домакинството.
С общо пет спални и добре планирани общи части, къщата предлага отличен баланс между социален живот и уединение. Това е дом, в който пространството е организирано с мисъл за нуждите на всяко поколение и за спокойния ритъм на ежедневието.
Подробен 3D модел на сградата, който изяснява формата и функцията в пълнота още в етапа на проектиране
Бързина на проектирането без компромис с качеството
Анализ на различни варианти и опции и визуализирането им още в начален етап
Функционални планове
Модерен архитектурен софтуер, който минимизира възможните грешки

Визуализациите са илюстративни
Представените изображения са компютърно генерирани фотореалистични образи на сградата, които показват идеята на архитекта. Те визуализират една от многото възможности за завършване на фасадата на сградата. Тяхната основна цел е да изобразят къщата в околната среда по възможно най-реалистичния начин, за да може обитателите да възприемат сградата още преди тя да бъде построена. Цветовете и текстурите на реално изпълнената сграда може да се различават от компютърните изображения.
Фасадните материали могат да бъдат променяни
Визуализациите изобразяват идеята на архитекта и неговото желание да постигане завършен и естетичен образ използвайки конкретни материали по фасадата. Въпреки това, красотата на сградата е строго субективна и затова външната визия може да бъде редактирана според желанията и предпочитанията на възложителите. Всички цветове и материали могат да бъдат променяни, заменяни или премахнати според конкретните нужди.
Всички планове и изображения са предмет на авторско право
Представените визуализации и планове са авторски продукт и плод на архитектурния труд на екипа проектанти на “Ай ЕС Пи Дигитален Дизайн” ООД. Те са изключителна интелектуална собственост на фирмата. На основание член 35 от Закона за авторското право и сродните му права използването на което и да е изображение за търговски, маркетингови и други цели, без изричното писмено съгласие на фирма “Ай ЕС Пи Дигитален Дизайн” ООД е строго забранено.
Коментари и Въпроси