План на първи етаж

Проект на къща в с. Голяновци
| Етажи | Нето | Бруто |
|---|---|---|
| Първи етаж | 65.22 кв.м. | 76.01 кв.м. |
| Втори етаж | 65.53 кв.м. | 78.07 кв.м. |
| Общо: | 130.75 кв.м. | 154.08 кв.м. |








Този проект представя съвременна двуетажна къща, проектирана да предложи баланс между споделени моменти и лично спокойствие в крайградска среда. Основният етаж е доминиран от просторна дневна зона, която обединява хол, трапезария и кухня в едно отворено пространство. Големите витрини осигуряват изобилие от светлина и превръщат прехода към двора в естествена част от ежедневието. На това първо ниво е разположена и една самостоятелна спалня, която предлага удобство за гости или за обитатели, търсещи достъпност без стълби. Функционалността на етажа се допълва от входно антре, практичен килер към кухнята, склад и баня.
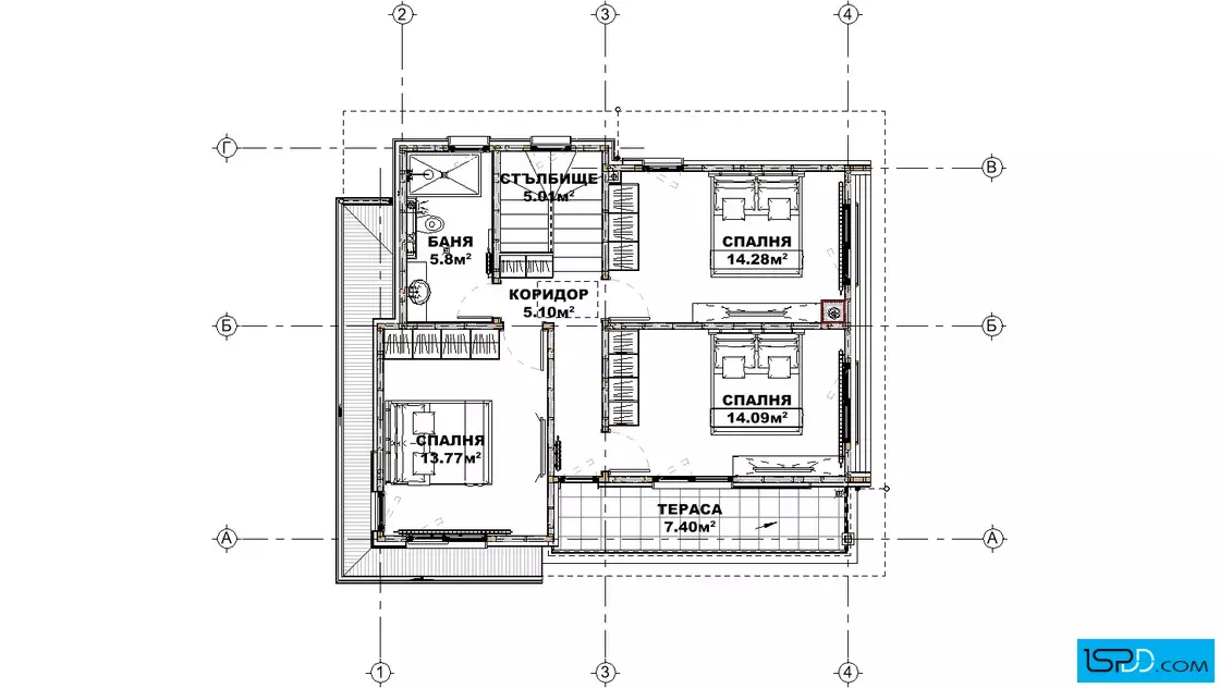
Вторият етаж е изцяло посветен на уединението и почивката на семейството. Тук са разположени три светли спални, организирани около централен коридор. Родителската спалня и една от детските стаи имат директен излаз към обща панорамна тераса, идеална за първото сутрешно кафе на чист въздух. Нивото разполага с голяма обща баня.
Компактните габарити на сградата я правят лесна за ситуиране във всеки парцел, без това да отнема от усещането за простор. Това е дом, който организира живота подреден и светъл, предлагайки сигурност и комфорт за всяко модерно семейство.
Подробен 3D модел на сградата, който изяснява формата и функцията в пълнота още в етапа на проектиране
Бързина на проектирането без компромис с качеството
Анализ на различни варианти и опции и визуализирането им още в начален етап
Функционални планове
Модерен архитектурен софтуер, който минимизира възможните грешки

Визуализациите са илюстративни
Представените изображения са компютърно генерирани фотореалистични образи на сградата, които показват идеята на архитекта. Те визуализират една от многото възможности за завършване на фасадата на сградата. Тяхната основна цел е да изобразят къщата в околната среда по възможно най-реалистичния начин, за да може обитателите да възприемат сградата още преди тя да бъде построена. Цветовете и текстурите на реално изпълнената сграда може да се различават от компютърните изображения.
Фасадните материали могат да бъдат променяни
Визуализациите изобразяват идеята на архитекта и неговото желание да постигане завършен и естетичен образ използвайки конкретни материали по фасадата. Въпреки това, красотата на сградата е строго субективна и затова външната визия може да бъде редактирана според желанията и предпочитанията на възложителите. Всички цветове и материали могат да бъдат променяни, заменяни или премахнати според конкретните нужди.
Всички планове и изображения са предмет на авторско право
Представените визуализации и планове са авторски продукт и плод на архитектурния труд на екипа проектанти на “Ай ЕС Пи Дигитален Дизайн” ООД. Те са изключителна интелектуална собственост на фирмата. На основание член 35 от Закона за авторското право и сродните му права използването на което и да е изображение за търговски, маркетингови и други цели, без изричното писмено съгласие на фирма “Ай ЕС Пи Дигитален Дизайн” ООД е строго забранено.
Коментари и Въпроси