План на първи етаж

Проект на къща в с. Побит камък
| Етажи | Нето | Бруто |
|---|---|---|
| Първи етаж | 70.29 кв.м. | 80.26 кв.м. |
| Покрит вход/веранда | 23.08 кв.м. | |
| Втори етаж | 40.97 кв.м. | 46.39 кв.м. |
| Общо: | 111.26 кв.м. | 149.73 кв.м. |








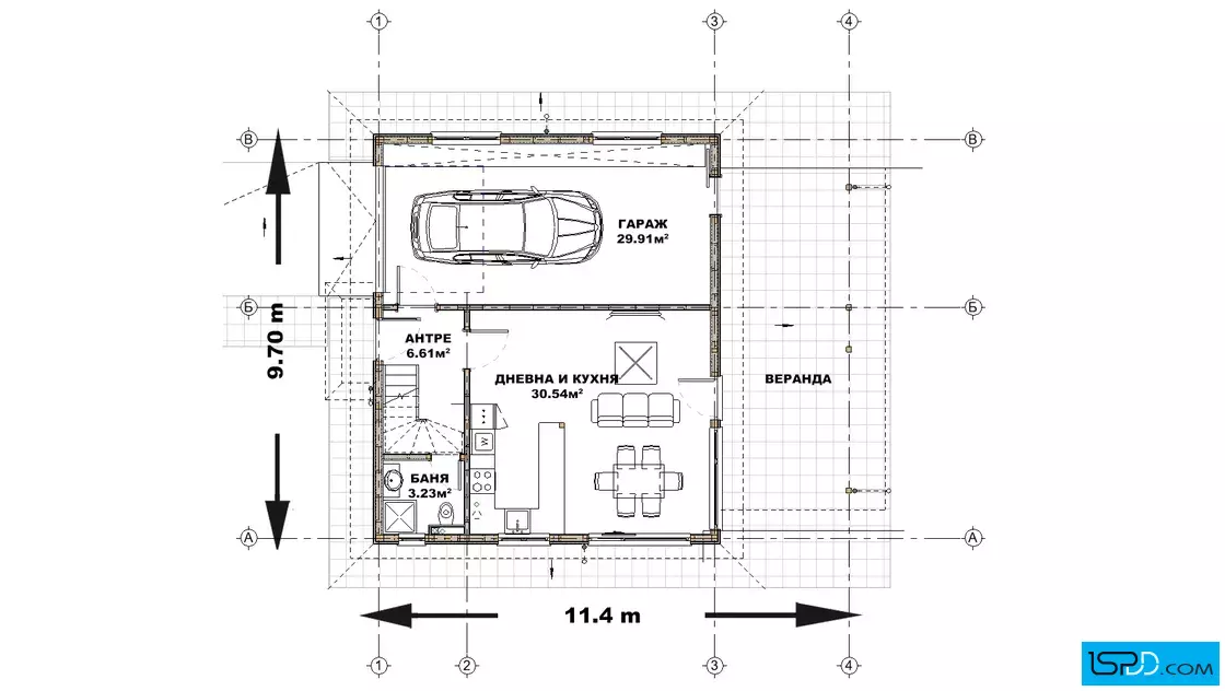
Този проект представлява компактна и модерна двуетажна къща, проектирана да предложи максимален комфорт върху добре оптимизирана площ. Първият етаж е посветен на семейния живот, като обединява дневната, трапезарията и кухнята в едно общо, изпълнено със светлина пространство. Големите витрини осигуряват директен излаз към просторна веранда, която се превръща в естествено разширение на дома за вечери на открито. Входното антре е функционално организирано и осигурява лесен достъп до банята, разположена на това ниво. Проектът включва голям вграден гараж, който осигурява сигурно място за автомобила и директна връзка с интериора.
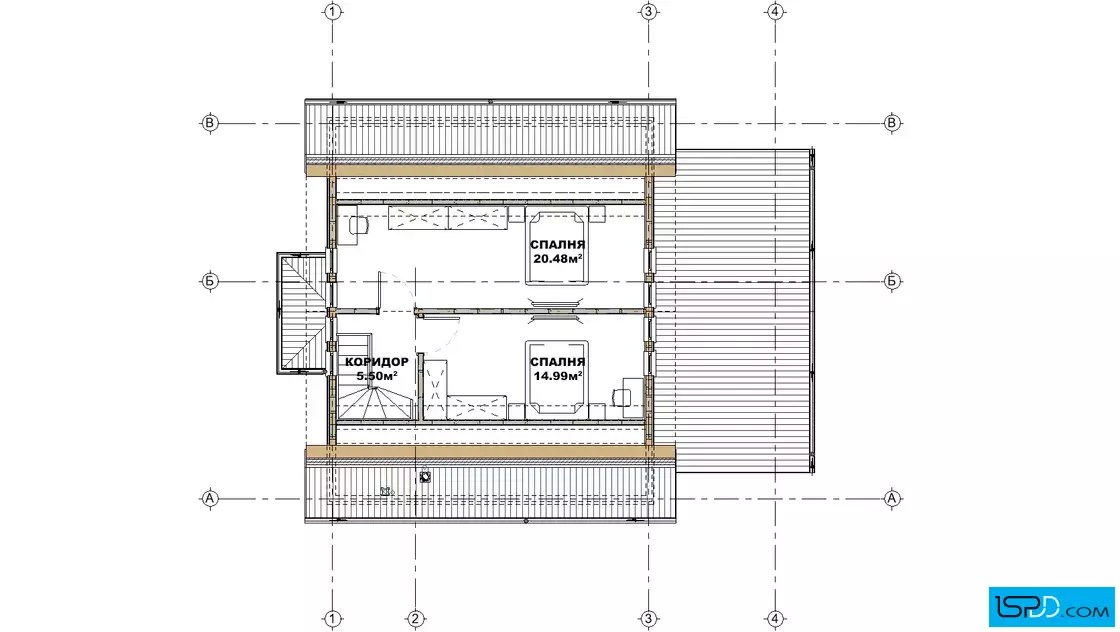
На втория етаж е разположена нощната зона, която гарантира пълно уединение и спокойствие за почивка. Тук се намират две просторни спални, организирани около централен коридор. По-голямата спалня разполага с над 20 кв.м. площ, което позволява обособяването на личен кът за работа или хоби занимания. Втората спалня е уютна и светла, идеална за детска стая или стая за гости.
Къщата впечатлява с класически двускатен покрив и чисти фасадни линии, които се вписват хармонично в околната природа. Цялостната организация на пространството е логична и изчистена, като премахва излишните преходи и натоварващи елементи. Това е дом, който съчетава практичност и уют, създавайки перфектната среда за спокойно ежедневие извън градския шум.
Подробен 3D модел на сградата, който изяснява формата и функцията в пълнота още в етапа на проектиране
Бързина на проектирането без компромис с качеството
Анализ на различни варианти и опции и визуализирането им още в начален етап
Функционални планове
Модерен архитектурен софтуер, който минимизира възможните грешки

Визуализациите са илюстративни
Представените изображения са компютърно генерирани фотореалистични образи на сградата, които показват идеята на архитекта. Те визуализират една от многото възможности за завършване на фасадата на сградата. Тяхната основна цел е да изобразят къщата в околната среда по възможно най-реалистичния начин, за да може обитателите да възприемат сградата още преди тя да бъде построена. Цветовете и текстурите на реално изпълнената сграда може да се различават от компютърните изображения.
Фасадните материали могат да бъдат променяни
Визуализациите изобразяват идеята на архитекта и неговото желание да постигане завършен и естетичен образ използвайки конкретни материали по фасадата. Въпреки това, красотата на сградата е строго субективна и затова външната визия може да бъде редактирана според желанията и предпочитанията на възложителите. Всички цветове и материали могат да бъдат променяни, заменяни или премахнати според конкретните нужди.
Всички планове и изображения са предмет на авторско право
Представените визуализации и планове са авторски продукт и плод на архитектурния труд на екипа проектанти на “Ай ЕС Пи Дигитален Дизайн” ООД. Те са изключителна интелектуална собственост на фирмата. На основание член 35 от Закона за авторското право и сродните му права използването на което и да е изображение за търговски, маркетингови и други цели, без изричното писмено съгласие на фирма “Ай ЕС Пи Дигитален Дизайн” ООД е строго забранено.
Коментари и Въпроси