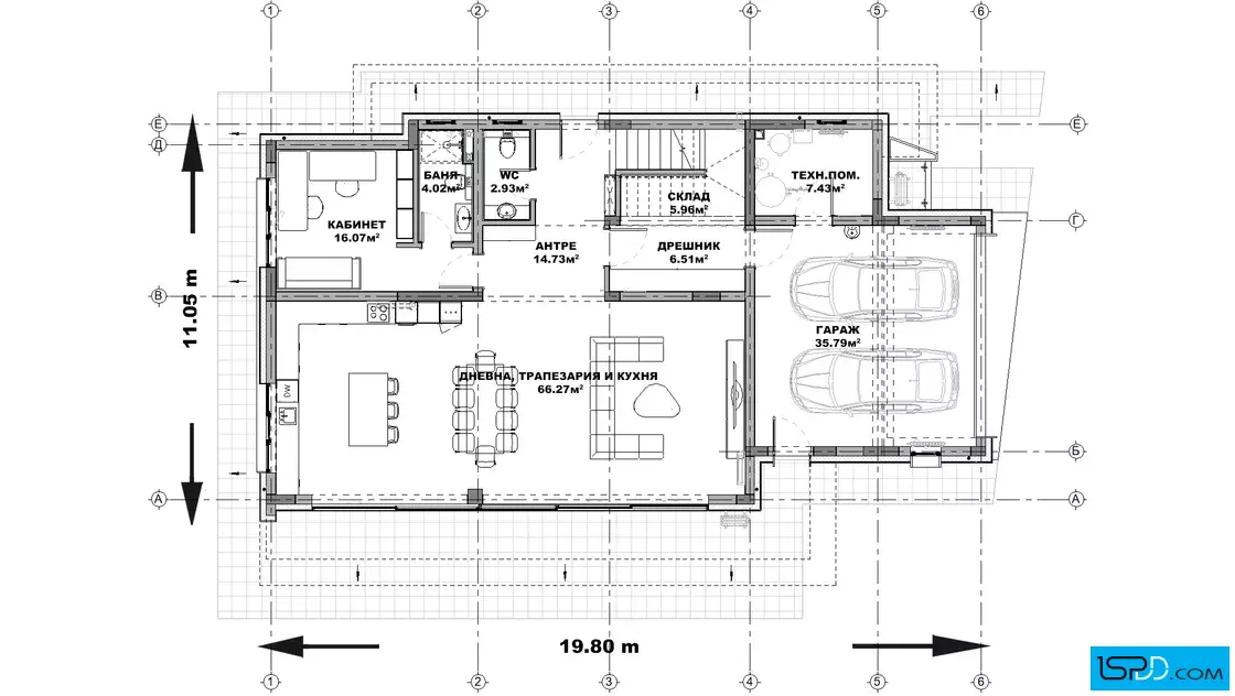
План на първи етаж

Проект на къща в кв. Долни Богров
| Етажи | Нето | Бруто |
|---|---|---|
| Първи етаж | 159.71 кв.м. | 193.81 кв.м. |
| Втори етаж | 158.81 кв.м. | 196.36 кв.м. |
| Трети етаж | 74.02 кв.м. | 91.07 кв.м. |
| Общо: | 392.54 кв.м. | 481.24 кв.м. |












Този проект представя модерна триетажна къща в Долни Богров, проектирана да предложи изключителен простор и висок стандарт на обитаване. Първият етаж се отваря с впечатляваща дневна зона, която обединява кухня, трапезария и хол в едно светло и гостоприемно пространство. Големите витрини осигуряват постоянен приток на естествена светлина и превръщат двора в естествено продължение на интериора. На това ниво е разположен самостоятелен кабинет, който предлага тишина и уединение за работа или творчески занимания у дома. Етажът е функционално допълнен от двоен гараж, техническо помещение и удобни складови площи.
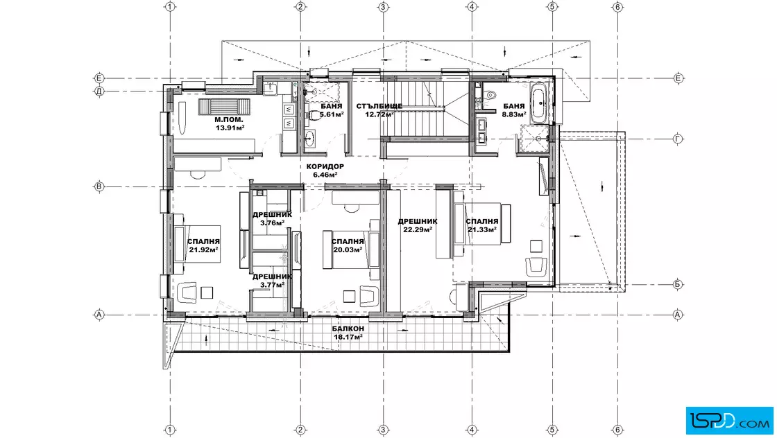
Вторият етаж е посветен на почивката и разполага с три просторни спални, организирани около централен коридор. Родителската спалня е проектирана като истинско лично убежище със собствен голям дрешник и просторна баня. Останалите две спални се обслужват от втора баня на етажа, като едната от тях разполага с допълнителни дрешници. На това ниво е предвидено и отделно мокро помещение, което прави грижата за дома лесна и подредена.
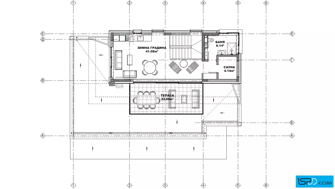
Третият етаж е истински акцент в проекта, предлагайки остъклена зимна градина за моменти на релакс през всеки сезон. Тук е разположена и зона за релакс със собствена сауна и голяма панорамна тераса с изглед към околността. Този дом съчетава лукс, функционалност и перфектен баланс между споделените моменти и личното спокойствие.
Подробен 3D модел на сградата, който изяснява формата и функцията в пълнота още в етапа на проектиране
Бързина на проектирането без компромис с качеството
Анализ на различни варианти и опции и визуализирането им още в начален етап
Функционални планове
Модерен архитектурен софтуер, който минимизира възможните грешки

Визуализациите са илюстративни
Представените изображения са компютърно генерирани фотореалистични образи на сградата, които показват идеята на архитекта. Те визуализират една от многото възможности за завършване на фасадата на сградата. Тяхната основна цел е да изобразят къщата в околната среда по възможно най-реалистичния начин, за да може обитателите да възприемат сградата още преди тя да бъде построена. Цветовете и текстурите на реално изпълнената сграда може да се различават от компютърните изображения.
Фасадните материали могат да бъдат променяни
Визуализациите изобразяват идеята на архитекта и неговото желание да постигане завършен и естетичен образ използвайки конкретни материали по фасадата. Въпреки това, красотата на сградата е строго субективна и затова външната визия може да бъде редактирана според желанията и предпочитанията на възложителите. Всички цветове и материали могат да бъдат променяни, заменяни или премахнати според конкретните нужди.
Всички планове и изображения са предмет на авторско право
Представените визуализации и планове са авторски продукт и плод на архитектурния труд на екипа проектанти на “Ай ЕС Пи Дигитален Дизайн” ООД. Те са изключителна интелектуална собственост на фирмата. На основание член 35 от Закона за авторското право и сродните му права използването на което и да е изображение за търговски, маркетингови и други цели, без изричното писмено съгласие на фирма “Ай ЕС Пи Дигитален Дизайн” ООД е строго забранено.
Коментари и Въпроси