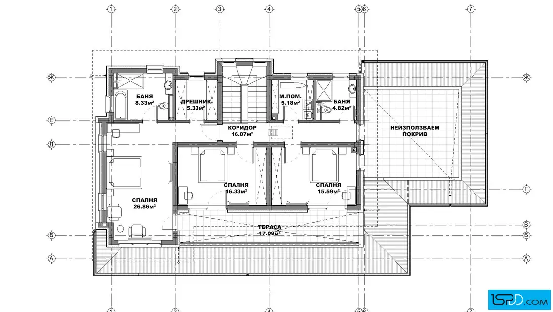
План на първи етаж

Проект на къща в с. Браниполе
| Етажи | Нето | Бруто |
|---|---|---|
| Първи етаж | 142.34 кв.м. | 176.09 кв.м. |
| Покрит вход/веранда | 24.71 кв.м. | |
| Втори етаж | 115.6 кв.м. | 143.99 кв.м. |
| Общо: | 257.94 кв.м. | 344.79 кв.м. |








Този проект представя модерна и просторна двуетажна къща, създадена да осигури максимален комфорт и спокойствие за едно голямо семейство. Първият етаж е проектиран като отворено и светло пространство, където дневната, трапезарията и кухнята се сливат в едно за споделени семейни моменти. Големите витрини осигуряват изобилие от естествена светлина и директен излаз към уютна покрита веранда, идеална за вечери на открито в двора. На първото ниво е разположена една самостоятелна спалня, която е изключително удобна за гости или за обитатели, които избягват ползването на стълби. Функционалността тук се допълва от практичен килер до кухнята, склад и техническо помещение, които поддържат реда в дома. За пълно удобство е предвиден голям гараж за два автомобила с топла връзка към антрето на къщата.
Вторият етаж е посветен изцяло на уединението и почивката, като там се намират още три просторни спални. Родителската спалня е истинско лично убежище, разполагащо със собствен дрешник и самостоятелна баня. Останалите две спални се обслужват от допълнителна голяма баня и имат достъп до широка обща тераса с красива гледка. На това ниво е разположено и отделно мокро помещение, което прави грижата за дома лесна и организирана.
С обща площ от 277 кв.м, този дом съчетава по перфектен начин модерната архитектура с практичното зониране. Това е място, създадено за пълноценен живот, където всеки член на семейството намира своето пространство за работа, почивка и игра.
Подробен 3D модел на сградата, който изяснява формата и функцията в пълнота още в етапа на проектиране
Бързина на проектирането без компромис с качеството
Анализ на различни варианти и опции и визуализирането им още в начален етап
Функционални планове
Модерен архитектурен софтуер, който минимизира възможните грешки

Визуализациите са илюстративни
Представените изображения са компютърно генерирани фотореалистични образи на сградата, които показват идеята на архитекта. Те визуализират една от многото възможности за завършване на фасадата на сградата. Тяхната основна цел е да изобразят къщата в околната среда по възможно най-реалистичния начин, за да може обитателите да възприемат сградата още преди тя да бъде построена. Цветовете и текстурите на реално изпълнената сграда може да се различават от компютърните изображения.
Фасадните материали могат да бъдат променяни
Визуализациите изобразяват идеята на архитекта и неговото желание да постигане завършен и естетичен образ използвайки конкретни материали по фасадата. Въпреки това, красотата на сградата е строго субективна и затова външната визия може да бъде редактирана според желанията и предпочитанията на възложителите. Всички цветове и материали могат да бъдат променяни, заменяни или премахнати според конкретните нужди.
Всички планове и изображения са предмет на авторско право
Представените визуализации и планове са авторски продукт и плод на архитектурния труд на екипа проектанти на “Ай ЕС Пи Дигитален Дизайн” ООД. Те са изключителна интелектуална собственост на фирмата. На основание член 35 от Закона за авторското право и сродните му права използването на което и да е изображение за търговски, маркетингови и други цели, без изричното писмено съгласие на фирма “Ай ЕС Пи Дигитален Дизайн” ООД е строго забранено.
Коментари и Въпроси