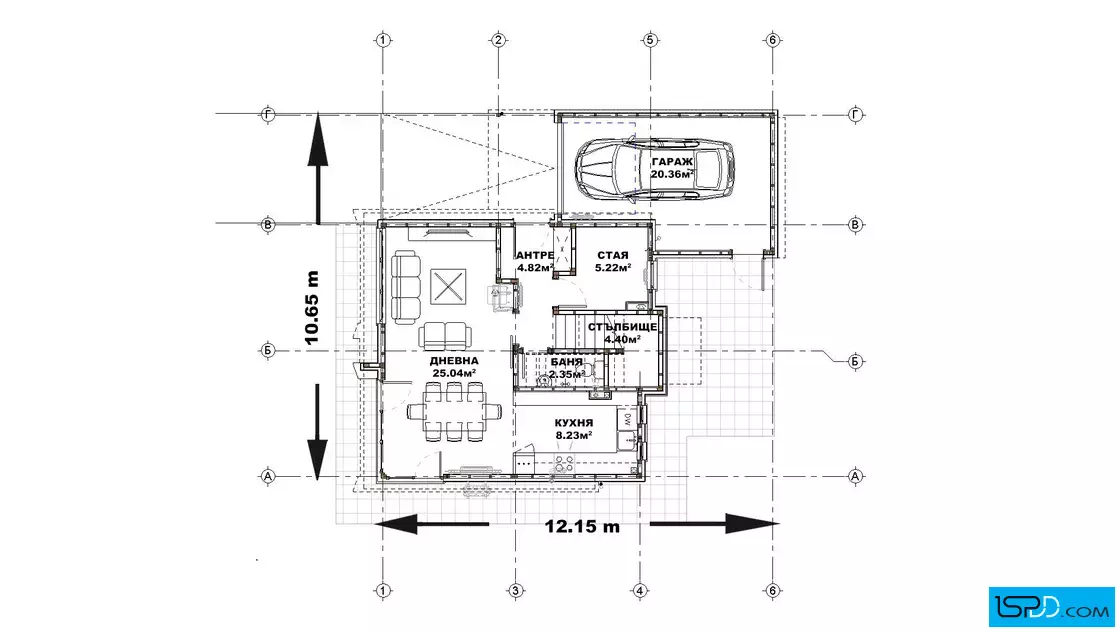
План на първи етаж

Проект на къща в с. Голяновци
| Етажи | Нето | Бруто |
|---|---|---|
| Първи етаж | 70.42 кв.м. | 83.79 кв.м. |
| Втори етаж | 55.36 кв.м. | 69.92 кв.м. |
| Общо: | 125.78 кв.м. | 153.71 кв.м. |








Този проект представя модерна двуетажна къща, която съчетава изчистена архитектура с високо ниво на комфорт за съвременното семейство. Първият етаж е организиран около светла и отворена дневна зона, обединяваща хола, трапезарията и кухнята в едно общо пространство. Големите витрини осигуряват изобилие от слънчева светлина и създават усещане за директна връзка с двора. На това ниво е разположен и самостоятелен кабинет, който е идеалното място за работа от дома или зона за уединение и концентрация. Първият етаж се допълва от функционално входно антре и удобно позиционирана баня с тоалетна. Вграденият гараж осигурява защитено място за един автомобил.
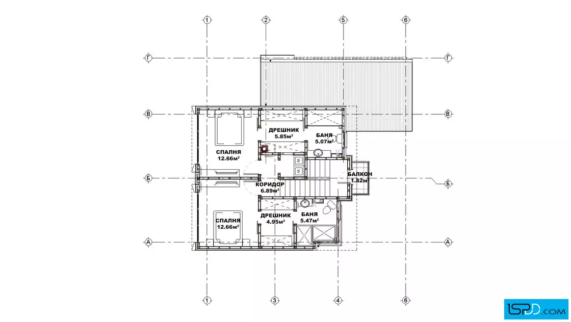
Вторият етаж е посветен изцяло на почивката и разполага с две просторни спални, разположени около централен коридор. Всяка от спалните на горното ниво е проектирана като лична зона със собствен дрешник и индивидуална баня за максимално удобство. Коридорът води към компактен балкон, който предлага място за глътка свеж въздух в началото на деня.
Фасадата е решена в съвременна комбинация от светла мазилка, тъмни акценти и топли дървени детайли. С разгъната застроена площ от 154 кв.м., домът предлага перфектен баланс между функционалност и усещане за простор. Това е дом, създаден да носи спокойствие и вдъхновение, където всеки детайл е обмислен с мисъл за качеството на вашето ежедневие.
Подробен 3D модел на сградата, който изяснява формата и функцията в пълнота още в етапа на проектиране
Бързина на проектирането без компромис с качеството
Анализ на различни варианти и опции и визуализирането им още в начален етап
Функционални планове
Модерен архитектурен софтуер, който минимизира възможните грешки

Визуализациите са илюстративни
Представените изображения са компютърно генерирани фотореалистични образи на сградата, които показват идеята на архитекта. Те визуализират една от многото възможности за завършване на фасадата на сградата. Тяхната основна цел е да изобразят къщата в околната среда по възможно най-реалистичния начин, за да може обитателите да възприемат сградата още преди тя да бъде построена. Цветовете и текстурите на реално изпълнената сграда може да се различават от компютърните изображения.
Фасадните материали могат да бъдат променяни
Визуализациите изобразяват идеята на архитекта и неговото желание да постигане завършен и естетичен образ използвайки конкретни материали по фасадата. Въпреки това, красотата на сградата е строго субективна и затова външната визия може да бъде редактирана според желанията и предпочитанията на възложителите. Всички цветове и материали могат да бъдат променяни, заменяни или премахнати според конкретните нужди.
Всички планове и изображения са предмет на авторско право
Представените визуализации и планове са авторски продукт и плод на архитектурния труд на екипа проектанти на “Ай ЕС Пи Дигитален Дизайн” ООД. Те са изключителна интелектуална собственост на фирмата. На основание член 35 от Закона за авторското право и сродните му права използването на което и да е изображение за търговски, маркетингови и други цели, без изричното писмено съгласие на фирма “Ай ЕС Пи Дигитален Дизайн” ООД е строго забранено.
Коментари и Въпроси