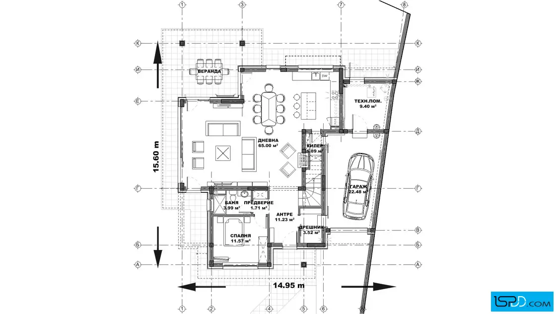
План на първи етаж

Проект на къща в гр. Костинброд
| Етажи | Нето | Бруто |
|---|---|---|
| Първи етаж | 131 кв.м. | 159.01 кв.м. |
| Покрит вход/веранда | 19.34 кв.м. | |
| Втори етаж | 106.51 кв.м. | 132.21 кв.м. |
| Общо: | 237.51 кв.м. | 310.56 кв.м. |








Можем ли да кажем, че има „нов прочит“ на класическата визия на селската къща. Определено, ако се спрем на това предложение. Тази еднофамилна къща съчетава стила на извънградската вила и познатата ни двуетажна къща. Тя е раздвижена, функционална и напълно ще задоволи всички ваши претенции. Четирискатен покрив и тухлена зидария, стоманобетонна конструкция и PVC или алуминиева дограма с двоен / троен стъклопакет – всичко това говори за солидно присъствие, без компромиси с качеството. Разбира се няма да пропуснем каменната облицовка и декоративните HPL панели, защото тези акценти превръщат този проект в неподражаемо архитектурно предложение.
Веранда? Естествено, това е мястото, което може да се храни или почива семейството. Тя е покрита, за да можете да се наслаждавате на красотата на планинските гледки. Автомобилът е прибран в удобен гараж, за да не пречи нищо на спокойствието ви. Първият етаж е мултифункционален: дневна + трапезария и спалня, докато втория е обособен по-скоро като зона за релакс с трите спални помещения. И понеже сънят не е единственото, на което можете да се отдадете, просторния дневен тракт ви гарантира приятни часове на отмора.
Къщата е на вниманието на всички, които търсят не просто бягство от града за няколко дни, тя е решение за целогодишно обитаване.
Подходяща е за средни и големи равнинни парцели.
Подробен 3D модел на сградата, който изяснява формата и функцията в пълнота още в етапа на проектиране
Бързина на проектирането без компромис с качеството
Анализ на различни варианти и опции и визуализирането им още в начален етап
Функционални планове
Модерен архитектурен софтуер, който минимизира възможните грешки

Визуализациите са илюстративни
Представените изображения са компютърно генерирани фотореалистични образи на сградата, които показват идеята на архитекта. Те визуализират една от многото възможности за завършване на фасадата на сградата. Тяхната основна цел е да изобразят къщата в околната среда по възможно най-реалистичния начин, за да може обитателите да възприемат сградата още преди тя да бъде построена. Цветовете и текстурите на реално изпълнената сграда може да се различават от компютърните изображения.
Фасадните материали могат да бъдат променяни
Визуализациите изобразяват идеята на архитекта и неговото желание да постигане завършен и естетичен образ използвайки конкретни материали по фасадата. Въпреки това, красотата на сградата е строго субективна и затова външната визия може да бъде редактирана според желанията и предпочитанията на възложителите. Всички цветове и материали могат да бъдат променяни, заменяни или премахнати според конкретните нужди.
Всички планове и изображения са предмет на авторско право
Представените визуализации и планове са авторски продукт и плод на архитектурния труд на екипа проектанти на “Ай ЕС Пи Дигитален Дизайн” ООД. Те са изключителна интелектуална собственост на фирмата. На основание член 35 от Закона за авторското право и сродните му права използването на което и да е изображение за търговски, маркетингови и други цели, без изричното писмено съгласие на фирма “Ай ЕС Пи Дигитален Дизайн” ООД е строго забранено.
Коментари и Въпроси