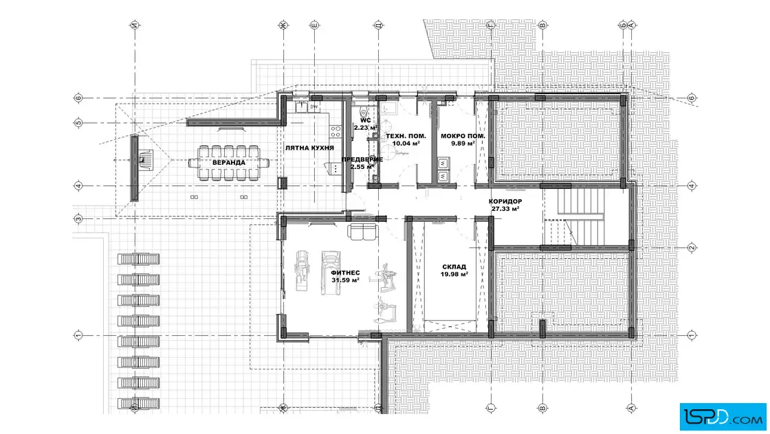
План на подземен етаж

Проект на къща в с. Дрянковец
| Етажи | Нето | Бруто |
|---|---|---|
| Подземен етаж | 103.6 кв.м. | 127.99 кв.м. |
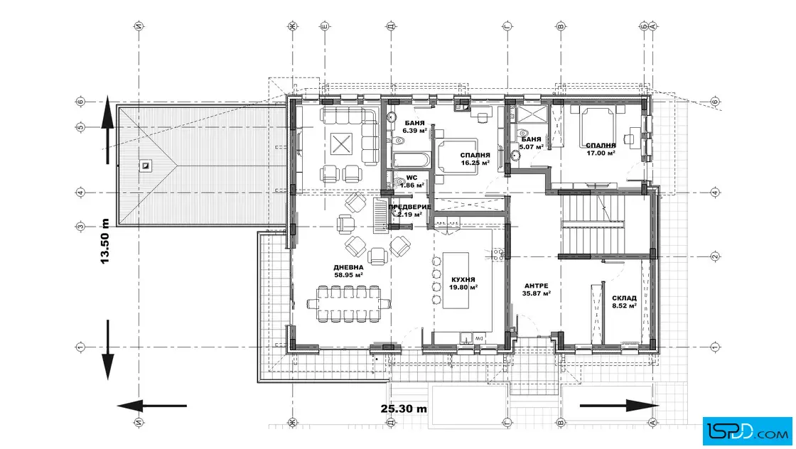
| Първи етаж | 185.92 кв.м. | 221.24 кв.м. |
| Покрит вход/веранда | 45.98 кв.м. | |
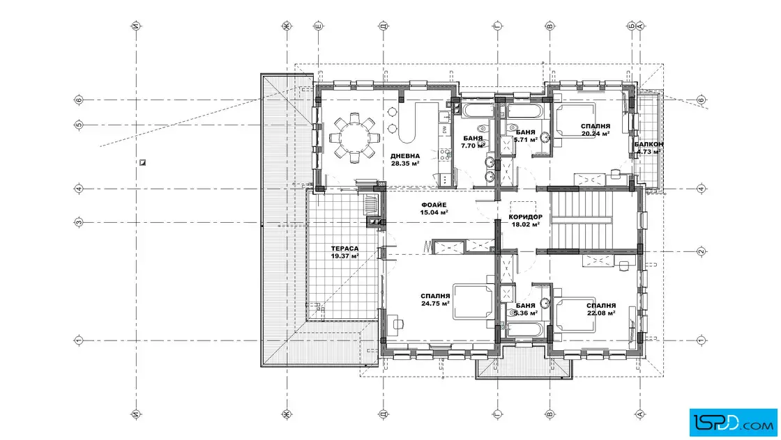
| Втори етаж | 171.36 кв.м. | 205.43 кв.м. |
| Общо: | 460.88 кв.м. | 600.64 кв.м. |









Изпитвате носталгия по старите къщи с дървени чардаци? В такъв случай този проект със сигурност ще ви заинтригува много. Той е класическата симбиоза между добре познатата от Възраждането градска архитектура и класическата визия на селската къща. В него има буквално всичко, което можете някога да искате от дом извън града: лятна кухня и покрита веранда, но и фитнес зала, модерен кухненски остров. Сутерен и два етажа с общо 9 стаи, 5 от които – спални. Природните красоти са още по-пленителни, гледайки ги на една от трите тераси. Въпреки своята „традиционна“ визия, предложението е изградено от стоманобетонна основа с тухлени стени, алуминиева или PVC дву/три камерна дограма и фасада от камък, дърво и декоративни HPL панели. Още от влизането в къщата през покрития вход ще се почувствате наистина на специално място.
Тази еднофамилна къща не е място за спокойни натури, тя е създадена по-скоро за енергични хора или за компании, които търсят място за приятно прекарване извън градските условия. Нека не се подвеждаме по класификацията „еднофамилна“ – потреницалът на този проект е наистина много по-голям. Добавим ли вече почти задължителния басейн например, ще получим перфектната къща за гости. Място с всички условия за чудесно прекарване в близост до природата.
Съвсем естествено е парцелът ви да бъде достатъчно голям, изисква се той да е по-скоро равнинен.
Подробен 3D модел на сградата, който изяснява формата и функцията в пълнота още в етапа на проектиране
Бързина на проектирането без компромис с качеството
Анализ на различни варианти и опции и визуализирането им още в начален етап
Функционални планове
Модерен архитектурен софтуер, който минимизира възможните грешки

Визуализациите са илюстративни
Представените изображения са компютърно генерирани фотореалистични образи на сградата, които показват идеята на архитекта. Те визуализират една от многото възможности за завършване на фасадата на сградата. Тяхната основна цел е да изобразят къщата в околната среда по възможно най-реалистичния начин, за да може обитателите да възприемат сградата още преди тя да бъде построена. Цветовете и текстурите на реално изпълнената сграда може да се различават от компютърните изображения.
Фасадните материали могат да бъдат променяни
Визуализациите изобразяват идеята на архитекта и неговото желание да постигане завършен и естетичен образ използвайки конкретни материали по фасадата. Въпреки това, красотата на сградата е строго субективна и затова външната визия може да бъде редактирана според желанията и предпочитанията на възложителите. Всички цветове и материали могат да бъдат променяни, заменяни или премахнати според конкретните нужди.
Всички планове и изображения са предмет на авторско право
Представените визуализации и планове са авторски продукт и плод на архитектурния труд на екипа проектанти на “Ай ЕС Пи Дигитален Дизайн” ООД. Те са изключителна интелектуална собственост на фирмата. На основание член 35 от Закона за авторското право и сродните му права използването на което и да е изображение за търговски, маркетингови и други цели, без изричното писмено съгласие на фирма “Ай ЕС Пи Дигитален Дизайн” ООД е строго забранено.
Коментари и Въпроси