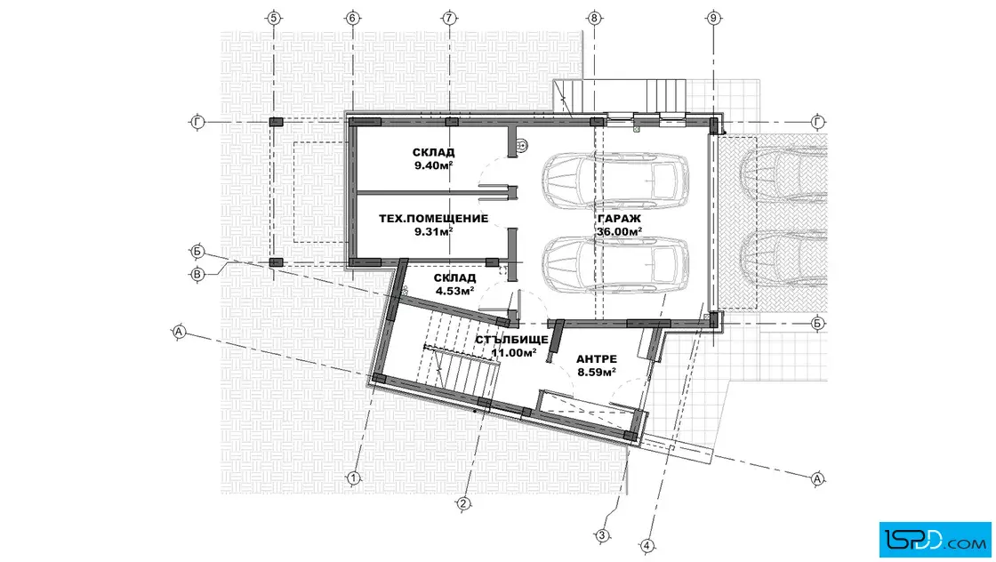
План на подземен етаж

Проект на къща в с. Бистрица
| Етажи | Нето | Бруто |
|---|---|---|
| Подземен етаж | 78.46 кв.м. | 98.04 кв.м. |
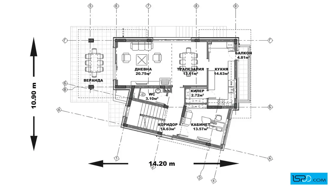
| Първи етаж | 86.49 кв.м. | 108.3 кв.м. |
| Покрит вход/веранда | 10.72 кв.м. | |
| Втори етаж | 76.12 кв.м. | 96.39 кв.м. |
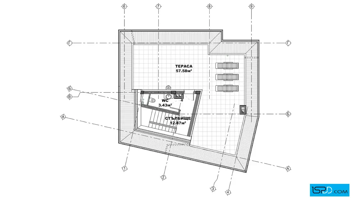
| Трети етаж | 73.39 кв.м. | 81.69 кв.м. |
| Общо: | 314.46 кв.м. | 395.14 кв.м. |











Без съмнение, изграждането на проект за жилище на терени, чиито наклон е значителен е немалко предизвикателство. Пресечената местност до огромна степен ограничава възможността да се строят просторни къщи с голяма разгърната площ. Все пак това далеч не означава, че не можете да сте собственик на чудесен дом – уютен, функционален и достатъчно впечатляващ. Извънградската вила или селската къща са с архитектура, която като цяло се различава от градското строителство. Този проект обаче до голяма степен размива тези различния. Каменната облицовка на фасадата, атрактивните декоративни HPL панели и изключително раздвижената архитектура на цели три етажа, по нищо не отстъпват на най-добрите предложения. Провинцията може да се окаже чудесна възможност за вас да притежавате едно малко архитектурно бижу. Което, в интерес на истината се простира на три етажа, плюс подземен гараж за два автомобила; има скосен покрив, покрита веранда и цели три тераси. Разбира се респектиращ по размер дневен тракт, който се състои от дневна и трапезария, допълнени с функционална кухня. Двете спални и кабинетът завършват основните помещения, като тук трябва да добавим раздвижената визия на проекта. Ако сте любители на традиционните форми, тук определено ще сте провокирани. Но скосовете и острите ъгли ни най-малко не означават неудобство. Напротив – те са решението за приятно прекарване както за няколко дни, така и през цялата година. Затова оставете колебанието си и просто си представете, че вече се любувате на природните прелести на една от трите тераси или верандата.
Предложението е подходящо за малки стръмни парцели.
Подробен 3D модел на сградата, който изяснява формата и функцията в пълнота още в етапа на проектиране
Бързина на проектирането без компромис с качеството
Анализ на различни варианти и опции и визуализирането им още в начален етап
Функционални планове
Модерен архитектурен софтуер, който минимизира възможните грешки

Визуализациите са илюстративни
Представените изображения са компютърно генерирани фотореалистични образи на сградата, които показват идеята на архитекта. Те визуализират една от многото възможности за завършване на фасадата на сградата. Тяхната основна цел е да изобразят къщата в околната среда по възможно най-реалистичния начин, за да може обитателите да възприемат сградата още преди тя да бъде построена. Цветовете и текстурите на реално изпълнената сграда може да се различават от компютърните изображения.
Фасадните материали могат да бъдат променяни
Визуализациите изобразяват идеята на архитекта и неговото желание да постигане завършен и естетичен образ използвайки конкретни материали по фасадата. Въпреки това, красотата на сградата е строго субективна и затова външната визия може да бъде редактирана според желанията и предпочитанията на възложителите. Всички цветове и материали могат да бъдат променяни, заменяни или премахнати според конкретните нужди.
Всички планове и изображения са предмет на авторско право
Представените визуализации и планове са авторски продукт и плод на архитектурния труд на екипа проектанти на “Ай ЕС Пи Дигитален Дизайн” ООД. Те са изключителна интелектуална собственост на фирмата. На основание член 35 от Закона за авторското право и сродните му права използването на което и да е изображение за търговски, маркетингови и други цели, без изричното писмено съгласие на фирма “Ай ЕС Пи Дигитален Дизайн” ООД е строго забранено.
Коментари и Въпроси