План на подземен етаж

Проект на къща в гр. Банкя
| Етажи | Нето | Бруто |
|---|---|---|
| Подземен етаж | 114.13 кв.м. | 132.42 кв.м. |
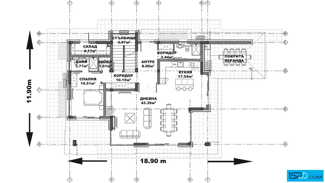
| Първи етаж | 113.9 кв.м. | 140.95 кв.м. |
| Покрит вход/веранда | 27.9 кв.м. | |
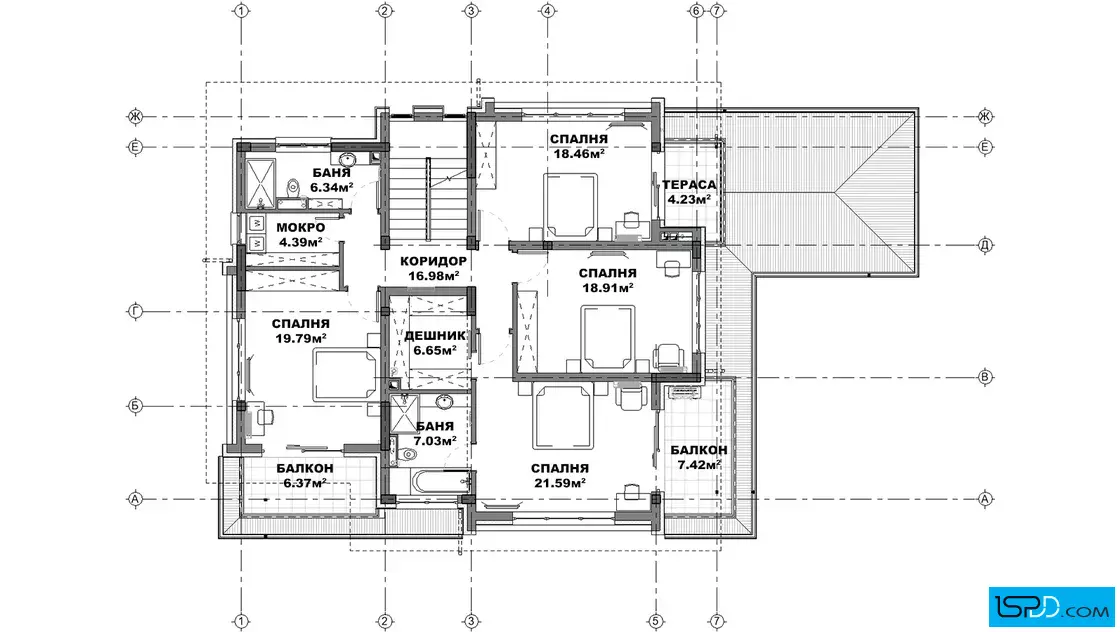
| Втори етаж | 138.17 кв.м. | 166.83 кв.м. |
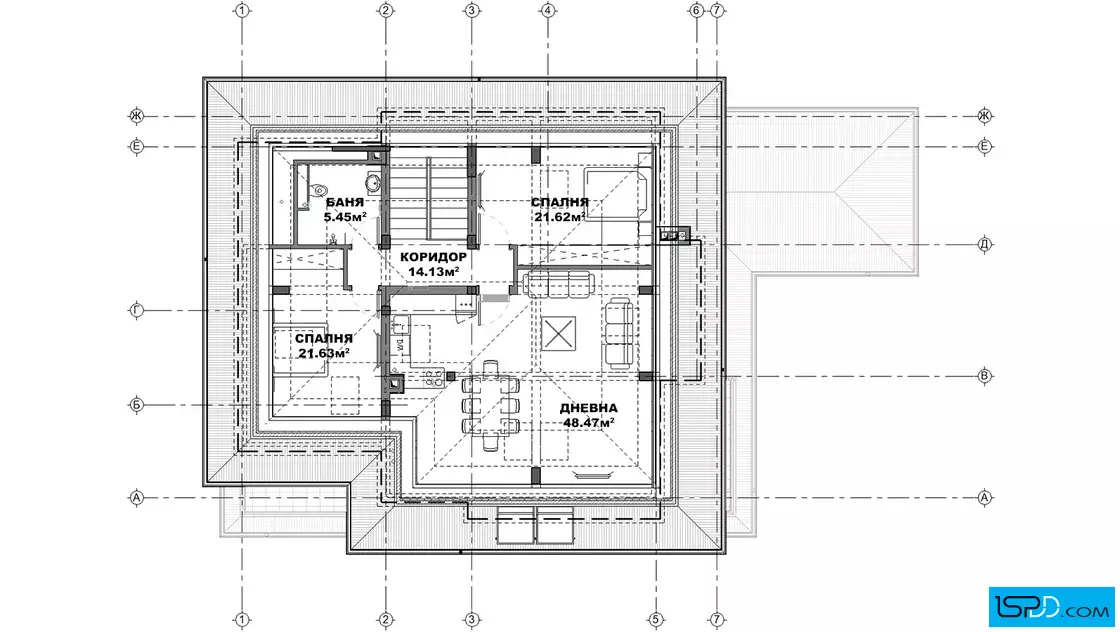
| Трети етаж | 80 кв.м. | 83.11 кв.м. |
| Общо: | 446.2 кв.м. | 551.21 кв.м. |










Два етажа, плюс сутерен и подпокривно пространство – това е интересно решение за еднофамилна къща, нали. Когато очакванията ни са за няколко стаи, кухня и тераса, а видим подобен проект, интересът към него е съвсем оправдан. Класическата визия на извънградската вила, в добавка с покрита веранда и три тераси се вписват прекрасно в концепцията за място за отмора и почивка сред провинциалното спокойствие. В същото време трябва да отбележим четирискатния покрив, стоманобетонната монолитна конструкция, дограмата с двоен или троен стъклопакет и разбира се, HPL панелите. Този декоративен елемент превръща фасадата в атрактивното лице на вашия селски дом.
Разположението на помещенията е съобразено с функционалностите на обекта, както и с осигуряването на спокойствието и нуждите на обитателите. Огромният дневен тракт заема площта от първия етаж, докато за седемте спални са отделени местата над него. Така ежедневните ви активности няма да пречат на тези, които са решили да почиват или прекарат време в сън. А че ще има моменти на събиране на семейството или приятелски компании няма съмнение- тази вила има всичко, което ви трябва да впечатлите своите близки. Въпреки, че нейната истинска стойност е в условията, от които можете да се възползвате самите вие – и през цялата година, и през почивните дни.
Проектът е за просторен равнинен парцел.
Подробен 3D модел на сградата, който изяснява формата и функцията в пълнота още в етапа на проектиране
Бързина на проектирането без компромис с качеството
Анализ на различни варианти и опции и визуализирането им още в начален етап
Функционални планове
Модерен архитектурен софтуер, който минимизира възможните грешки

Визуализациите са илюстративни
Представените изображения са компютърно генерирани фотореалистични образи на сградата, които показват идеята на архитекта. Те визуализират една от многото възможности за завършване на фасадата на сградата. Тяхната основна цел е да изобразят къщата в околната среда по възможно най-реалистичния начин, за да може обитателите да възприемат сградата още преди тя да бъде построена. Цветовете и текстурите на реално изпълнената сграда може да се различават от компютърните изображения.
Фасадните материали могат да бъдат променяни
Визуализациите изобразяват идеята на архитекта и неговото желание да постигане завършен и естетичен образ използвайки конкретни материали по фасадата. Въпреки това, красотата на сградата е строго субективна и затова външната визия може да бъде редактирана според желанията и предпочитанията на възложителите. Всички цветове и материали могат да бъдат променяни, заменяни или премахнати според конкретните нужди.
Всички планове и изображения са предмет на авторско право
Представените визуализации и планове са авторски продукт и плод на архитектурния труд на екипа проектанти на “Ай ЕС Пи Дигитален Дизайн” ООД. Те са изключителна интелектуална собственост на фирмата. На основание член 35 от Закона за авторското право и сродните му права използването на което и да е изображение за търговски, маркетингови и други цели, без изричното писмено съгласие на фирма “Ай ЕС Пи Дигитален Дизайн” ООД е строго забранено.
Коментари и Въпроси