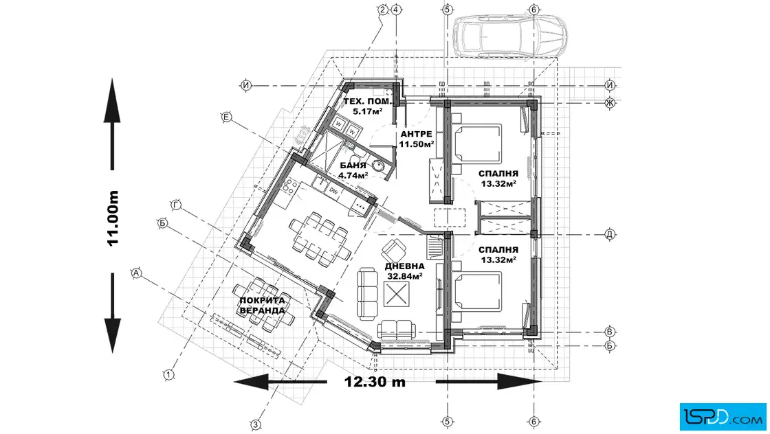
План на първи етаж

Проект на къща в с. Кленовик
| Етажи | Нето | Бруто |
|---|---|---|
| Първи етаж | 80.88 кв.м. | 100.19 кв.м. |
| Покрит вход/веранда | 5 кв.м. | |
| Общо: | 80.88 кв.м. | 105.19 кв.м. |







Едноетажните извънградски къщи имат наистина неподправен чар. Те са носители на онова усещане за уют, което просторните многоетажни вили не могат да ни дадат. Компактните размери, които обаче всъщност ни осигуряват всичко, от което реално се нуждаем – пространство за почивка, пространство за сън. В този проект няма нищо излишно, всички помещения са максимално функционални, а това се харесва на все повече хора. Простотата на семплите форми, умело разнообразена с уникалния навес на покритата веранда са формулата, превръщаща тази малка извънградска вила в истински мечтан дом сред природата.
Въпреки кокетно малкия си размер обаче, това предложение е от монолитна стоманобетонна конструкция, а фасадата е онзи акцент, който няма как да не забележите. Декоративните HPL панели и каменната облицовка са чудесното лице на проекта, с тях ще можете да предложите на гостите си наистина различна атмосфера. Две спални и дневен тракт – еднофамилен уют далеч от градското напрежение. Нестандартното разположение на стаите дава допълнителна индивидуалност и можете съвсем реално да се почувствате в къщи, независимо дали само за уикенда или през цялата година.
Проектът е предназначен за малък равнинен терен.
Подробен 3D модел на сградата, който изяснява формата и функцията в пълнота още в етапа на проектиране
Бързина на проектирането без компромис с качеството
Анализ на различни варианти и опции и визуализирането им още в начален етап
Функционални планове
Модерен архитектурен софтуер, който минимизира възможните грешки

Визуализациите са илюстративни
Представените изображения са компютърно генерирани фотореалистични образи на сградата, които показват идеята на архитекта. Те визуализират една от многото възможности за завършване на фасадата на сградата. Тяхната основна цел е да изобразят къщата в околната среда по възможно най-реалистичния начин, за да може обитателите да възприемат сградата още преди тя да бъде построена. Цветовете и текстурите на реално изпълнената сграда може да се различават от компютърните изображения.
Фасадните материали могат да бъдат променяни
Визуализациите изобразяват идеята на архитекта и неговото желание да постигане завършен и естетичен образ използвайки конкретни материали по фасадата. Въпреки това, красотата на сградата е строго субективна и затова външната визия може да бъде редактирана според желанията и предпочитанията на възложителите. Всички цветове и материали могат да бъдат променяни, заменяни или премахнати според конкретните нужди.
Всички планове и изображения са предмет на авторско право
Представените визуализации и планове са авторски продукт и плод на архитектурния труд на екипа проектанти на “Ай ЕС Пи Дигитален Дизайн” ООД. Те са изключителна интелектуална собственост на фирмата. На основание член 35 от Закона за авторското право и сродните му права използването на което и да е изображение за търговски, маркетингови и други цели, без изричното писмено съгласие на фирма “Ай ЕС Пи Дигитален Дизайн” ООД е строго забранено.
Коментари и Въпроси