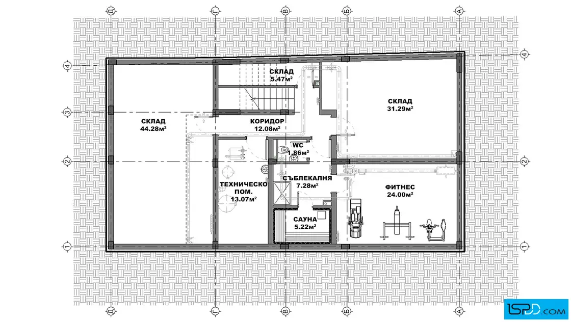
План на подземен етаж

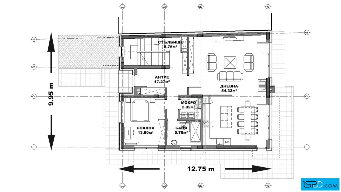
Проект на къща в гр. София
| Етажи | Нето | Бруто |
|---|---|---|
| Подземен етаж | 144.55 кв.м. | 168.3 кв.м. |
| Първи етаж | 99.75 кв.м. | 120.63 кв.м. |
| Втори етаж | 110.49 кв.м. | 132.61 кв.м. |
| Общо: | 354.79 кв.м. | 421.54 кв.м. |








Еднофамилна къща в малък парцел? В търсене на подобно решение са мнозина, проектът със сигурност ще заинтригува и вас. Стилът на тази къща е отлична симбиоза между визията на извънградската вила и домът от предградието. А това означава, че няма нужда да избирате между едното и другото – удобствата ще задоволят и претенциозния вкус. На два етажа + приземен етаж е на разположение всичко, което можете да искате от еднофамилна къща – огромен дневен тракт, веранда, четири спални и разбира се, фитнес и сауна плюс съблекалня. Всички удобства на цивилизацията и то на крачка от природата. Знаем, че обикновено провинциалния дом означава да се лишите от някое от гореизброените екстри, но тук всичко е на ваше разположение. Стоманобетонна конструкция, тухлени стени, PVC или алуминиева дограма с две/три камери са базата, която ви гарантира надеждност и перфектна изолация. Фасадата е готова да привлича всеки поглед с акценти като декоративни HPL панели, а ако и това не е достатъчно – верандата ще е притегателно място за вас и вашата компания.
Внимание: рискувате тази компания да е постоянна, защото веднъж опитали всички удобства, приятелите ви ще искат да гостуват отново.
Проектът е подходящ за млади, съвременни хора, които са ориентирани към луксозния начин на живот, съчетан със спокойствието на модерното предградие. И то през цялата година.
Еднофамилната къща е създадена за малки равнинни парцели.
Подробен 3D модел на сградата, който изяснява формата и функцията в пълнота още в етапа на проектиране
Бързина на проектирането без компромис с качеството
Анализ на различни варианти и опции и визуализирането им още в начален етап
Функционални планове
Модерен архитектурен софтуер, който минимизира възможните грешки

Визуализациите са илюстративни
Представените изображения са компютърно генерирани фотореалистични образи на сградата, които показват идеята на архитекта. Те визуализират една от многото възможности за завършване на фасадата на сградата. Тяхната основна цел е да изобразят къщата в околната среда по възможно най-реалистичния начин, за да може обитателите да възприемат сградата още преди тя да бъде построена. Цветовете и текстурите на реално изпълнената сграда може да се различават от компютърните изображения.
Фасадните материали могат да бъдат променяни
Визуализациите изобразяват идеята на архитекта и неговото желание да постигане завършен и естетичен образ използвайки конкретни материали по фасадата. Въпреки това, красотата на сградата е строго субективна и затова външната визия може да бъде редактирана според желанията и предпочитанията на възложителите. Всички цветове и материали могат да бъдат променяни, заменяни или премахнати според конкретните нужди.
Всички планове и изображения са предмет на авторско право
Представените визуализации и планове са авторски продукт и плод на архитектурния труд на екипа проектанти на “Ай ЕС Пи Дигитален Дизайн” ООД. Те са изключителна интелектуална собственост на фирмата. На основание член 35 от Закона за авторското право и сродните му права използването на което и да е изображение за търговски, маркетингови и други цели, без изричното писмено съгласие на фирма “Ай ЕС Пи Дигитален Дизайн” ООД е строго забранено.
Коментари и Въпроси