План на подземен етаж

Проект на къща в гр. Перник
| Етажи | Нето | Бруто |
|---|---|---|
| Подземен етаж | 21.15 кв.м. | 26.97 кв.м. |
| Първи етаж | 97.44 кв.м. | 112.8 кв.м. |
| Покрит вход/веранда | 16.79 кв.м. | |
| Общо: | 118.59 кв.м. | 156.56 кв.м. |








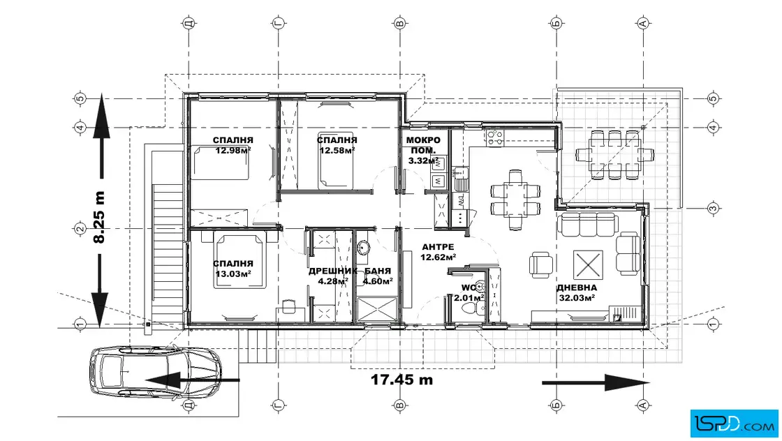
Едни от най-предпочитаните проекти на еднофамилни къщи са на един етаж. Те визуализират концепцията всички помещения да са на едно ниво, като липсата на стълби се компенсира от удобството с лекота да достигате до стаите. Извънградските вили, които избираме за почивка през ваканциите и уикендите също предлагат уют и стил на кота нула. Това обаче не означава, че няма да ползвате удобствата, които са присъщи на „солидните“ постройки. Мазе и един етаж, изградени от монолитна стоманобетонна конструкция, с четирискатен покрив и тухлени стени. Дограмата е произведена от PVC или алуминий. Ако всичко дотук ви се вижда съвсем стандартно, нека продължим с фасадата, облицована с камък и минерална мазилка. И ако не сте впечатлени от външния вид, интериорът включва просторен дневен тракт, от който лесно можете да преминете в покритата веранда. В дъното са разположени трите спални, което функционално обособява зона за почивка и релакс. Възможността са излезете сред природата, която ви очаква навън привлича все повече интерес.
Спокойно можете да се насочите към това предложение за целогодишно обитаване. Или пък когато почувствате нужда да се разтоварите от градското напрежение.
Проектът е подходящ за просторни парцели с нулев или малък наклон.
Подробен 3D модел на сградата, който изяснява формата и функцията в пълнота още в етапа на проектиране
Бързина на проектирането без компромис с качеството
Анализ на различни варианти и опции и визуализирането им още в начален етап
Функционални планове
Модерен архитектурен софтуер, който минимизира възможните грешки

Визуализациите са илюстративни
Представените изображения са компютърно генерирани фотореалистични образи на сградата, които показват идеята на архитекта. Те визуализират една от многото възможности за завършване на фасадата на сградата. Тяхната основна цел е да изобразят къщата в околната среда по възможно най-реалистичния начин, за да може обитателите да възприемат сградата още преди тя да бъде построена. Цветовете и текстурите на реално изпълнената сграда може да се различават от компютърните изображения.
Фасадните материали могат да бъдат променяни
Визуализациите изобразяват идеята на архитекта и неговото желание да постигане завършен и естетичен образ използвайки конкретни материали по фасадата. Въпреки това, красотата на сградата е строго субективна и затова външната визия може да бъде редактирана според желанията и предпочитанията на възложителите. Всички цветове и материали могат да бъдат променяни, заменяни или премахнати според конкретните нужди.
Всички планове и изображения са предмет на авторско право
Представените визуализации и планове са авторски продукт и плод на архитектурния труд на екипа проектанти на “Ай ЕС Пи Дигитален Дизайн” ООД. Те са изключителна интелектуална собственост на фирмата. На основание член 35 от Закона за авторското право и сродните му права използването на което и да е изображение за търговски, маркетингови и други цели, без изричното писмено съгласие на фирма “Ай ЕС Пи Дигитален Дизайн” ООД е строго забранено.
Коментари и Въпроси