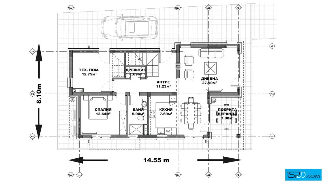
План на първи етаж

Проект на къща в с. Долно Камарци
| Етажи | Нето | Бруто |
|---|---|---|
| Първи етаж | 86.38 кв.м. | 101.11 кв.м. |
| Покрит вход/веранда | 8.34 кв.м. | |
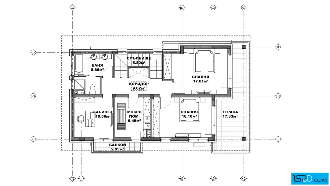
| Втори етаж | 97.66 кв.м. | 120.25 кв.м. |
| Общо: | 184.04 кв.м. | 229.7 кв.м. |








Два етажа, пет стаи, три от които спални, огромен дневен тракт и великолепна външна веранда – това е само съвсем малка част от характеристиките на тази еднофамилна къща. Тя е проектирана да се реализира с монолитна стоманобетонна конструкция, четирискатен покрив, тухлени стени и ПВЦ дограма. Следват минералната мазилка, каменната облицовка и декоративните HPL панели, за да се превърне фасадата в привличащ отдалеч окото архитектурен проект.
Двете тераси, огромните френски прозорци и покритата веранда в огромна степен скъсяват дистанцията с природата и съвсем реално можете да почувствате полъха на вятър или аромата на цветята. Дори на втория етаж, където са спалните и кабинетът. Съвсем естествено, под тях са разположени дневният тракт и техническите помещения. Това съвсем стандартно разпределение е продиктувано от идеята да се разделят дневните активности с почивката и работния процес с тези, изискващи повече тишина и спокойствие.
Подходящ ли е този проект за целогодишно живеене? Разбира се. А може ли да бъде просто чудесно място за почивка през ваканциите или уикендите. Отново да. Независимо кой е вашият вариант, удобства са достатъчни да ви гарантират лукса, който имате в града.
Проектът се препоръчва за просторни равнинни парцели.
Подробен 3D модел на сградата, който изяснява формата и функцията в пълнота още в етапа на проектиране
Бързина на проектирането без компромис с качеството
Анализ на различни варианти и опции и визуализирането им още в начален етап
Функционални планове
Модерен архитектурен софтуер, който минимизира възможните грешки

Визуализациите са илюстративни
Представените изображения са компютърно генерирани фотореалистични образи на сградата, които показват идеята на архитекта. Те визуализират една от многото възможности за завършване на фасадата на сградата. Тяхната основна цел е да изобразят къщата в околната среда по възможно най-реалистичния начин, за да може обитателите да възприемат сградата още преди тя да бъде построена. Цветовете и текстурите на реално изпълнената сграда може да се различават от компютърните изображения.
Фасадните материали могат да бъдат променяни
Визуализациите изобразяват идеята на архитекта и неговото желание да постигане завършен и естетичен образ използвайки конкретни материали по фасадата. Въпреки това, красотата на сградата е строго субективна и затова външната визия може да бъде редактирана според желанията и предпочитанията на възложителите. Всички цветове и материали могат да бъдат променяни, заменяни или премахнати според конкретните нужди.
Всички планове и изображения са предмет на авторско право
Представените визуализации и планове са авторски продукт и плод на архитектурния труд на екипа проектанти на “Ай ЕС Пи Дигитален Дизайн” ООД. Те са изключителна интелектуална собственост на фирмата. На основание член 35 от Закона за авторското право и сродните му права използването на което и да е изображение за търговски, маркетингови и други цели, без изричното писмено съгласие на фирма “Ай ЕС Пи Дигитален Дизайн” ООД е строго забранено.
Коментари и Въпроси