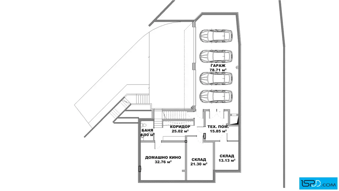
План на подземен етаж

Проект на къща в гр. София
| Етажи | Нето | Бруто |
|---|---|---|
| Подземен етаж | 191.5 кв.м. | 224.27 кв.м. |
| Първи етаж | 140.27 кв.м. | 169.54 кв.м. |
| Покрит вход/веранда | 32.13 кв.м. | |
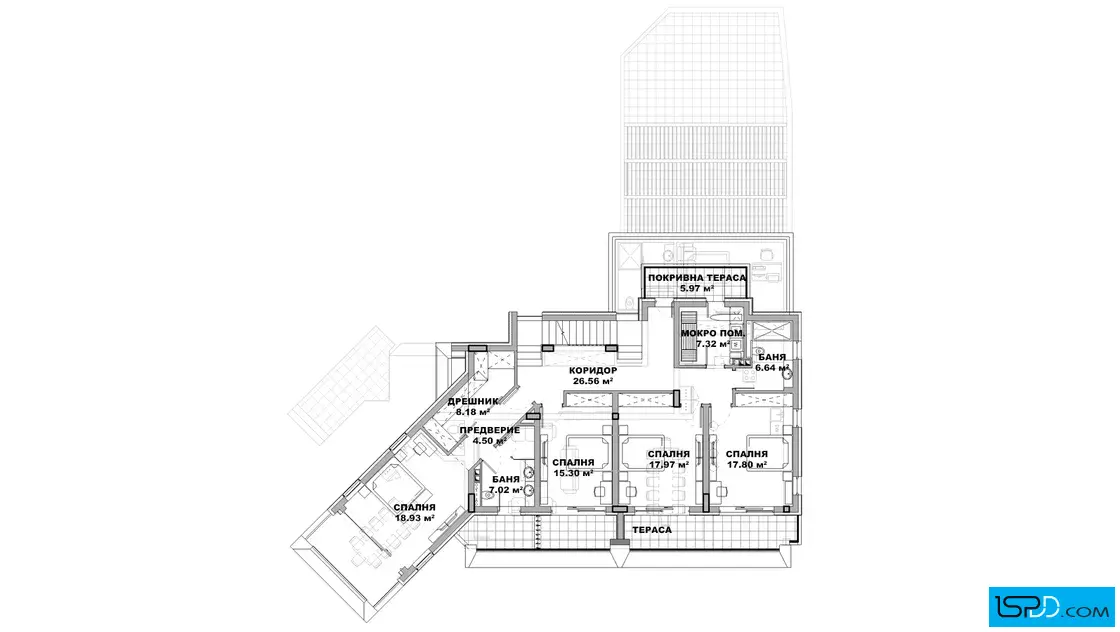
| Втори етаж | 165.37 кв.м. | 198.43 кв.м. |
| Трети етаж | 141.43 кв.м. | 160.96 кв.м. |
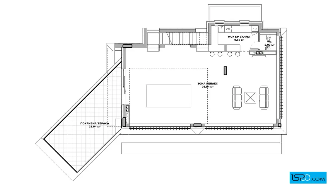
| Четвърти етаж | 101.89 кв.м. | 110.61 кв.м. |
| Общо: | 740.46 кв.м. | 895.94 кв.м. |

















Суперлукс, модерно бизнес излъчване, ърбън стил – с тези и още много подобни определения можем да опишем този проект за еднофамилна къща. Той със сигурност разчупва много стереотипи за това как трябва да изглежда един дом. За модерните млади хора обаче домашно кино, бар на покрива с мокър бюфет или покривна тераса с барбекю и релакс зона на покрива са съвсем нормални неща и е естествено да присъстват в подобно предложение. Това четириетажно бижу е с покрита веранда, пет тераси и гараж за четири коли в подземния етаж. Спалните са разположени на етаж две, като обособяването им на едно място гарантира сигурно дистанциране от активностите под и над тях.
Конструкцията на проекта е от монолитен стоманобетон, тухлени стени и алуминиева дограма с двоен/ троен стъклопакет. Съвременната визия е резултат от компонентите, от които е изградена фасадата, а именно минерална мазилка, каменна облицовка и изключително атрактивните декоративни HPL панели. Стъкло, метал и камък – съчетаването на тези материали изгражда наистина неповторимо излъчване. Сградата изглежда еднакво удобна както за активна почивка, така и за разнообразни забавления. Подходяща е за целогодишно обитаване – вариант, който ще предпочетете със сигурност, веднъж разгледали предложението.
Проектът е подходящ за обемен парцел с денивелация.
Подробен 3D модел на сградата, който изяснява формата и функцията в пълнота още в етапа на проектиране
Бързина на проектирането без компромис с качеството
Анализ на различни варианти и опции и визуализирането им още в начален етап
Функционални планове
Модерен архитектурен софтуер, който минимизира възможните грешки

Визуализациите са илюстративни
Представените изображения са компютърно генерирани фотореалистични образи на сградата, които показват идеята на архитекта. Те визуализират една от многото възможности за завършване на фасадата на сградата. Тяхната основна цел е да изобразят къщата в околната среда по възможно най-реалистичния начин, за да може обитателите да възприемат сградата още преди тя да бъде построена. Цветовете и текстурите на реално изпълнената сграда може да се различават от компютърните изображения.
Фасадните материали могат да бъдат променяни
Визуализациите изобразяват идеята на архитекта и неговото желание да постигане завършен и естетичен образ използвайки конкретни материали по фасадата. Въпреки това, красотата на сградата е строго субективна и затова външната визия може да бъде редактирана според желанията и предпочитанията на възложителите. Всички цветове и материали могат да бъдат променяни, заменяни или премахнати според конкретните нужди.
Всички планове и изображения са предмет на авторско право
Представените визуализации и планове са авторски продукт и плод на архитектурния труд на екипа проектанти на “Ай ЕС Пи Дигитален Дизайн” ООД. Те са изключителна интелектуална собственост на фирмата. На основание член 35 от Закона за авторското право и сродните му права използването на което и да е изображение за търговски, маркетингови и други цели, без изричното писмено съгласие на фирма “Ай ЕС Пи Дигитален Дизайн” ООД е строго забранено.
Коментари и Въпроси