План на подземен етаж

Проект на къща в с. Герман
| Етажи | Нето | Бруто |
|---|---|---|
| Подземен етаж | 53.35 кв.м. | 66.33 кв.м. |
| Първи етаж | 56.79 кв.м. | 66.83 кв.м. |
| Втори етаж | 63.54 кв.м. | 75.32 кв.м. |
| Общо: | 173.68 кв.м. | 208.48 кв.м. |









Обикновено когато пристъпвате към избор на провинциално жилище, изискванията са по-различни. Търси се повече пространство и удобство, още повече като сте наясно, че можете да си позволите такова разположение на помещенията, която да ви носи максимална ефективност. Това предложение е точно такова – два етажа плюс сутерен, в който се намира гараж за два автомобила. Конструкцията е дървена скелетна и дограма от PVC или алуминий. Възможността за бързо строителство ще бъде оценена от всички, като уточнението е, че това не означава по-малко качество. Напротив – висококачествените материали са гаранция за надеждност на постройката. От основата до облицовката на фасадата, която е от камък и привличащите погледа HPL панели. Те имат чисто декоративна функция, но ефектът, който придават е наистина впечатляващ.
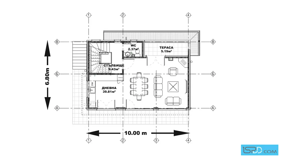
Разположението на помещенията по различните етажи е както следва: етаж едно – дневна и кухня, която ви дава възможност да излезете на откритата веранда. Възможността да избирате място за своите дневни активности, със сигурност е голям плюс на този проект. Също както и поставянето на трите спални в цялото пространство на втория етаж. Така спокойствието и моментите на релакс са гарантирани. За вас и вашите гости, които нямат търпение да приемат вашата покана. Отново! А гостуването може да е по всяко време на годината, при условие че изберете тази еднофамилна къща за ваш постоянен дом. Но пък и дори за няколко дни близостта до природата, съчетана с удобствата и стила на това чудесно предложение.
Проектът се препоръчва за реализация в компактни парцели с наклон.
Подробен 3D модел на сградата, който изяснява формата и функцията в пълнота още в етапа на проектиране
Бързина на проектирането без компромис с качеството
Анализ на различни варианти и опции и визуализирането им още в начален етап
Функционални планове
Модерен архитектурен софтуер, който минимизира възможните грешки

Визуализациите са илюстративни
Представените изображения са компютърно генерирани фотореалистични образи на сградата, които показват идеята на архитекта. Те визуализират една от многото възможности за завършване на фасадата на сградата. Тяхната основна цел е да изобразят къщата в околната среда по възможно най-реалистичния начин, за да може обитателите да възприемат сградата още преди тя да бъде построена. Цветовете и текстурите на реално изпълнената сграда може да се различават от компютърните изображения.
Фасадните материали могат да бъдат променяни
Визуализациите изобразяват идеята на архитекта и неговото желание да постигане завършен и естетичен образ използвайки конкретни материали по фасадата. Въпреки това, красотата на сградата е строго субективна и затова външната визия може да бъде редактирана според желанията и предпочитанията на възложителите. Всички цветове и материали могат да бъдат променяни, заменяни или премахнати според конкретните нужди.
Всички планове и изображения са предмет на авторско право
Представените визуализации и планове са авторски продукт и плод на архитектурния труд на екипа проектанти на “Ай ЕС Пи Дигитален Дизайн” ООД. Те са изключителна интелектуална собственост на фирмата. На основание член 35 от Закона за авторското право и сродните му права използването на което и да е изображение за търговски, маркетингови и други цели, без изричното писмено съгласие на фирма “Ай ЕС Пи Дигитален Дизайн” ООД е строго забранено.
Коментари и Въпроси