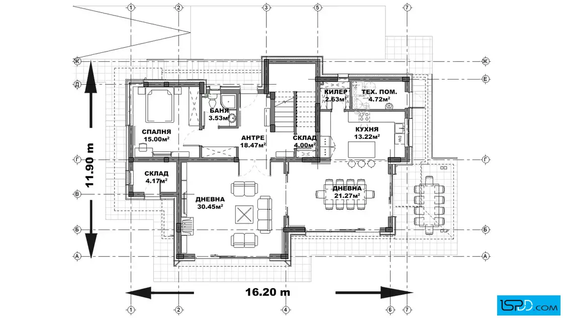
План на първи етаж

Проект на къща в с. Иваняне
| Етажи | Нето | Бруто |
|---|---|---|
| Първи етаж | 117.45 кв.м. | 145.14 кв.м. |
| Покрит вход/веранда | 10.94 кв.м. | |
| Втори етаж | 114.29 кв.м. | 143.03 кв.м. |
| Общо: | 231.74 кв.м. | 299.11 кв.м. |








Този проект в село Иваняне представя модерна и просторна двуетажна къща, създадена да осигури максимален комфорт за голямо семейство. Първият етаж е сърцето на дома, където кухнята, трапезарията и дневната са обединени в едно светло и обемно пространство за споделени моменти. Големите остъклени витрини свързват интериора директно с двора, правейки прехода към природата лесен и естествен. На това ниво е разположена и една самостоятелна спалня, която е идеално решение за гости или за членове на семейството, които предпочитат достъп без стълби. Функционалността на етажа е отлично планирана с включването на практичен килер към кухнята, техническо помещение и две складови зони.
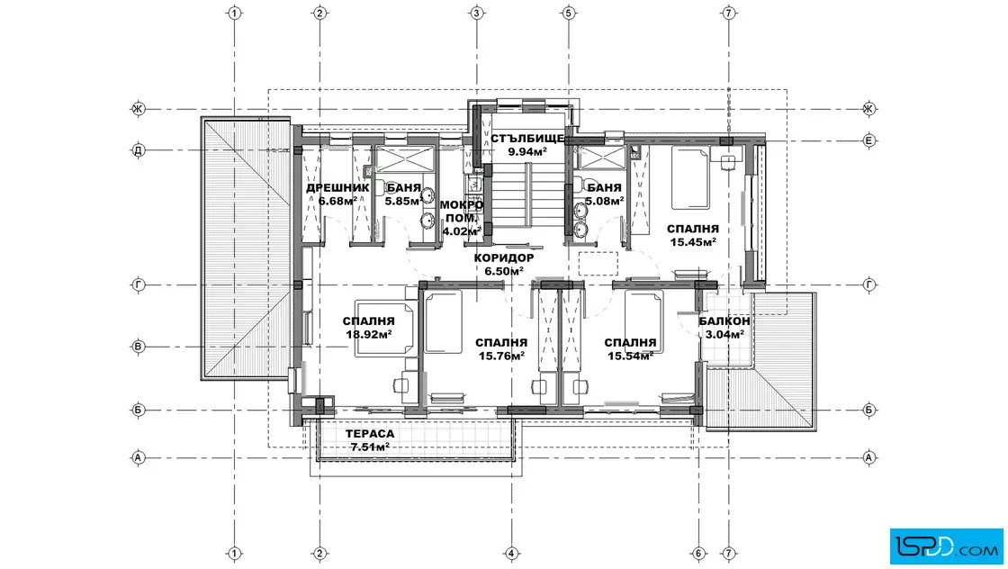
Вторият етаж е изцяло посветен на спокойствието, като предлага четири обширни и слънчеви спални. Родителската стая е оформена като луксозна лична зона със собствен дрешник и голяма самостоятелна баня. Останалите три спални на нивото се обслужват от допълнителна баня, а отделното мокро помещение добавя необходимото ежедневно удобство. Жителите могат да се наслаждават на свежия въздух от панорамната тераса и балкона, които разширяват личното пространство на втория етаж.
Къщата балансира умело между представителност и семеен уют. Архитектурата залага на чисти линии и функционалност, които подкрепят организирания и спокоен начин на живот. Това е дом, който вдъхновява със свобода и предоставя перфектната сцена за израстването на вашето семейство.
Подробен 3D модел на сградата, който изяснява формата и функцията в пълнота още в етапа на проектиране
Бързина на проектирането без компромис с качеството
Анализ на различни варианти и опции и визуализирането им още в начален етап
Функционални планове
Модерен архитектурен софтуер, който минимизира възможните грешки

Визуализациите са илюстративни
Представените изображения са компютърно генерирани фотореалистични образи на сградата, които показват идеята на архитекта. Те визуализират една от многото възможности за завършване на фасадата на сградата. Тяхната основна цел е да изобразят къщата в околната среда по възможно най-реалистичния начин, за да може обитателите да възприемат сградата още преди тя да бъде построена. Цветовете и текстурите на реално изпълнената сграда може да се различават от компютърните изображения.
Фасадните материали могат да бъдат променяни
Визуализациите изобразяват идеята на архитекта и неговото желание да постигане завършен и естетичен образ използвайки конкретни материали по фасадата. Въпреки това, красотата на сградата е строго субективна и затова външната визия може да бъде редактирана според желанията и предпочитанията на възложителите. Всички цветове и материали могат да бъдат променяни, заменяни или премахнати според конкретните нужди.
Всички планове и изображения са предмет на авторско право
Представените визуализации и планове са авторски продукт и плод на архитектурния труд на екипа проектанти на “Ай ЕС Пи Дигитален Дизайн” ООД. Те са изключителна интелектуална собственост на фирмата. На основание член 35 от Закона за авторското право и сродните му права използването на което и да е изображение за търговски, маркетингови и други цели, без изричното писмено съгласие на фирма “Ай ЕС Пи Дигитален Дизайн” ООД е строго забранено.
Коментари и Въпроси