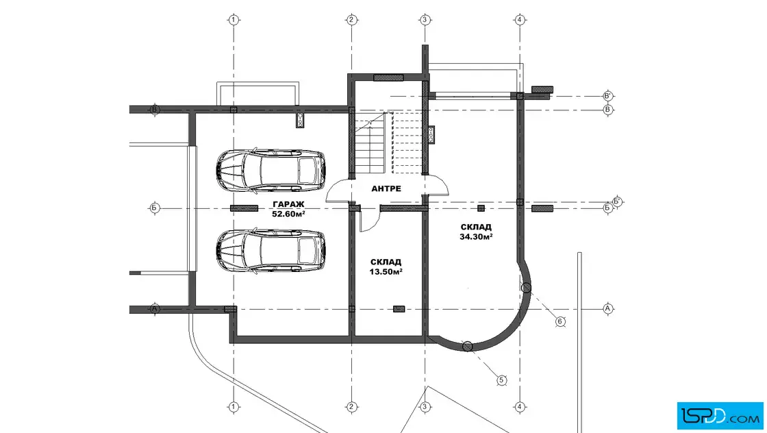
План на подземен етаж

Еднофамилна къща в гр. Созопол









Това е проект на луксозна еднофамилна къща решена в модерен стил. Динамичното преплитане на форми и обеми подчертава тази визия и по този начин отличава тази къща от останалите. Отделено е специално внимание на детайлите и материалите по фасадата. Използвана е облицовка от варовикови плочи, облицовка от дърво и цветна мазилка. Ефирните стъклени парапети не възпрепятстват гледката към морето. Къщата е решена на четири нива, три надземни и едно подземно. На първо ниво са проектирани гараж за две коли и складови помещения. На второ ниво са разположени входно антре, просторна дневна с кът за камина, трапезария, кухня, баня и склад. В проекта на къщата е заложено площно остъкляване по етажите, отваряйки помещенията към двора и към гледката. Овалния обем на трапезарията е почти изцяло остъклен. Пред дневната е проектирана просторна веранда, покрита от дървена пергола. Там е разположен и малък басейн. На трето ниво са разположени четири големи спални, две бани и два дрешника. Пред две от спалните има балкон. На последно ниво е проектирано ателие и главната спалня, която има самостоятелни баня и дрешник. Просторна тераса разкрива прекрасен изглед към морето. Стълбищната клетка стига до покрива, където е развита покривна тераса-градина.
Конструкцията е монолитна стоманобетонна. Ограждащите стени са тухлени с външна топлоизолация. Дограмата е от PVC със стъклопакет от нискоемисионно стъкло. Покривът на къщата е плосък.
Площ на подземно ниво: 135 кв.м.
Площ на първо ниво: 118 кв.м.
Площ на второ ниво: 144 кв.м.
Площ на трето ниво: 125 кв.м.
Подробен 3D модел на сградата, който изяснява формата и функцията в пълнота още в етапа на проектиране
Бързина на проектирането без компромис с качеството
Анализ на различни варианти и опции и визуализирането им още в начален етап
Функционални планове
Модерен архитектурен софтуер, който минимизира възможните грешки

Визуализациите са илюстративни
Представените изображения са компютърно генерирани фотореалистични образи на сградата, които показват идеята на архитекта. Те визуализират една от многото възможности за завършване на фасадата на сградата. Тяхната основна цел е да изобразят къщата в околната среда по възможно най-реалистичния начин, за да може обитателите да възприемат сградата още преди тя да бъде построена. Цветовете и текстурите на реално изпълнената сграда може да се различават от компютърните изображения.
Фасадните материали могат да бъдат променяни
Визуализациите изобразяват идеята на архитекта и неговото желание да постигане завършен и естетичен образ използвайки конкретни материали по фасадата. Въпреки това, красотата на сградата е строго субективна и затова външната визия може да бъде редактирана според желанията и предпочитанията на възложителите. Всички цветове и материали могат да бъдат променяни, заменяни или премахнати според конкретните нужди.
Всички планове и изображения са предмет на авторско право
Представените визуализации и планове са авторски продукт и плод на архитектурния труд на екипа проектанти на “Ай ЕС Пи Дигитален Дизайн” ООД. Те са изключителна интелектуална собственост на фирмата. На основание член 35 от Закона за авторското право и сродните му права използването на което и да е изображение за търговски, маркетингови и други цели, без изричното писмено съгласие на фирма “Ай ЕС Пи Дигитален Дизайн” ООД е строго забранено.
Коментари и Въпроси