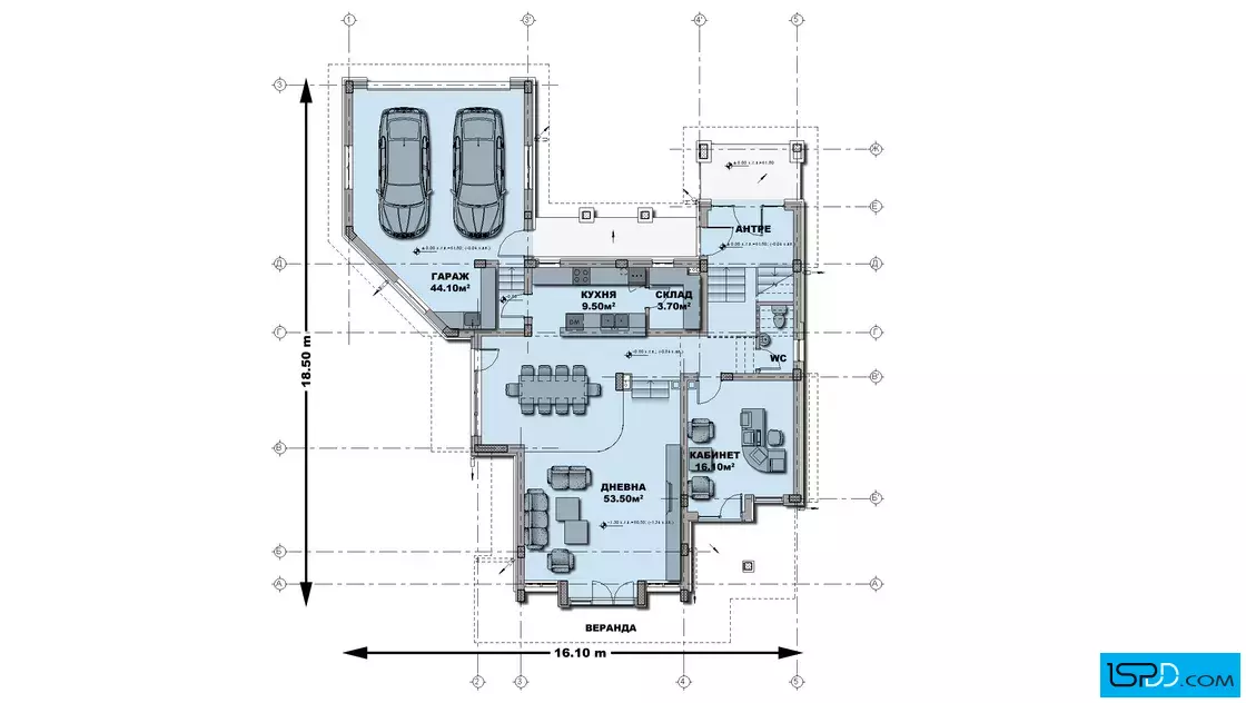
План на първи етаж

Еднофамилна къща в с. Лъка





Това е проект на голяма еднофамилна къща, която въздейства с модерния си вид и с умелото преплитане на обеми. Изборът на фасадно оформление също допринася за съвременното звучене на сградата. Къщата е на два етажа като на първия са проектирани входно фоайе, просторна дневна, трапезария, кухня, кабинет, гараж за две коли, тоалетна и склад. Дневната е на полуниво с прекрасен изглед към двора. Проектирана е голяма веранда покрита с дървена пергола. На втория етаж са разположени три спални със самостоятелни дрешници към тях, две бани и перално помещение. Пред две от спалните са проектирани тераси. Проектът на къщата предвижда големи прозорци и витрини като по този начин обитателите ще се възползват максимално от дневната светлина. Мащабното озеленяване около сградата я приобщава с природната среда. Проектното решение предвижда изграждането на басейн в двора.
Конструкцията е монолитна стоманобетонна. Ограждащите стени са тухлени с външна топлоизолация. Фасадното оформление се състои от каменна и дървена облицовка и цветна мазилка. Дограмата е от PVC със стъклопакет от нискоемисионно стъкло. Покривът е четирискатен покрит с керемиди. При проектирането на къщата е търсен баланс между лукс, комфорт и уют.
Площ на първо ниво: 188 кв.м.
Площ на второ ниво: 132 кв.м.
Подробен 3D модел на сградата, който изяснява формата и функцията в пълнота още в етапа на проектиране
Бързина на проектирането без компромис с качеството
Анализ на различни варианти и опции и визуализирането им още в начален етап
Функционални планове
Модерен архитектурен софтуер, който минимизира възможните грешки

Визуализациите са илюстративни
Представените изображения са компютърно генерирани фотореалистични образи на сградата, които показват идеята на архитекта. Те визуализират една от многото възможности за завършване на фасадата на сградата. Тяхната основна цел е да изобразят къщата в околната среда по възможно най-реалистичния начин, за да може обитателите да възприемат сградата още преди тя да бъде построена. Цветовете и текстурите на реално изпълнената сграда може да се различават от компютърните изображения.
Фасадните материали могат да бъдат променяни
Визуализациите изобразяват идеята на архитекта и неговото желание да постигане завършен и естетичен образ използвайки конкретни материали по фасадата. Въпреки това, красотата на сградата е строго субективна и затова външната визия може да бъде редактирана според желанията и предпочитанията на възложителите. Всички цветове и материали могат да бъдат променяни, заменяни или премахнати според конкретните нужди.
Всички планове и изображения са предмет на авторско право
Представените визуализации и планове са авторски продукт и плод на архитектурния труд на екипа проектанти на “Ай ЕС Пи Дигитален Дизайн” ООД. Те са изключителна интелектуална собственост на фирмата. На основание член 35 от Закона за авторското право и сродните му права използването на което и да е изображение за търговски, маркетингови и други цели, без изричното писмено съгласие на фирма “Ай ЕС Пи Дигитален Дизайн” ООД е строго забранено.
Коментари и Въпроси