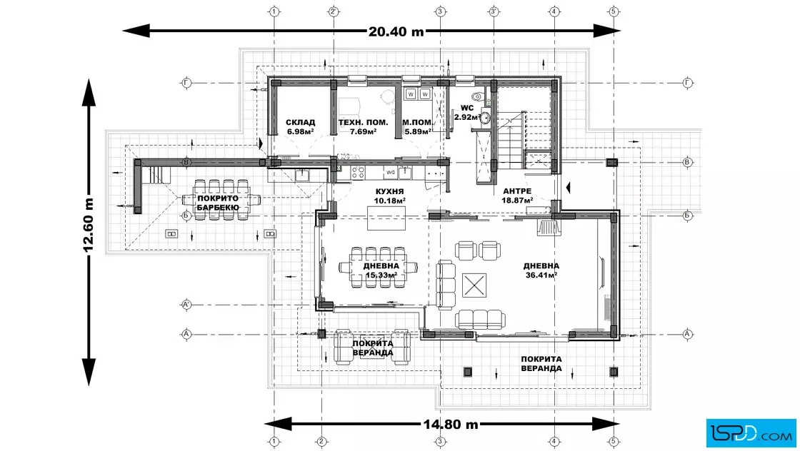
План на първи етаж

Еднофамилна къща в с. Поповци
| Етажи | Нето | Бруто |
|---|---|---|
| Първи етаж | 104.25 кв.м. | 128.06 кв.м. |
| Покрит вход/веранда | 46.28 кв.м. | |
| Втори етаж | 95.51 кв.м. | 120.22 кв.м. |
| Общо: | 199.76 кв.м. | 294.56 кв.м. |







Това е проект на съвременна градска къща, която предоставя всички удобства на своите обитатели. Търсена е модерна визия, която се постига както от избора на материали по фасадата, така и от оформянето на обемите. Формованият камък кореспондира със светлата мазилка и с обработения вид на HPL плоскостите в цвят „дърво“. Богатото озеленяване вписва сградата в заобикалящата я природна среда. Площното остъкляване на дневната зона отваря интериора към двора. Къщата е решена на два етажа. Стълбището е в северната част.
Първо ниво съдържа входно антре, дневна, трапезария, кухня, мокро помещение, техническо помещение, склад и санитарен възел. Дневната, трапезарията и кухнята са решени еднопространствено. В дневната е проектиран кът за камина. Всички помещения имат големи прозорци или витрини. В западната част на къщата е проектирано покрито барбекю с изглед към двора. Пред трапезарията и дневната са проектирани покрити веранди, които предпазват дневната зона от преослънчаване. Второ ниво съдържа три спални, две бани и два дрешника. Дрешниците и едната баня са индивидуални за южните спални. Проектирани са индивидуални тераси пред южните спални с изглед към двора, които са изцяло покрити от покрива. Предвиден е отвор в покривната плоча за ревизия на подпокривното пространство.
Конструкцията е монолитна стоманобетонна. Ограждащите стени са тухлени с външна топлоизолация. Дограмата е PVC със стъклопакет от нискоемисионно стъкло. Покривът е четирискатен покрит с керамични керемиди “Tondach”.
Подробен 3D модел на сградата, който изяснява формата и функцията в пълнота още в етапа на проектиране
Бързина на проектирането без компромис с качеството
Анализ на различни варианти и опции и визуализирането им още в начален етап
Функционални планове
Модерен архитектурен софтуер, който минимизира възможните грешки

Визуализациите са илюстративни
Представените изображения са компютърно генерирани фотореалистични образи на сградата, които показват идеята на архитекта. Те визуализират една от многото възможности за завършване на фасадата на сградата. Тяхната основна цел е да изобразят къщата в околната среда по възможно най-реалистичния начин, за да може обитателите да възприемат сградата още преди тя да бъде построена. Цветовете и текстурите на реално изпълнената сграда може да се различават от компютърните изображения.
Фасадните материали могат да бъдат променяни
Визуализациите изобразяват идеята на архитекта и неговото желание да постигане завършен и естетичен образ използвайки конкретни материали по фасадата. Въпреки това, красотата на сградата е строго субективна и затова външната визия може да бъде редактирана според желанията и предпочитанията на възложителите. Всички цветове и материали могат да бъдат променяни, заменяни или премахнати според конкретните нужди.
Всички планове и изображения са предмет на авторско право
Представените визуализации и планове са авторски продукт и плод на архитектурния труд на екипа проектанти на “Ай ЕС Пи Дигитален Дизайн” ООД. Те са изключителна интелектуална собственост на фирмата. На основание член 35 от Закона за авторското право и сродните му права използването на което и да е изображение за търговски, маркетингови и други цели, без изричното писмено съгласие на фирма “Ай ЕС Пи Дигитален Дизайн” ООД е строго забранено.
Коментари и Въпроси