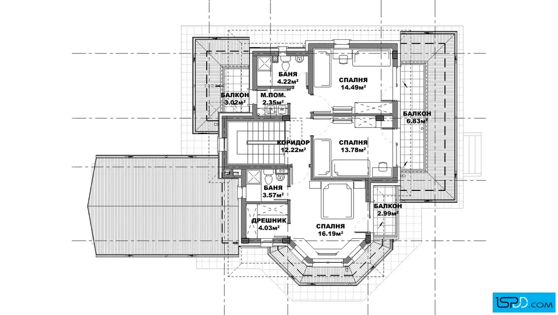
План на първи етаж

Еднофамилна къща в с. Волуяк
| Етажи | Нето | Бруто |
|---|---|---|
| Първи етаж | 90.94 кв.м. | 115.92 кв.м. |
| Покрит вход/веранда | 28.18 кв.м. | |
| Втори етаж | 83.69 кв.м. | 106.32 кв.м. |
| Общо: | 174.63 кв.м. | 250.42 кв.м. |






Това е проект на съвременна градска къща с елегантни форми и фин детайл. Октагоналната форма на дневната, която е повторена на второ ниво от главната спалня допринасят за модерното звучене на къщата. По фасадата са използвани два цвята мазилка и каменна облицовка, която е разсечена от хоризонтални ивици тъмен камък. Покрита веранда с кът за барбекю позволява на обитателите да се насладят на двора по всяко време. Жилищната сграда е решена на два етажа. Стълбището е в северната част на къщата.
Първо ниво съдържа входно антре, еднопространствени дневна с трапезария и кухня, спалня, кабинет, килер, склад и баня. Всички помещения имат големи прозорци или витрини, като по този начин обитателите ще могат да се възползват максимално от естествената дневна светлина. Второ ниво съдържа три спални, едната от които със собствена баня и гардеробно, обща баня и мокро помещение. От всички спални и мокрото помещение се излиза на полу-покрити тераси.
Подробен 3D модел на сградата, който изяснява формата и функцията в пълнота още в етапа на проектиране
Бързина на проектирането без компромис с качеството
Анализ на различни варианти и опции и визуализирането им още в начален етап
Функционални планове
Модерен архитектурен софтуер, който минимизира възможните грешки

Визуализациите са илюстративни
Представените изображения са компютърно генерирани фотореалистични образи на сградата, които показват идеята на архитекта. Те визуализират една от многото възможности за завършване на фасадата на сградата. Тяхната основна цел е да изобразят къщата в околната среда по възможно най-реалистичния начин, за да може обитателите да възприемат сградата още преди тя да бъде построена. Цветовете и текстурите на реално изпълнената сграда може да се различават от компютърните изображения.
Фасадните материали могат да бъдат променяни
Визуализациите изобразяват идеята на архитекта и неговото желание да постигане завършен и естетичен образ използвайки конкретни материали по фасадата. Въпреки това, красотата на сградата е строго субективна и затова външната визия може да бъде редактирана според желанията и предпочитанията на възложителите. Всички цветове и материали могат да бъдат променяни, заменяни или премахнати според конкретните нужди.
Всички планове и изображения са предмет на авторско право
Представените визуализации и планове са авторски продукт и плод на архитектурния труд на екипа проектанти на “Ай ЕС Пи Дигитален Дизайн” ООД. Те са изключителна интелектуална собственост на фирмата. На основание член 35 от Закона за авторското право и сродните му права използването на което и да е изображение за търговски, маркетингови и други цели, без изричното писмено съгласие на фирма “Ай ЕС Пи Дигитален Дизайн” ООД е строго забранено.
Коментари и Въпроси