План на първи етаж

Еднофамилна къща в гр. София
| Етажи | Нето | Бруто |
|---|---|---|
| Първи етаж | 135.76 кв.м. | 158.38 кв.м. |
| Покрит вход/веранда | 5.9 кв.м. | |
| Втори етаж | 160.06 кв.м. | 192.78 кв.м. |
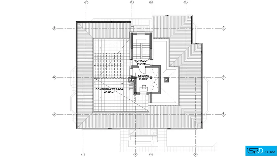
| Трети етаж | 67.12 кв.м. | 75.35 кв.м. |
| Общо: | 362.94 кв.м. | 432.41 кв.м. |







Това е проект на луксозна и модерна къща с градски облик. Просторни витрини отварят помещенията към разкриващата се панорама. По фасадата са използвани каменна облицовка от формован гнайс и светла мазилка, които подсилват градското усещане за сградата. Хоризонтални ивици от тъмен камък членят каменните стени. Финни детайли от варовик с арковиден завършек допълват елегантната визия. Къщата е решена на три надземни нива.
Първият етаж съдържа входно антре, просторна дневна, трапезария с кухненски бокс и с килер към него, втора еднопространствена дневна с трапезария и кухненски бокс и килер към него, тоалетна и котелно под стълбищната клетка с отделен вход. Основната дневна е отделена от трапезарията със стена. От втората дневна е проектирано стълбище към второ ниво, което води до обособена спалня, мокро помещение и баня. В дневната е проектиран кът за камина. Двете дневни имат големи витрини на изток, като по този начин обитателите ще могат да се възползват максимално от естествената дневна светлина. Вторият етаж е разделен на две автономни части. В по-голямата част са проектирани три спални с индивидуални бани, сауна и мокро помещение. В по-малката част са проектирани спалня, мокро помещение и баня. От всяка спалня се излиза на балкон. Третият етаж е на кота съдържа ателие и открита покривна тераса. Терасата е частично покрита с метална слънцезащитна пергола. На нея е обособен кът за барбекю.
Подробен 3D модел на сградата, който изяснява формата и функцията в пълнота още в етапа на проектиране
Бързина на проектирането без компромис с качеството
Анализ на различни варианти и опции и визуализирането им още в начален етап
Функционални планове
Модерен архитектурен софтуер, който минимизира възможните грешки

Визуализациите са илюстративни
Представените изображения са компютърно генерирани фотореалистични образи на сградата, които показват идеята на архитекта. Те визуализират една от многото възможности за завършване на фасадата на сградата. Тяхната основна цел е да изобразят къщата в околната среда по възможно най-реалистичния начин, за да може обитателите да възприемат сградата още преди тя да бъде построена. Цветовете и текстурите на реално изпълнената сграда може да се различават от компютърните изображения.
Фасадните материали могат да бъдат променяни
Визуализациите изобразяват идеята на архитекта и неговото желание да постигане завършен и естетичен образ използвайки конкретни материали по фасадата. Въпреки това, красотата на сградата е строго субективна и затова външната визия може да бъде редактирана според желанията и предпочитанията на възложителите. Всички цветове и материали могат да бъдат променяни, заменяни или премахнати според конкретните нужди.
Всички планове и изображения са предмет на авторско право
Представените визуализации и планове са авторски продукт и плод на архитектурния труд на екипа проектанти на “Ай ЕС Пи Дигитален Дизайн” ООД. Те са изключителна интелектуална собственост на фирмата. На основание член 35 от Закона за авторското право и сродните му права използването на което и да е изображение за търговски, маркетингови и други цели, без изричното писмено съгласие на фирма “Ай ЕС Пи Дигитален Дизайн” ООД е строго забранено.
Коментари и Въпроси