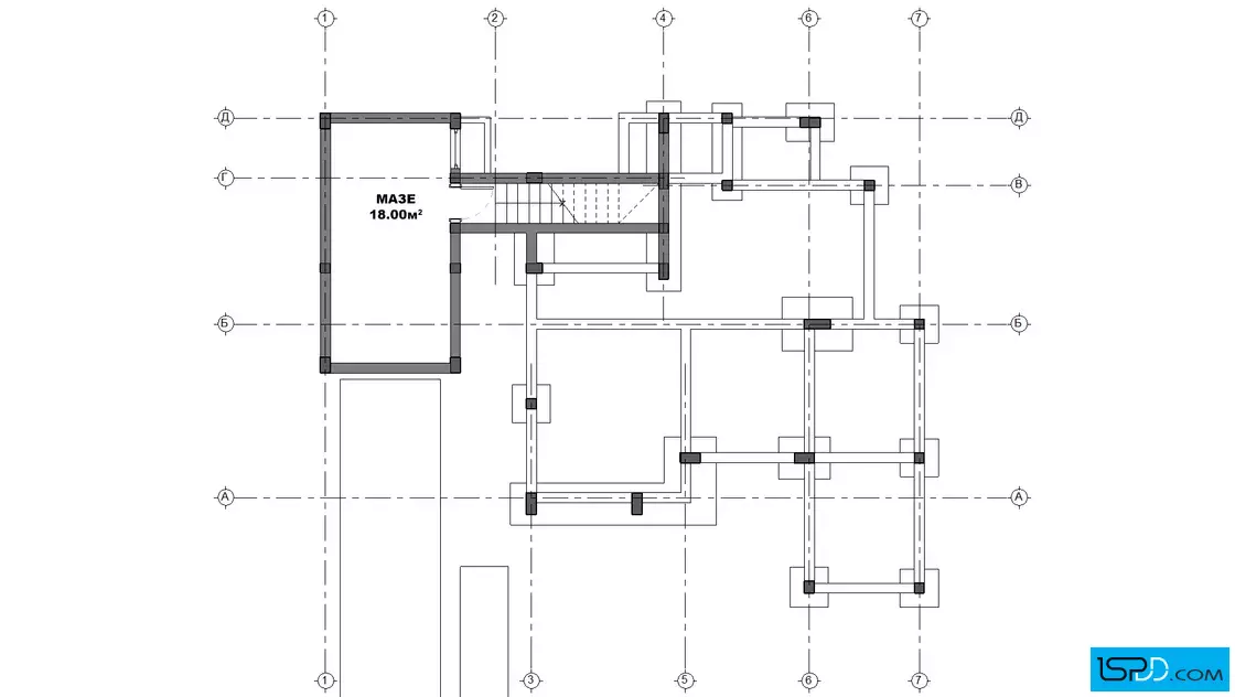
План на подземен етаж

Еднофамилна къща в с. Александрово
| Етажи | Нето | Бруто |
|---|---|---|
| Подземен етаж | 22.96 кв.м. | 30.57 кв.м. |
| Първи етаж | 79.15 кв.м. | 101.85 кв.м. |
| Покрит вход/веранда | 19.3 кв.м. | |
| Втори етаж | 69.66 кв.м. | 87.48 кв.м. |
| Общо: | 171.77 кв.м. | 239.2 кв.м. |









Този проект на ваканционна къща е разработен в стила на традиционната българска архитектура. По фасадата са използвани бала мазилка, груба каменна облицовка и дървена ламперия. Декоративни дървени греди (сантрачи) разсичат каменните стени. Къщата е развита на едно подземно и две надземни нива.
Сутеренът е частичен и е само под гаража. В него е проектирано мазе с естествена вентилация посредством английски двор. Партерният етаж съдържа входно антре, еднопространствени дневна с трапезарен кът и обособен кухненски бокс, спалня, баня, външен склад и гараж за една кола. Проектирани са вътрешна камина към дневната зона, както и външна камина към покритата част на верандата. На втория етаж са развити три спални и две бани. Едната баня е индивидуална за едната спалня, а втората е достъпна от коридора. От две спални се излиза на обща покрита тераса с панорамен изглед на юг и изток към двора. Третата спалня е със самостоятелен балкон гледащ на изток към улицата. Проектиран е и малък балкон на север към коридора.
Подробен 3D модел на сградата, който изяснява формата и функцията в пълнота още в етапа на проектиране
Бързина на проектирането без компромис с качеството
Анализ на различни варианти и опции и визуализирането им още в начален етап
Функционални планове
Модерен архитектурен софтуер, който минимизира възможните грешки

Визуализациите са илюстративни
Представените изображения са компютърно генерирани фотореалистични образи на сградата, които показват идеята на архитекта. Те визуализират една от многото възможности за завършване на фасадата на сградата. Тяхната основна цел е да изобразят къщата в околната среда по възможно най-реалистичния начин, за да може обитателите да възприемат сградата още преди тя да бъде построена. Цветовете и текстурите на реално изпълнената сграда може да се различават от компютърните изображения.
Фасадните материали могат да бъдат променяни
Визуализациите изобразяват идеята на архитекта и неговото желание да постигане завършен и естетичен образ използвайки конкретни материали по фасадата. Въпреки това, красотата на сградата е строго субективна и затова външната визия може да бъде редактирана според желанията и предпочитанията на възложителите. Всички цветове и материали могат да бъдат променяни, заменяни или премахнати според конкретните нужди.
Всички планове и изображения са предмет на авторско право
Представените визуализации и планове са авторски продукт и плод на архитектурния труд на екипа проектанти на “Ай ЕС Пи Дигитален Дизайн” ООД. Те са изключителна интелектуална собственост на фирмата. На основание член 35 от Закона за авторското право и сродните му права използването на което и да е изображение за търговски, маркетингови и други цели, без изричното писмено съгласие на фирма “Ай ЕС Пи Дигитален Дизайн” ООД е строго забранено.
Коментари и Въпроси